Toimistotilaa Pitäjämäellä 6. kerroksessa. Ohessa kuvia kiinteistön muista tiloista. Atomitie 5 on suosittu kuusikerroksinen toimisto- ja pienteoll...
Uudet käyttö- ja sopimusehdot
Päivitämme käyttö- ja sopimusehtojamme. Uudet ehdot ovat voimassa 1.5.2025 alkaen. Tutustu ehtoihin
-
Tallenna288 m²ToimistotKysy hintaa!
-
Tallenna200 m²TuotantotilatVarastot
Tuotanto- tai varastotilaksi sopivaa toimitilaa hyällä sijannilla Pitäjänmäellä, toisessa kerroksessa. Tilassa wc ja pieni keittiö. Ohessa kuvia kiint...
Kysy hintaa! -
Tallenna300 m²ToimistotTuotantotilat
Vuokrattavana ikkunallinen työtila. Avoin tila soveltuu monenlaiseen käyttöön, myös toimistoksi. Ohessa vainnollistavia kuvia. Kiinteistö sijaitsee...
Kysy hintaa! -
Tallenna251 m²Toimistot
Vuokrattavana 2. kerroksen siisti 251 m2 avotoimistotila, jossa korkeat väliseinät sekä erinomaiset neuvottelutilat. Kauppakeskus Metropol sijaitse...
Kysy hintaa! -
Tallenna111 m²Toimistot
Vuokrattavissa toisen kerroksen toimitila, jossa kolme toimistohuonetta sekä avotilaa. Tilaan ei hissiyhteyttä. Ohessa havainnollistavia kuvia kiintei...
Kysy hintaa! -
Tallenna172 m²Toimistot
Moderni muuttovalmis toimisto, jossa avotilaa, neuvotteluhuone, avokeittiö sekä kaksi wc:tä. Tila sijaitsee B-rapussa ja ikkunat avautuvat valopihalle...
Kysy hintaa! -
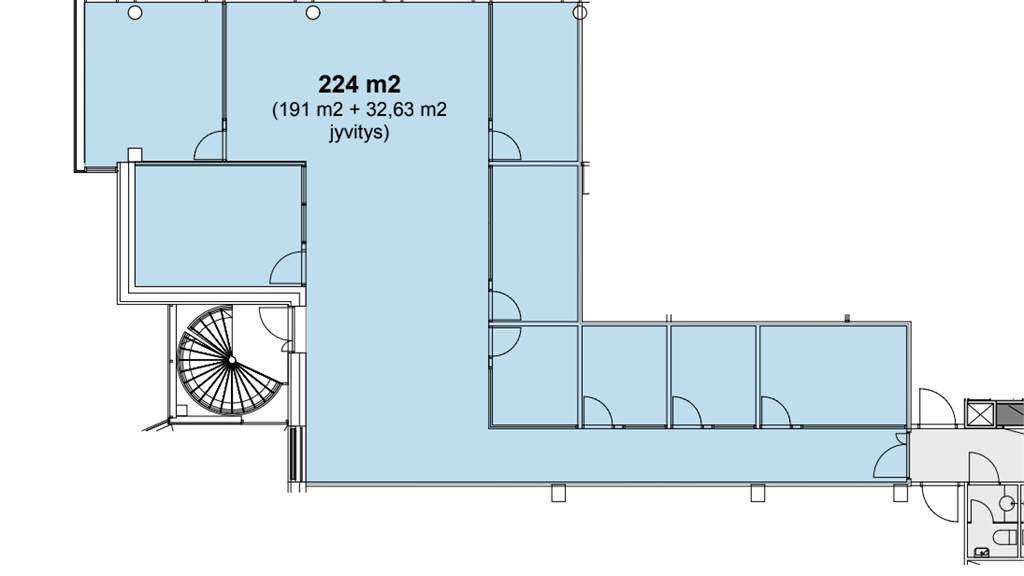
Tallenna298 m² - 1 624 m²Toimistot
Kolmannen kerroksen toimistokokonaisuus pilkottavaksi tai kokonaan omaan käyttöön! Tila koostuu 699,5 m2 kokonaisuudesta, 627 m2 tilasta, sekä nämä ...
Kysy hintaa! -
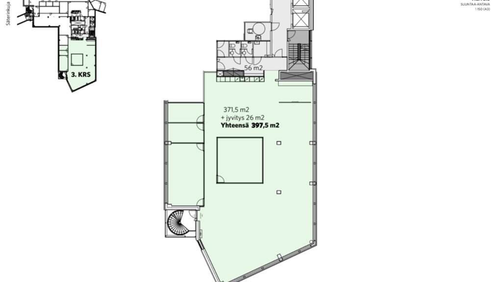
Tallenna298 m²Toimistot
Kompakti 297,5 m2 toimistotila rakennuksen kolmannessa kerroksessa, joka on helposti yhdistettävissä suurempiin kokonaisuuksiin. Sisältää sekä yksittä...
Kysy hintaa! -
Tallenna477 m² - 830 m²Toimistot
Valtatie 30:ssa vuokrattavana viidennen kerroksen toimisto. Tila on jaettavissa eri käyttäjille sekä laajennettavissa isommaksi konaisuudeksi. Ohessa ...
Kysy hintaa! -
Tallenna489 m²Toimistot
Vuokrataan tilava käyttäjän tarpeen mukaisesti muokattavissa oleva toimisto Valtatie 30:n toisessa kerroksessa. Ohessa havainnollistavia kuvia kiintei...
Kysy hintaa! -
Tallenna477 m²Toimistot
Valtatie 30:ssa vuokrattavana viidennen kerroksen toimisto. Tila on mahdollista laajentaa suuremmaksi kokonaisuudeksi. Ohessa havainnollistavia kuvia ...
Kysy hintaa! -
Tallenna238 m²Toimistot
Vuokrataan toisen kerroksen toimistotila loistavalla paikalla Tampereella. Toimisto on muuntojoustava ja muokattavissa vuokralaisen tarpeiden mukaan. ...
Kysy hintaa! -
Tallenna201 m²Toimistot
Vuokrattavana Tampereen Hatanpäällä toisen kerroksen toimistotila. Tilaa on mahdollista muokata vuokralaisen tarpeiden mukaan. Kiinteistön erinomaisen...
Kysy hintaa! -
Tallenna404 m²Toimistot
Vuokrataan moderni toimistotila Säteri Business Parkista. Toimistossa on avotilaa, tyylikäs keittiö, kokoontumistilaa ja työhuoneita. Tilaan voidaan t...
Kysy hintaa! -
Tallenna191 m²Toimistot
Vuokrattavana toimisto kiinteistön neljännessä kerroksessa, pientoimistoalueella. Tilassa on avotilan lisäksi useampi työhuone. Pientoimistoalueen vuo...
Kysy hintaa! -
Tallenna316 m²Toimistot
Kiinteistön viidennessä kerroksessa 315.5m2 toimisto vuokrattavana. Ohessa kuvia kiinteistön tiloista. Täysin uudistettu, merihenkinen, täyden pal...
Kysy hintaa! -
Tallenna318 m²Toimistot
Vuokrataan kiinteistön neljännessä kerroksessa sijaitseva muuttovalmis monitilatoimisto. Ohessa yleiskuvia kiinteistön tiloista. Kalasataman Kummel...
Kysy hintaa! -
Tallenna
Asemakatu 4
JÄRVENPÄÄ, keskusta685 m²LiiketilatToimistotHotellikiinteistön ensimmäisessä kerroksessa vuokrattavana aulasta aukeava upea tila. Oma sisäänkäynti takapihalta. Aiemmin ravintolasalina toiminut t...
Kysy hintaa! -
Tallenna704 m²Toimistot
Vuokrataan toimistotila hyvien kulkuyhteyksien varrelta Pikku Huopalahdesta. Tila päivitetään vastaamaan vuokralaisen tarpeita. Kiinteistö sijaitse...
Kysy hintaa! -
Tallenna704 m²Toimistot
Vuokrattavissa 6. kerroksen 704 m2 toimistotila. Tila päivitetään vastaamaan vuokralaisen tarpeita. KOy Tilkan Paletti on vuonna 1989 rakennettu ki...
Kysy hintaa! -
Tallenna4 646 m²ToimistotTuotantotilat
Vapautumassa erittäin tasokasta tuotanto-/toimistotilaa 4646m2. Limingantullin alue on tunnettu ja jatkuvasti kehittyvä yritysten keskittymä huippu...
Kysy hintaa! -
Tallenna488 m²Toimistot
Vuokrataan 6. kerroksen avara ja valoisa 487 m2 toimitila. Tiloista avautuu hieno ja vehreä näkymä idylliseen Ruskeasuon siirtolapuutarhaan. Kiinteist...
Kysy hintaa! -
Tallenna271 m²Toimistot
Vuokrataan kuudennen kerroksen hyväkuntoinen 271 m2 toimistotila B-rapussa Aleksanterinkatu 48:ssa Helsingin keskustassa. Aleksanterinkatu 48 sija...
Kysy hintaa! -
Tallenna255 m²Toimistot
Vuokrataan neljännen kerroksen hyväkuntoinen toimistotila Helsingin keskustassa. Tila koostuu avotilasta sekä neuvotteluhuoneista. Aleksanterinkatu...
Kysy hintaa! -
Tallenna3 629 m²Varastot
Vuokrattavana varastotila 3 629,5 m2, jonka vapaa korkeus n. 6,5 m, osin matalampaa tilaa sekä n. 242 m2 kevytvarasto. Tilassa on lastauslaituri, 3 no...
Kysy hintaa!




























































































































































































