Vapautumassa oleva 2. kerroksen remontoitu ja siisti monitoimitila. Tässä toimitilassa on avotyötilaa ja toimistohuone sekä wc-tilat ja keittiö. Ohess...
Uudet käyttö- ja sopimusehdot
Päivitämme käyttö- ja sopimusehtojamme. Uudet ehdot ovat voimassa 1.5.2025 alkaen. Tutustu ehtoihin
-
Tallenna426 m²LiiketilatToimistot+1Kysy hintaa!
-
Tallenna293 m²Toimistot
Vuokrataan toimistotila Turun Panimonlinnasta. Wanhan panimon tunnelmaa Turun kenties upein toimistorakennus Panimonlinna koostuu kahdesta osasta; ...
Kysy hintaa! -
Tallenna258 m²Toimistot
Toimistotilaa modernista liikerakennuksesta, toisessa kerroksessa. Loistava sijainti Länsisataman sekä metro- ja raitiovaunupysäkin läheisyydestä. Ohe...
Kysy hintaa! -
Tallenna600 m²Varastot
Ruoholahden näkyvimmällä paikalla, Länsiväylän risteyksessä sijaitsee Toimistotalo Roihu. Entiset Kemiran pääkonttorin tilat tullaan saneeraamaan ja m...
Kysy hintaa! -
Tallenna1 718 m²Toimistot
Kiinteistö Oy Valimotie 17−19 tarjoaa nykyaikaiset toimistotilat ja tehokkaat tilaratkaisut. Rakennus on valmistunut vuonna 1993. Rakennuksessa on sa...
Kysy hintaa! -
Tallenna100 m²Toimistot
Keskeisellä sijainilla Pitäjänmäellä oleva 2. kerroksen toimistotila 100 m2. Tila voi toimia myös pienvarastona. Lisätietoja numerosta p. 045 261...
Kysy hintaa! -
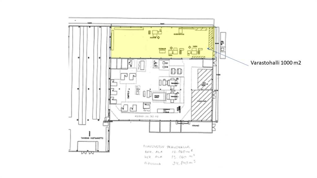
Tallenna1 000 m²Varastot
Juuri vapautunut entinen metallipajana toiminut selkeä 1000 m2 noin 5,5 metriä korkea hallitila, jossa 1 lastaustasku. Pieni toimistotila varaston y...
Kysy hintaa! -
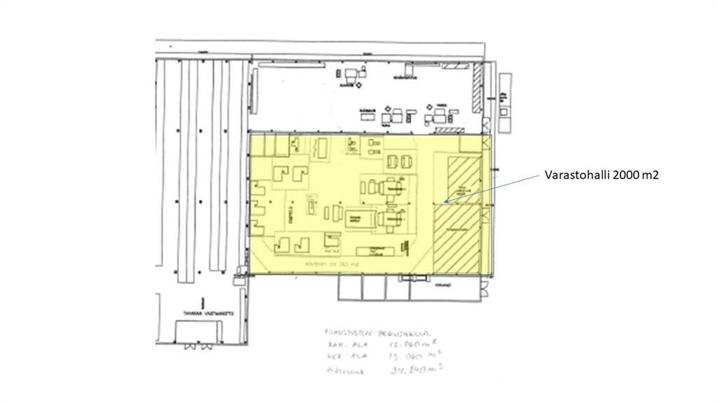
Tallenna2 000 m²Varastot
Juuri vapautunut 2000 m2 noin 5,5 metriä korkea hallitila, jossa 2 yhteiskäyttöistä lastaustaskua ja yksi oma lastaustasku. Pieni toimistotila varast...
Kysy hintaa! -
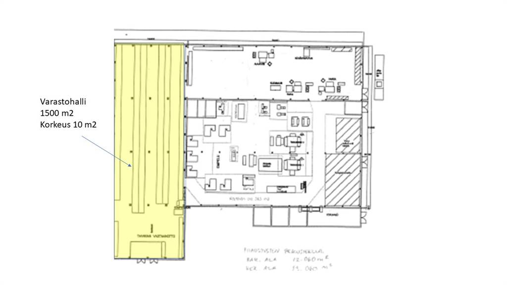
Tallenna1 500 m²Varastot
Juuri vapautunut 1500 m2 korkea (noin 10 metriä) lämmin kuiva erittäin varasto, jossa 2 lastaustaskua. Tila on yhdistettävissä 2000 m2 ja 1000 m2 mata...
Kysy hintaa! -
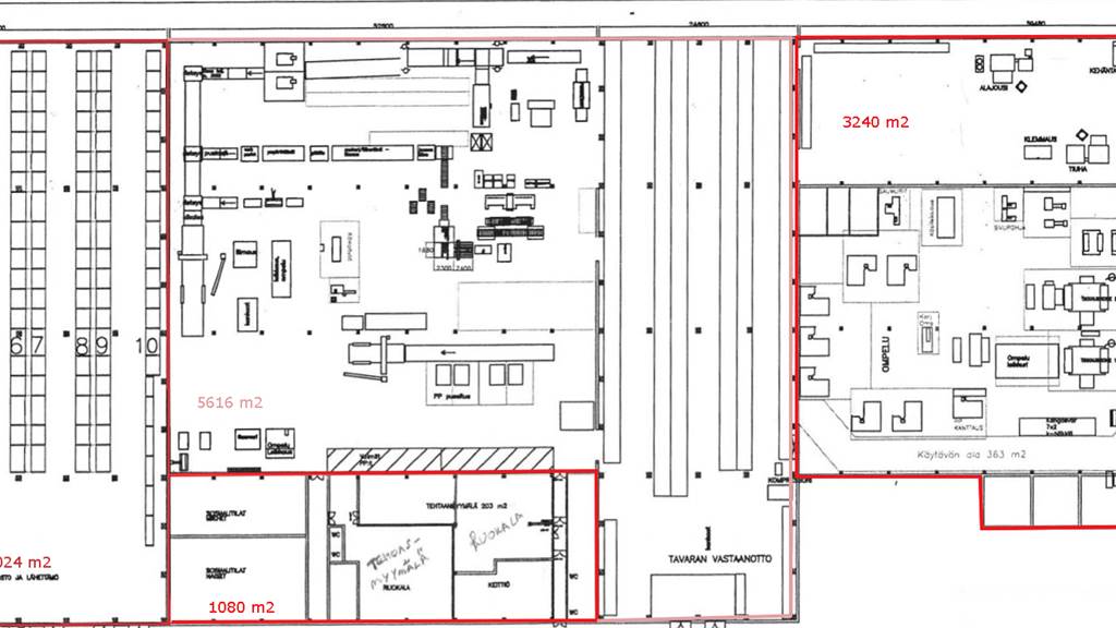
Tallenna5 616 m²TuotantotilatVarastot
5.5 metriä korkea hallitila sekä n. 1500 m2 10 metriä korkeaa varastoa, jossa 2 lastaustaskua. Tila on osuus teollisuuskiinteistöstä Heinolasta, jossa...
Kysy hintaa! -
Tallenna69 m²Liiketilat
Vuokrataan siisti liiketila Kauppakeskus Pasaatista. Kauppakeskus Pasaati sijaitsee hyvien liikenneyhteyksien varrella Kotkan sydämessä. Kohteessa ...
Kysy hintaa! -
Tallenna735 m²Toimistot
Technopolis Linnanmaan Elektroniikkatieltä vuokrattavissa laadukas toimistotila. Lisätietoja numerosta 020 7290 710. Lisää kohteita osoitteessa ww...
Kysy hintaa! -
Tallenna427 m²Toimistot
Technopolis Peltolasta vuokrattavissa 3.kerroksen moderni toimistotila. Vuokralaisille on tarjolla monipuoliset ja kattavat palvelukokonaisuudet. Ilmo...
Kysy hintaa! -
Tallenna600 m²Toimistot
Vuokrataan viidennestä kerroksesta muuttovalmis toimitila upeilla merinäköaloilla. Tilassa on avotilaa, erillisiä huoneita, oma keittiö ja WC-tilat. T...
Kysy hintaa! -
Tallenna210 m²Toimistot
Vuokrataan valoisa ja siisti toimistotilaa ensimmäisesta kerroksesta Espoosta. Sisääntulokerroksessa käyttäjiä palvelee lounasravintola, Ravintola...
Kysy hintaa! -
Tallenna104 m²Toimistot
Vuokrataan avotilasta koostuva toimistotila Sinihelmen 5. kerroksesta. Mankkaalla sijaitseva Sinimäentie 8 on viisikerroksinen toimistorakennus, jo...
Kysy hintaa! -
Tallenna230 m²Toimistot
Vuokrattavana kiinteistön kolmannen kerroksen valoisa ja moderni toimistotila. Tila koostuu pääosin työhuoneista sekä neuvottelutiloista. Sisääntul...
Kysy hintaa! -
Tallenna320 m²ToimistotTuotantotilat+1
Varasto-, toimisto ja sosiaalitilaa teollisuushallista Järvenpään Vähänummen teollisuusalueelta. Puolet kiinteistöstä. Halliosa n 180 m2 tämän lisäksi...
Kysy hintaa! -
Tallenna1 334 m²Toimistot
Toimistotila, joka käsittää koko rakennuksen viidennen kerroksen. Tila sisältää sekä yksittäisiä toimistohuoneita että runsaasti avointa tilaa. Mahdol...
Kysy hintaa! -
Tallenna138 m²Toimistot
Vuokrattavana upea 2. kerroksen päätytoimisto. Tilat hiljattain remontoitu, uusittu mm. laminaattilattia sekä grafiitinharmaa tekstiilipalamatto sekä ...
Kysy hintaa! -
Tallenna156 m²Varastot
Vapaana varasto- tai toimitila Turun kauppatorin kupeesta Aurakadun ja Yliopistonkadun kulmasta. Tila sijaitsee rakennuksen 0. kerroksessa ja koostuu ...
Kysy hintaa! -
Tallenna98 m²Liiketilat
Vuokrattavissa 71m2 katutason liiketila sekä siihen liittyvä kellarikerroksen 27m2 varastotila, yhteensä 98m2. Hallituskatu 25 kiinteistö sijaitsee...
Kysy hintaa! -
Tallenna250 m²LiiketilatToimistot
Vuokrataan liiketiloja Salon Kauppakeskus Plazasta. Plaza sijaitsee kaupungin keskustassa, näyttävältä paikalta helppojen yhteyksien päästä. Linja-aut...
Kysy hintaa! -
Tallenna195 m²Toimistot
Vuokrataan erittäin siisti 3. kerroksen toimistotila, tilassa 4 huonetta ja avotilaa. Tilaan kuuluu keittiö sekä tauko- ja sosiaalitilat. Tiloja voida...
Kysy hintaa! -
Tallenna668 m²Toimistot
Kiinteistön 3. kerroksessa vuokrattavana 668m2 remontoitua ja siistiä toimistotilaa. Tila soveltuu hyvin myös esittelytilaksi. Kiviaidankatu 2 on t...
Kysy hintaa!





























































































































































