Tarpeiden mukaisesti räätälöitävä toimistotila Ruoholahdesta, noin 500 metrin päästä metroasemalta. Tila on nykyisellään huonetoimistoa, mutta voidaan...
Uudet käyttö- ja sopimusehdot
Päivitämme käyttö- ja sopimusehtojamme. Uudet ehdot ovat voimassa 1.5.2025 alkaen. Tutustu ehtoihin
-
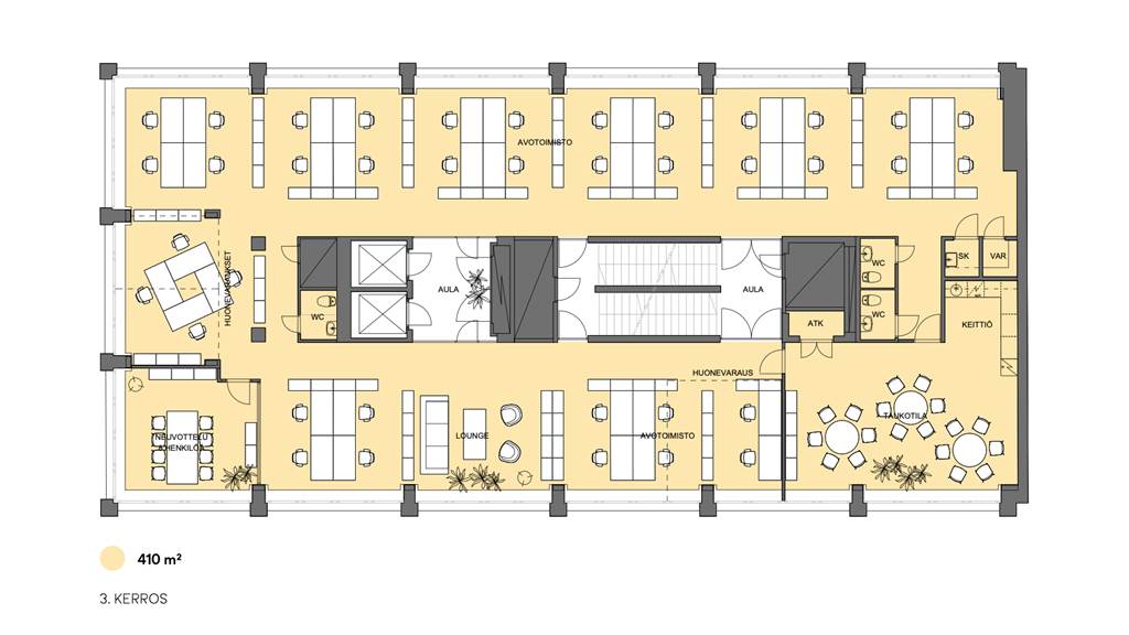
Tallenna410 m²ToimistotKysy hintaa!
-
Tallenna607 m²Toimistot
Vuokrataan koko kerroksen kattava toimistohuoneisto. Näkymät sekä kadun puolelle että rauhalliselle sisäpihalle. Taukotilassa keittiöpiste. Neuvott...
Kysy hintaa! -
Tallenna331 m²Toimistot
Oivallisia tilaratkaisuja tarjoava Derby Business Park on valmistunut Espoon Suur-Leppävaaraan Perkkaalle. Derbyn nimi on peräisin naapurissa sijaitse...
Kysy hintaa! -
Tallenna1 115 m²Toimistot
Martintalosta Vantaankosken juna-aseman vieressä lähes koko 3. kerroksen toimistotila, joka suunnitellaan ja toteutetaan asiakkaan pinta-alan ja tilao...
Kysy hintaa! -
Tallenna46 m²Toimistot
Pääkonttorirakennuksessa vuokrattavana toimistotila 46 m2 toisessa kerroksessa. Tila koostuu kolmesta huoneesta. Kiinteistössä valokuituyhteys. Per...
Kysy hintaa! -
Tallenna82 m²Varastot
Pääkonttorirakennuksen toisessa kerroksessa toimistotilojen yhteydessä on vuokrattavana siisti varastotila noin 82 m2. Siihen kuuluu kaksi vierekkäist...
Kysy hintaa! -
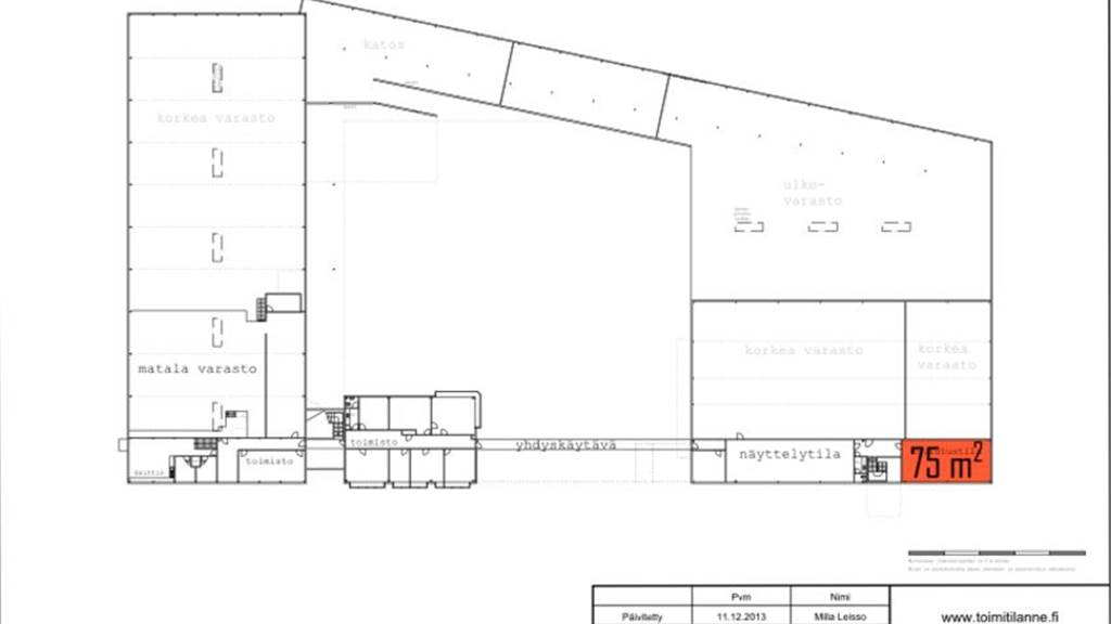
Tallenna75 m²Toimistot
Edustava ja siisti koulutustila rakennuksen toisessa kerroksessa. Sopii myös toimistokäyttöön. Hyväkuntoinen ja monipuolinen toimisto- ja varastoki...
Kysy hintaa! -
Tallenna102 m² - 135 m²Varastot
Vuokrataan hyllyvarasto, jonka korkeus on 2.5 metriä. Tila on kuivaa ja lämmintä, sopii esimerkiksi pientavaroiden varastointiin. Hyllytilaa on runsaa...
Kysy hintaa! -
Tallenna426 m²Toimistot
Vapaana 427 m2 tilakokonaisuus toisessa kerroksessa. Tilassa on useita pieniä työhuoneita sekä avotilaa ja iso työhuone. Tila on mahdollista muokata v...
Kysy hintaa! -
Tallenna58 m²LiiketilatToimistot
Vuokrattavana 1.kerroksen 57,5m2 liiketila. Tilassa on oma wc sekä pieni keittiönurkkaus. Sisäänkäynti on sisäpihan puolelta. Ei sovellu ravintolakäyt...
Kysy hintaa! -
Tallenna52 m²LiiketilatToimistot
Vuokrattavana 1.kerroksen 52,5m2 liiketila. Tilassa on oma wc sekä pieni keittiönurkkaus. Sisäänkäynti on sisäpihan puolelta. Ei sovellu ravintolakäyt...
Kysy hintaa! -
Tallenna152 m²LiiketilatMuut
Vuokrattavana laadukas saunatila yritykselle saunaliiketoimintaan. Pitkäaikaiset sopimukset. Tilassa on uima-allas, sauna, pesuhuoneet ja wc-tilat. Li...
Kysy hintaa! -
Tallenna273 m²Toimistot
Espoon Sinimäessä vuokrattavana siisti viidennen kerroksen toimistotila. Kiinteistön tilat on ilmastoitu. Kohde sijaitsee Turunväylän varrella noin 10...
Kysy hintaa! -
Tallenna280 m²Toimistot
Vuokrataan 7. kerroksen toimistotila Alberga Business Parkissa. Tila koostuu avotilasta sekä erillisistä huoneista. Alberga Business Park Espoon L...
Kysy hintaa! -
Tallenna50 m²LiiketilatToimistot
HUOM ! Myydään hyvänkokoinen 49,50 m2 liiketila Länsi-Pasilasta. Tilassa on toiminut Parturi-Kampaamo lähes 40 vuotta, joten tila soveltuu siihen käyt...
89 000 € -
Tallenna174 m²Toimistot
Vuokrattavana toimistotilaa 4. kerroksesta. Kerrokseen on tavarahissiyhteys. Ylimmän kerroksen valoisassa neuvottelu- ja saunatilassa hoituvat koko...
Kysy hintaa! -
Tallenna261 m²Toimistot
Vuokrataan tilava 1. kerroksen toimistotila Helsingin Malmilla. Tilassa on monta omaa huonetta ja wc-tilat. Kiinteistöön on loistavat kulkuyhteyd...
Kysy hintaa! -
Tallenna483 m²Toimistot
Vuokrataan toimistotilaa 6-7. kerroksista. Etsitkö yrityksellesi keskeiseltä sijainnilta arvokkaita ja laadukkaita toimitilojae Bulevardi on etsimä...
Kysy hintaa! -
Tallenna482 m²Toimistot
Vuokrataan toimistotilaa 482m2. Tilat valmistuneet täydellisestä peruskorjauksesta ja ovat lattiapinnoitetta vaille käyttövalmiit. Oma keittiö, neuvot...
Kysy hintaa! -
Tallenna742 m²Toimistot
Vuokrataan täydellisesti saneerattu modernin tyylikäs toimistotila Helsingin Siltasaaresta. Talo tunnetaan myös Wärtsilän talona. Kiinteistössä on...
Kysy hintaa! -
Tallenna256 m²Toimistot
Uutta toimistotilaa, joka viimeistellään vuokralaisen tarpeen mukaan. Viehättävät näkymät vehreälle Bulevardille. Etsitkö yrityksellesi keskeiseltä...
Kysy hintaa! -
Tallenna144 m²Toimistot
Itämerenkatu 11-13 sijaitsee merellisessä Ruoholahdessa. Kiinteistö on vuonna 1999 rakennettu moderni pääkonttoritason toimistorakennus, jonka suunnit...
Kysy hintaa! -
Tallenna490 m²Toimistot
Itämerenkatu 11-13 sijaitsee merellisessä Ruoholahdessa. Kiinteistö on vuonna 1999 rakennettu moderni pääkonttoritason toimistorakennus, jonka suunnit...
Kysy hintaa! -
Tallenna1 196 m²ToimistotVarastot
Heti vapaa loistava kokonaisuus kolmen nosto-oven varastoa ja toisen kerroksen toimisto 348m2. Toimitila on mahdollista jakaa kahdelle käyttäjälle, mo...
Kysy hintaa! -
Tallenna161 m²Toimistot
4. kerroksen tehokas toimistotila 161 m2, jossa 2 tiimitilaa ja 1 yhden hengen huone. Yhteiset wc-tilat, keittiö, eteisaula sekä ristikytentä kahden 4...
Kysy hintaa!



















































































































































































