SORVAAJANKATU 9a - varastotila 28m2 Vuokrataan varastoksi soveltuva 28m2 avotila 3. kerroksesta. Yhteiskäyttöiset wc-tilat. Tavarahuolto tilaan las...
Uudet käyttö- ja sopimusehdot
Päivitämme käyttö- ja sopimusehtojamme. Uudet ehdot ovat voimassa 1.5.2025 alkaen. Tutustu ehtoihin
-
Tallenna28 m²VarastotKysy hintaa!
-
Tallenna20 m²Varastot
SORVAAJANKATU 9a - varastotila 20m2 Vuokrataan varastoksi soveltuva 20m2 toimitila 3. kerroksesta. Yhteiskäyttöiset wc-tilat. Tavarahuolto tilaan l...
Kysy hintaa! -
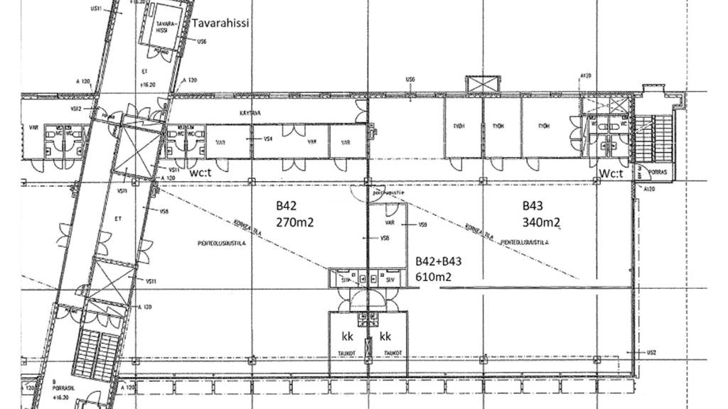
Tallenna610 m²ToimistotTuotantotilat+1
SORVAAJANKATU 11a - toimisto-/tuotanto-/varastotila 610m2 Tämä 4. krs monikäyttöinen tila sijaitsee kiinteistön B-rapussa. Käynti henkilöhissillä. ...
Kysy hintaa! -
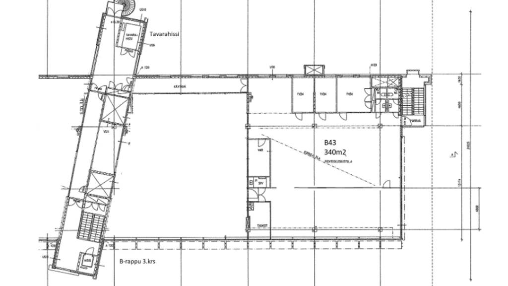
Tallenna340 m²ToimistotTuotantotilat+1
SORVAAJANKATU 11a - toimisto-/tuotanto-/varastotila 340m2 Tämä 4. krs monikäyttöinen tila sijaitsee kiinteistön B-rapussa. Käynti henkilöhissillä. ...
Kysy hintaa! -
Tallenna270 m²ToimistotTuotantotilat+1
SORVAAJANKATU 11a - toimisto-/tuotanto-/varastotila 270m2 Tämä 4. krs kombi-tila sijaitsee kiinteistön B-rapussa. Käynti henkilöhissillä. Osa tilas...
Kysy hintaa! -
Tallenna170 m²Toimistot
SORVAAJANKATU 11a - toimistotila 170m2 Tässä erikoisen mallisessa toimistotilassa on avotilan lisäksi 4 huonetta, keittiö ja 2 x wc-tila. Tila sija...
Kysy hintaa! -
Tallenna24 m²ToimistotTuotantotilat+1
SORVAAJANKATU 11a - toimisto-/tuotanto-/varastotila 24m2 Tämä 2. krs pieni toimisto-/tuotantotila sijaitsee kiinteistön B-rapussa. Sosiaalitilat lö...
Kysy hintaa! -
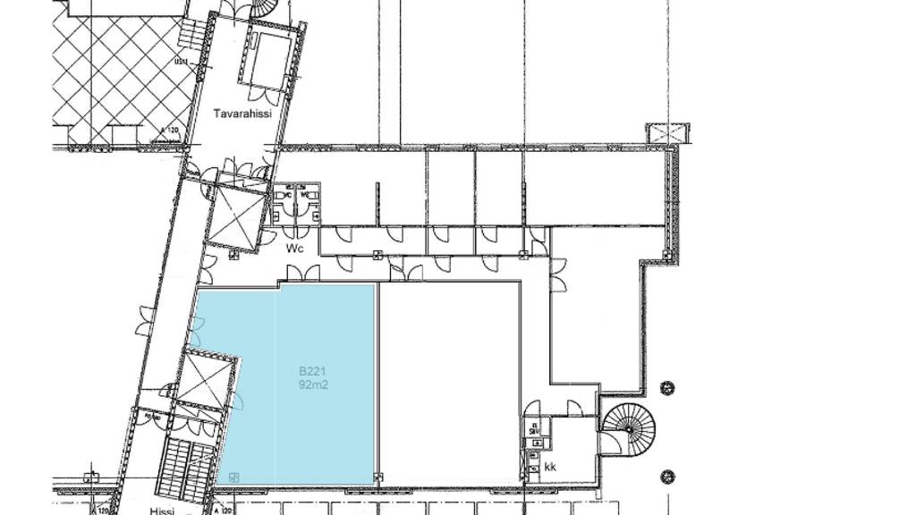
Tallenna92 m²ToimistotTuotantotilat+1
SORVAAJANKATU 11a - toimisto-/tuotanto-/varastotila 92m2 Tämä 2. krs avotila sijaitsee kiinteistön B-rapussa. Sosiaalitilat löytyvät käytävältä. Ta...
Kysy hintaa! -
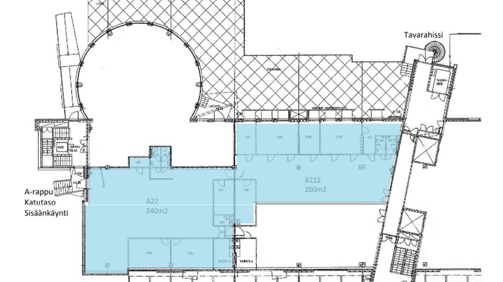
Tallenna380 m²LiiketilatTuotantotilat+1
SORVAAJANKATU 11a - liike-/tuotanto-/toimistotila 380m2 Tässä monikäyttöisessä tilassa on avotilan lisäksi huoneita, varastotila, keittiöitä ja wc-...
Kysy hintaa! -
Tallenna340 m²ToimistotTuotantotilat+1
SORVAAJANKATU 11a - toimisto-/tuotanto-/varastotila 340m2 Tämä 2. krs kombi-tila sijaitsee kiinteistön B-rapussa. Avotilan lisäksi muutamia toimist...
Kysy hintaa! -
Tallenna440 m²LiiketilatTuotantotilat+1
SORVAAJANKATU 11a - liike-/tuotanto-/toimistotila 440m2 Tässä monikäyttöisessä tilassa on avotilan lisäksi huoneita, varastotilaa, 2 keittiö- ja 4 ...
Kysy hintaa! -
Tallenna81 m²ToimistotTuotantotilat+1
SORVAAJANKATU 11a - toimisto-/tuotanto-/varastotila 81m2 Tämä 2. krs avotila sijaitsee kiinteistön B-rapussa. Sosiaalitilat löytyvät käytävältä. Ta...
Kysy hintaa! -
Tallenna580 m²LiiketilatTuotantotilat+1
SORVAAJANKATU 11a - liike-/varasto-/tuotanto-/toimistotila 580m2 Tässä monikäyttöisessä tilassa on avotilan huonetta, pari pientä varastotilaa, 2 x...
Kysy hintaa! -
Tallenna140 m²ToimistotTuotantotilat+1
SORVAAJANKATU 11a - toimisto-/tuotanto-/varastotila 140m2 Tämä 2. krs monitoimitila sijaitsee kiinteistön B-rapussa. Avotilassa oma keittiö. Tavara...
Kysy hintaa! -
Tallenna240 m²LiiketilatToimistot
SORVAAJANKATU 11a - showroom /liike-/toimistotila 240m2 Tässä monikäyttöisessä tilassa on avotilan lisäksi 2 huonetta, pieni- ja hieman isompi vara...
Kysy hintaa! -
Tallenna188 m²Toimistot
Vuokrataan toimistotilaa ainutlaatuisista Kravattitehtaan puitteista Vallilasta, 3. kerroksesta. Kravattitehdas sijaitsee keskellä Vallilaa Elimäe...
Kysy hintaa! -
Tallenna187 m²Toimistot
Vuokrataan toimistotilaa ainutlaatuisista Kravattitehtaan puitteista Vallilasta, 3. kerroksesta. Kravattitehdas sijaitsee keskellä Vallilaa Elimäe...
Kysy hintaa! -
Tallenna166 m²Toimistot
Vuokrataan toimistotilaa ainutlaatuisista Kravattitehtaan puitteista Vallilasta, 3. kerroksesta. Kravattitehdas sijaitsee keskellä Vallilaa Elimäe...
Kysy hintaa! -
Tallenna284 m²Toimistot
Vapaana toimistotilaa Vallila Corner -kiinteistöstä. Tilat räätälöidään vielä vuokralaiselle sopiviksi. Ohessa havainnollistavia kuvia kiinteistön til...
Kysy hintaa! -
Tallenna738 m²Toimistot
Espoon Otaniemessä tyylikästä ja viihtyisää toimitilaa uudistuneessa Aallonharjassa. Tila on siisti, hyväkuntoinen ja erittäin valoisa. Ohessa havainn...
Kysy hintaa! -
Tallenna206 m²Toimistot
Vapaana toimistotilaa Vallila Corner -kiinteistöstä. Tilat räätälöidään vielä vuokralaiselle sopiviksi. Ohessa havainnollistavia kuvia kiinteistön til...
Kysy hintaa! -
Tallenna13 m²ToimistotTuotantotilat
PULTTITIE 16 - 13m2 Vuokrattavana 3. kerroksen toimisto-/tuotantotila. Yhteiskäyttöiset sosiaalitilat. Lisätiedot ja kohdenäytöt: p. 040 7070 32...
Kysy hintaa! -
Tallenna509 m²Toimistot
Lahden ydinkeskustassa on juuri vapautunut pitkäaiaikaisesta käytöstä ensimmäisen kerroksen 509 m2 toimistotila. Tila on kombitoimisto, eli siinä on o...
Kysy hintaa! -
Tallenna186 m²Toimistot
Vuokrattavana tilava ja valoisa huoneista, neuvottelutilasta, sekä taukotilast koostuva kokonaisuus. Tilassa on myös wc-tilat. Tila voidaan muokata as...
Kysy hintaa! -
Tallenna142 m²Toimistot
Ihana toimisto D portaassa, rauhallisella sijainnilla kiinteistön sisäpihalla. Helppo saavutettavuus sekä Mikonkadulta, että Kaisaniemenkadulta. Ki...
Kysy hintaa!






















































































































































































































































