Vuokrataan siistiä ja remontoitua toimistotilaa näkyvältä paikalta Espoon Koskelossa sijaitsevasta toimisto- ja varastokokonaisuudesta. Toimistotilan...
Uudet käyttö- ja sopimusehdot
Päivitämme käyttö- ja sopimusehtojamme. Uudet ehdot ovat voimassa 1.5.2025 alkaen. Tutustu ehtoihin
-
Tallenna347 m²ToimistotKysy hintaa!
-
Tallenna235 m²Varastot
Varastotilaa yhteisellä lastauslaiturilla. Ei omia sosiaalitiloja. Toimisto- ja varastokiinteistö Tampereen Nekalan alueella. Kiinteistö on valmist...
Kysy hintaa! -
Tallenna120 m²Varastot
Vuokrataan 120 m2 varastotilaa rakennuksen kellarikerroksesta, jonne pääsee myös tavarahissillä. Varasto koostuu kahdesta liukuovella erotetusta aluee...
Kysy hintaa! -
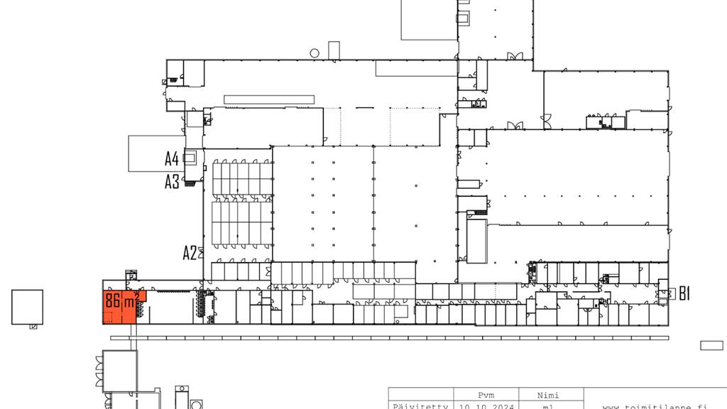
Tallenna86 m²TuotantotilatVarastot
Vuokrataan sisäänajettava tuotanto- tai varastotila katutasossa. Nosto-oven koko: leveys 260 cm, korkeus 250 cm. Nosto-oven alareuna on lattiatasoll...
Kysy hintaa! -
Tallenna47 m²Toimistot
Toimisto /työtila n 47 m2, katutasolla. Tilassa oma keittiö ja sis käynti. Lisätietoja: Mika /p. 045- 261 6555 Lisää toimitiloja www.premises....
Kysy hintaa! -
Tallenna10 m²Toimistot
Vuokrattavana yksittäisiä huonetiloja. 9,5 m2 tila pitää sisällään yhden huoneen. Yhteiset sos- tilat muiden käyttäjien kanssa. Lisätietoja: Mik...
Kysy hintaa! -
Tallenna436 m²Toimistot
Toisen kerroksen toimistotilaa, jossa useita huoneita ja tilat jaettavissa. Talosta löytyy vapaana myös erikokoista varastotilaa ja sosiaalitilat kell...
Kysy hintaa! -
Tallenna610 m²LiiketilatTuotantotilat+1
Keskeisellä sijainnilla Herttoniemen teollisuusalueella kätevä juuri remontoitu siisti kellarikerroksen/maantason varastotila jossa 4 kpl nosto-ovia. ...
Kysy hintaa! -
Tallenna500 m²Toimistot
Valoisa toimistotila, josta näkymät Takomotien suuntaan. Kiinteistön palveluihin kuuluu auditorio, neuvottelutilat, varasto- ja sosiaalitilat ja vu...
Kysy hintaa! -
Tallenna243 m² - 1 163 m²Toimistot
Takomotien suuntaan avautuva toimistotila, jossa runsaasti ikkunapintaa toisessa (1.) kerroksessa. Kiinteistön palveluihin kuuluu auditorio, neuvot...
Kysy hintaa! -
Tallenna526 m²Toimistot
Valoisa toimistotila, jossa ikkunoita kahteen suuntaan. Kiinteistön palveluihin kuuluu auditorio, neuvottelutilat, varasto- ja sosiaalitilat ja vuo...
Kysy hintaa! -
Tallenna262 m²Toimistot
Remontoitu avotoimisto johon mahdollista rakentaa huoneita. Oma suihkutila. Tilaratkaisua voidaan muokata tulevan käyttäjän toiveiden mukaan. Oma suih...
Kysy hintaa! -
Tallenna330 m²Toimistot
Powergate-toimistotalo toimii "porttina" Vaasa Airport Park alueelle moottoritieltä saavuttaessa. Powergate-toimistotalo on yksi Vaasan suurimpia toim...
Kysy hintaa! -
Tallenna347 m²Toimistot
Powergate-toimistotalo toimii "porttina" Vaasa Airport Park alueelle moottoritieltä saavuttaessa. Powergate-toimistotalo on yksi Vaasan suurimpia toim...
Kysy hintaa! -
Tallenna100 m²Toimistot
Vuokrattavana toimistotilaa Kuopiosta Väinölänniemestä. Kiinteistö Oy Kirkkokatu 1 on toimistorakennus viihtyisässä ympäristössä. Tämä perinteikäs...
Kysy hintaa! -
Tallenna82 m²Toimistot
Vuokrattavana toimistotilaa Kuopiosta Väinölänniemestä. Kiinteistö Oy Kirkkokatu 1 on toimistorakennus viihtyisässä ympäristössä. Tämä perinteikäs...
Kysy hintaa! -
Tallenna228 m² - 523 m²Toimistot
Vuokrataan kolmannen kerroksen toimistotilaa 523m2, joka on jaettavissa. Tinurinkuja 4 sijaitsee Leppävaarassa, Läkkitorin vieressä, n. 5 min kävel...
Kysy hintaa! -
Tallenna66 m²Toimistot
Kiinteistö Oy Kirkkokatu 1 on toimistorakennus viihtyisässä ympäristössä. Tämä perinteikäs vuonna 1950 valmistunut ja vuonna 1999 peruskorjattu toimis...
Kysy hintaa! -
Tallenna188 m²Toimistot
Keilaniemen metroaseman yhteydestä laadukasta ja nykyaikaista toimistotilaa. Länsimetroon pääsee sisäpihalta ja vuokralaiset pääsevät kiinteistöön suo...
Kysy hintaa! -
Tallenna180 m²Toimistot
Keilaniemen metroaseman yhteydestä laadukasta ja nykyaikaista toimistotilaa. Länsimetroon pääsee sisäpihalta ja vuokralaiset pääsevät kiinteistöön suo...
Kysy hintaa! -
Tallenna134 m²Toimistot
Kauppaneuvos Tirkkosen kauppahuoneensa liiketaloksi ja omaksi asunnokseen rakennuttama liiketalo on yksi Tampereen kauneimpia helmiä. Jugendtyylisen t...
Kysy hintaa! -
Tallenna221 m²Toimistot
Turun kenties upein toimistorakennus panimonlinna koostuu kahdesta osasta; 1884 rakennetusta panimorakennuksesta ja sen 1902 valmistuneesta lisärakenn...
Kysy hintaa! -
Tallenna
Kaarlenkatu 9-11
Helsinki, Kallio700 m²ToimistotVuokrataan 5.kerroksesta toimistotilaa. K9 tarjoaa elämyksellisiä toimitiloja ja vaivattoman palvelukokonaisuuden. Sen sijainti Kaarlenkadulla kesk...
Kysy hintaa! -
Tallenna
Kaarlenkatu 9-11
Helsinki, Kallio575 m²ToimistotVuokrataan 2.kerroksesta toimistotilaa. K9 tarjoaa elämyksellisiä toimitiloja ja vaivattoman palvelukokonaisuuden. Sen sijainti Kaarlenkadulla kesk...
Kysy hintaa! -
Tallenna638 m²Toimistot
Loistavalla sijainnilla Kalasataman metron kyljessä, kauppakeskus Redin naapurissa sijaitseva Työpaja avasi ovensa uusille vuokralaisille kevät-kesäll...
Kysy hintaa!



























































































































































