Vuokrataan Kytölän alueella oleva erittäin siisti varasto/toimistotila. Tila on jaettu nykyisellä käyttäjällä nosto-overn takana olevaan varastoon ja...
Uudet käyttö- ja sopimusehdot
Päivitämme käyttö- ja sopimusehtojamme. Uudet ehdot ovat voimassa 1.5.2025 alkaen. Tutustu ehtoihin
-
Tallenna320 m²ToimistotTuotantotilat+1Kysy hintaa!
-
Tallenna
Linnankatu 50-52
Turku, Länsiranta138 m²ToimistotVuokrataan toimitilaa Turusta, Kaakelilinnasta. Kiinteistö Oy Turun Kaakelinna koostuu kahdesta osoitteessa Linnankatu 50 - 52 sijaitsevasta rakenn...
Kysy hintaa! -
Tallenna693 m²Toimistot
Keilasataman vuonna 2001 rakennettu toimistokeskus tarjoaa vuokralaisille korkeatasoista ja edustavaa toimistotilaa. Vapaana 693 m2 toimistotila 7. ke...
Kysy hintaa! -
Tallenna157 m²Toimistot
Keilasataman vuonna 2001 rakennettu toimistokeskus tarjoaa vuokralaisille korkeatasoista ja edustavaa toimistotilaa. Kaikki tilat on mahdollista saada...
Kysy hintaa! -
Tallenna220 m²Toimistot
Vuokrataan toimistotilaa arvokiinteistön neljännestä kerroksesta. Pohjoisesplanadi 37 on Helsingin ydinkeskustan haluttu osoite liike-elämän, halli...
Kysy hintaa! -
Tallenna268 m²Toimistot
Vuokrattavana toimistotilaa viidennestä kerroksesta 268m2. Kiinteistö Oy Mikonkatu 2 - Pohjoisesplanadi 35 sijaitsee loistavalla paikalla Helsingin...
Kysy hintaa! -
Tallenna73 m²Toimistot
Vapaana eri kokoisia toimistotiloja 5.kerroksessa, kuten tämä 73 m2 toimistotila. Tilassa kaksi huonetta ja avotilaa. Vallilan Akseli ja Elina koos...
Kysy hintaa! -
Tallenna400 m²Toimistot
Vuokrataan toisesta kerroksesta toimistotilaa. Aallonharja tarjoaa toimitiloja kaikenkokoisille yrityksille. Kiinteistön palveluihin lukeutuvat au...
Kysy hintaa! -
Tallenna140 m²Toimistot
Hyväkuntoinen tila jossa 4 huonetta. Vuonna 1966 rakennettu ja 2005 peruskorjattu kiinteistö näkyvällä paikalla Ruoholahdenkadun ja Abrahaminkadun...
Kysy hintaa! -
Tallenna140 m²Toimistot
Hyvä kuntoinen ja valoisa tila. Vuonna 1966 rakennettu ja 2005 peruskorjattu kiinteistö näkyvällä paikalla Ruoholahdenkadun ja Abrahaminkadun kulma...
Kysy hintaa! -
Tallenna2 538 m²Varastot
Linjatie 2 on perinteikäs aurinkopaneelein varustettu logistiikka- ja toimistokiinteistö Itä-Hakkilan teollisuusalueella. Kohteen varastotilojen vapaa...
Kysy hintaa! -
Tallenna1 715 m²Varastot
Linjatie 2 on perinteikäs aurinkopaneelein varustettu logistiikka- ja toimistokiinteistö Itä-Hakkilan teollisuusalueella. Kohteen varastotilojen vapaa...
Kysy hintaa! -
Tallenna1 370 m²Varastot
Vuokrattavana ensimmäisen kerroksen varastotilaa yhdellä nosto-ovella. Vapaa korkeus noin 6 metriä. Linjatie 2 on perinteikäs aurinkopaneelein varu...
Kysy hintaa! -
Tallenna450 m² - 2 636 m²LiiketilatVarastot
Seinäjoen keskustan tuntumassa on vapaana erittäin siisti liike/varasto/tuotantotila. Tila voidaan jakaa helposti kahdelle eri käyttäjälle. Isompi myy...
Kysy hintaa! -
Tallenna238 m² - 902 m²Toimistot
"Tästä monitilatyöympäristöstä avautuu ikkunat kolmeen suuntaan. Koko kerros on n. 902 m2 ja tilan ikkunat neljään suuntaan. Muuttovalmista tasokasta ...
Kysy hintaa! -
Tallenna149 m²Toimistot
120 m2 kokoinen toimistotila, jolla on osuus toisen vuokralaisen kanssa jaettavista yhteistiloista. Omassa tilassa on avotoimistoa, neuvottelutila, ka...
Kysy hintaa! -
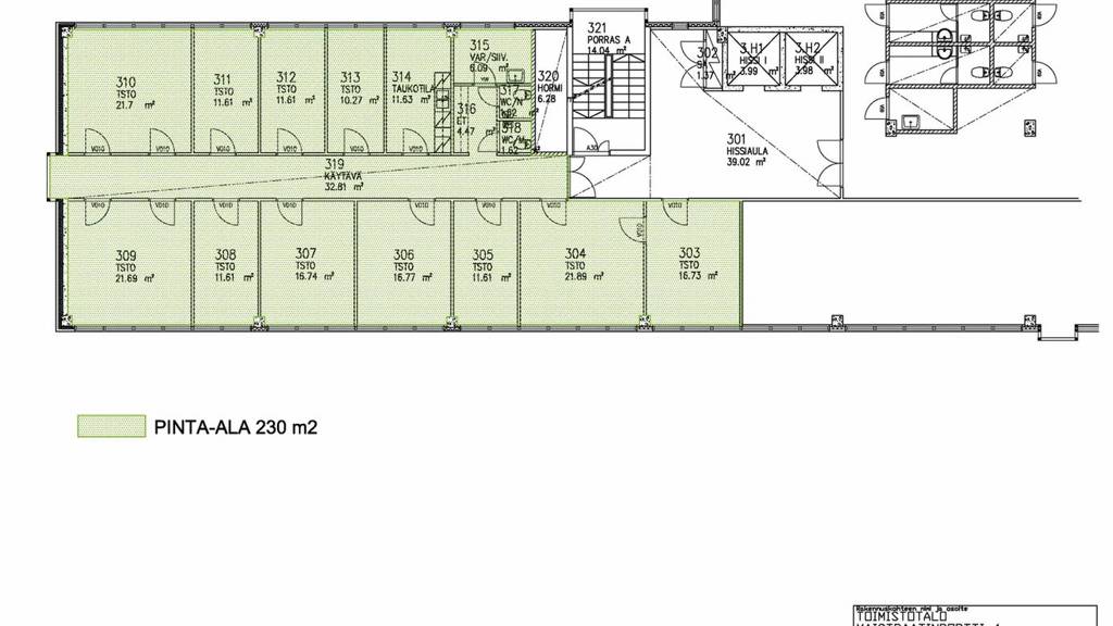
Tallenna230 m²Toimistot
Peruskuntoista huonetoimistoa (4 yhden ja 3 neljän hengen työhuonetta) sekä kaksi neuvotteluhuonetta (8 -10 hengen). Huoneet eivät ole äänieristettyjä...
Kysy hintaa! -
Tallenna235 m²Toimistot
Vuokrataan tyylikkäästi remontoitu hyvällä sijainnilla sekä merinäköalalla varusteltu toimistotila. Kiinteistö sijaitsee Helsingin keskustassa, Kauppa...
Kysy hintaa! -
Tallenna318 m²Liiketilat
Kulku liiketilaan Säästöpankinrannan puolelta. Eläintarhan lahti, viihtyisä rantabulevardi ja Hakanimen kauppahalli ovat aivan vieressä. Lähellä mo...
Kysy hintaa! -
Tallenna184 m²Toimistot
Vuokrataan Espoon Sinimäellä sijaitseva kiinteistön viidennen kerroksen toimistotila. Tilassa on erillisiä huoneita sekä keittiö ja wc-tilat. Kiintei...
Kysy hintaa! -
Tallenna116 m²Toimistot
Vuokrattavana 4. kerroksen 115,5 m2 toimisto. Tila koostuu kahdesta avotilasta. Tästä pienellä pintaremontilla edullista ja muunneltavaa toimistotilaa...
Kysy hintaa! -
Tallenna131 m²Toimistot
Vuokrattavana toimistotilaa hyvien liikenneyhteyksien varrelta Mankkaalta. Kiinteistön pihalla on tarjolla autopaikkoja. Vapautumassa kolmannessa ...
Kysy hintaa! -
Tallenna
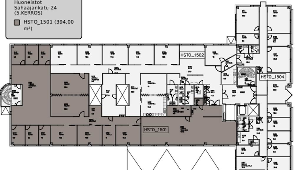
Sahaajankatu 24
Helsinki, Herttoniemi394 m²ToimistotVuokrataan hyvää ja muunneltavaa toimistotilaa hyvien liikenneyhteyksien varrelta Herttoniemestä, teollisuusalueelta. Vuokrattavana toisesta kerrokse...
Kysy hintaa! -
Tallenna474 m²Toimistot
Vuokrataan siisti ja remontoitu toimistotila Sinimäessä Turunväylän varrella. Tila koostuu avotilasta ja huoneista. Kohde on helposti saavutettavi...
Kysy hintaa! -
Tallenna140 m²Toimistot
Viidennen kerroksen toimistotila. Toimitila koostuu avotilasta ja kahdesta huoneesta. Kohde sijaitsee Turunväylän varrella Espoon Sinimäessä. Lisät...
Kysy hintaa!











































































































































































































