Vuokrattavana toimistotilaa Helsingin Kaisaniemessä. Tämä moderni 317,5m2 toimistotila sijaitsee kiinteistön 5. kerroksessa. Toimistossa on avotil...
Uudet käyttö- ja sopimusehdot
Päivitämme käyttö- ja sopimusehtojamme. Uudet ehdot ovat voimassa 1.5.2025 alkaen. Tutustu ehtoihin
Bureau Real Estate Finland Oy
Bureau Toimitilat on suomalainen toimitilavälitysyritys. Olemme tehneet tuloksellista välitystyötä jo vuodesta 2010. Toimintamme lähtökohtana ovat asiakaskeskeisyys ja ratkaisulähtöisyys. Haluamme olla nyt ja tulevaisuudessa yritysten luotettavin kumppani toimitilojen hankintaprosessissa. Olemme tilanhakijan apuna koko toimitilojen hankintaprosessin ajan aina tilatarpeen kartoituksesta sopimuksen allekirjoittamiseen asti. Palvelumme on tilanhakijalle ilmainen. Meiltä saat kaikki tarpeisiinne soveltuvat toimitilavaihtoehdot yhdellä yhteydenotolla.
-
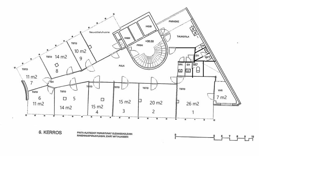
Tallenna318 m²ToimistotKysy hintaa!
-
Tallenna134 m²Liiketilat
Vuokrattavana liiketilaa Helsingin Hakaniemessä. Tämä 134m2 liiketila sijaitsee metrokäytävällä. Tila koostuu avotilasta ja siihen kuuluu omat sosi...
Kysy hintaa! -
Tallenna70 m²Toimistot
Toimisto, tuotanto- tai varastotilaa Herttoniemen Roihupellossa. Kyseinen 70 m² kevyeen tuotantoon tai varastointiin soveltuva tila sijaitsee kiint...
Kysy hintaa! -
Tallenna70 m²Varastot
Toimisto, tuotanto- tai varastotilaa Herttoniemen Roihupellossa. Kyseinen 70 m² kevyeen tuotantoon tai varastointiin soveltuva tila sijaitsee kiint...
Kysy hintaa! -
Tallenna70 m²Tuotantotilat
Toimisto, tuotanto- tai varastotilaa Herttoniemen Roihupellossa. Kyseinen 70 m² kevyeen tuotantoon tai varastointiin soveltuva tila sijaitsee kiint...
Kysy hintaa! -
Tallenna20 m²Toimistot
Toimistotilaa Sörnäisissä erinomaisella sijainnilla. Kiinteistön 6. kerroksessa on pientoimistoalue, jossa on vuokrattavana toimistohuoneita kokol...
Kysy hintaa! -
Tallenna165 m²Toimistot
Tyylikästä toimistotilaa Vantaan Tikkurilassa, Silkkitehtaalla. Tämä uniikki 165m2 toimistotila sijaitsee kiinteistön katutasossa. Toimistossa on a...
Kysy hintaa! -
Tallenna87 m²Liiketilat
Vuokrattavana liiketilaa Jyväskylän keskustasta. Kyseinen 87m2 liiketila sijaitsee kiinteistön katutasossa. Tilaa voidaan muokata vuokralaisen tar...
Kysy hintaa! -
Tallenna174 m²Toimistot
Vuokrattavana toimistotilaa Helsingin keskustassa. Tämä tila on kooltaan 174m2 ja se sijaitsee kiinteistön 6. kerroksessa. Tila on pääosin huoneel...
Kysy hintaa! -
Tallenna205 m²Toimistot
Siistiä toimistotilaa Helsingissä, Töölönlahden rannalla. Tämä 205m2 toimistotila sijaitsee kiinteistön 1. kerroksessa. Tila on hyväkuntoinen ja he...
Kysy hintaa! -
Tallenna260 m²Toimistot
Siistiä toimistotilaa Helsingissä, Töölönlahden rannalla. Tämä 260m2 toimistotila sijaitsee kiinteistön 1. kerroksessa. Tila on hyväkuntoinen, ja s...
Kysy hintaa! -
Tallenna99 m²Liiketilat
Liiketilaa Pasilassa, hyvien liikenneyhteyksien varrella. Tämä 99m2 liiketila sijaitsee kiinteistön 1. kerroksessa. Tila soveltuu myös toimistokäy...
Kysy hintaa! -
Tallenna424 m²Toimistot
Liiketilaa Helsingin Kampissa. Tämä 423,5m2 tila sijaitsee kiinteistön katutasossa. Oma sisäänkäynti Eerikinkadulta. Tilassa on omat sosiaalitilat....
Kysy hintaa! -
Tallenna1 060 m²Tuotantotilat
Tuotanto-/varastotilaa Lahden seudulla Orimattilassa. Vuokrattavana varasto-/tuotantotilaa yhteensä 2828m2. Tila on 7 metriä korkeaa ja sisältää la...
Kysy hintaa! -
Tallenna1 060 m²Varastot
Tuotanto-/varastotilaa Lahden seudulla Orimattilassa. Vuokrattavana varasto-/tuotantotilaa yhteensä 2828m2. Tila on 7 metriä korkeaa ja sisältää la...
Kysy hintaa! -
Tallenna1 582 m²Tuotantotilat
Tuotanto-/varastotilaa Lahden seudulla Orimattilassa. Vuokrattavana varasto-/tuotantotilaa yhteensä 2828m2. Tila on 7 metriä korkeaa ja sisältää la...
Kysy hintaa! -
Tallenna1 582 m²Varastot
Tuotanto-/varastotilaa Lahden seudulla Orimattilassa. Vuokrattavana varasto-/tuotantotilaa yhteensä 2828m2. Tila on 7 metriä korkeaa ja sisältää la...
Kysy hintaa! -
Tallenna826 m²Toimistot
Erittäin tyylikästä ja modernia toimistotilaa Helsingin Sörnäisissä. Kyseinen 826,3m2 tila tarjoaa muuntojoustavat ja edustavat toimistotilat talo...
Kysy hintaa! -
Tallenna192 m²Toimistot
Vuokrattavana siistiä toimistotilaa Helsingin Sörnäisissä. Tämä 192m2 toimistotila sijaitsee kiinteistön 4. kerroksessa. Kuvat ovat havainnekuvia ...
Kysy hintaa! -
Tallenna608 m²Toimistot
Vuokrataan toimistotilaa Sörnäisissä. Tämä 949m2 kokoinen toimisto kattaa kiinteistön 5. kerroksen. Tilassa on avotilan lisäksi työhuoneita sekä o...
Kysy hintaa! -
Tallenna1 072 m²Toimistot
Toimistotilaa Helsingin Sörnäisissä historiallisessa Väinö-talossa. Tämä 1072 m² saneerattu toimistotila sijaitsee kiinteistön 3. kerroksessa. Toi...
Kysy hintaa! -
Tallenna153 m²Liiketilat
Liiketilaa Helsingin Siltasaaressa. Tämä 153m2 liiketila sijaitsee kiinteistön katutasossa. Kuvat ovat yleiskuvia kiinteistön tiloista. John St...
Kysy hintaa! -
Tallenna490 m²Toimistot
Modernia toimistotilaa Ruoholahdesta. Tämä 490m2 toimistotila sijaitsee kiinteistön 4. kerroksessa. Itämerenkatu 11-13 on toimistokiinteistö H...
Kysy hintaa! -
Tallenna1 348 m²Toimistot
Modernia toimistotilaa Helsingin Pitäjänmäeltä, Valimo Parkista. Tämä 1348m2 toimistotila sijaitsee kiinteistön 4. kerroksessa. Kuvat ovat yleiskuv...
Kysy hintaa! -
Tallenna150 m²Toimistot
Vuokrattavana toimistotilaa Vaasan keskustasta. Kyseinen 150m2 tila sijaitsee kiinteistön 2. kerroksessa. Sampotalo on toimistotalo erinomaise...
Kysy hintaa!























































































































































































