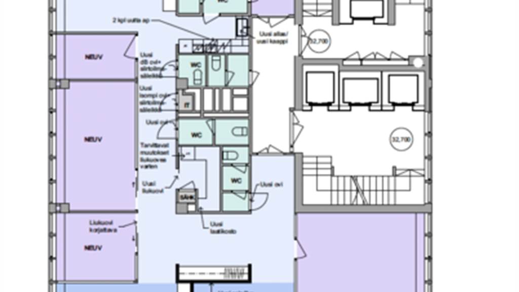
Nykyaikaista toimistotilaa Aviabulevardilla. Tämä tila on kooltaan 228,5m2 ja se sijaitsee kiinteistön 3. kerroksessa. Toimiston pinta-alaan lisätä...
Uudet käyttö- ja sopimusehdot
Päivitämme käyttö- ja sopimusehtojamme. Uudet ehdot ovat voimassa 1.5.2025 alkaen. Tutustu ehtoihin
Bureau Real Estate Finland Oy
Bureau Toimitilat on suomalainen toimitilavälitysyritys. Olemme tehneet tuloksellista välitystyötä jo vuodesta 2010. Toimintamme lähtökohtana ovat asiakaskeskeisyys ja ratkaisulähtöisyys. Haluamme olla nyt ja tulevaisuudessa yritysten luotettavin kumppani toimitilojen hankintaprosessissa. Olemme tilanhakijan apuna koko toimitilojen hankintaprosessin ajan aina tilatarpeen kartoituksesta sopimuksen allekirjoittamiseen asti. Palvelumme on tilanhakijalle ilmainen. Meiltä saat kaikki tarpeisiinne soveltuvat toimitilavaihtoehdot yhdellä yhteydenotolla.
-
Tallenna228 m²ToimistotKysy hintaa!
-
Tallenna736 m²Toimistot
Vuokrattavana toimistotilaa Helsingin Punavuoresta. Tämä valoisa ja persoonallinen 736m2 toimistotila sijaitsee kiinteistön 1. kerroksessa. Tila j...
Kysy hintaa! -
Tallenna426 m²Toimistot
Vuokrattavana toimistotilaa Helsingin Punavuoresta. Tämä 425,5m2 toimistotila sijaitsee D-portaan 5. kerroksessa. Toimisto on tyylikäs ja moderni....
Kysy hintaa! -
Tallenna655 m²Tuotantotilat
Toimisto- ja tuotantotilaa Kajaskiventiellä Hämeenlinnassa. Tämä 655m2 toimisto-/tuotantotila sijaitsee kiinteistön 1-2. kerroksessa. Tilaan kuuluu...
Kysy hintaa! -
Tallenna73 m²Liiketilat
Vuokrattavana liiketilaa Helsingin Hakaniemessä. Tämä 73m2 liiketila sijaitsee Hakaniemen metroasemalla. Tila on näkyvällä paikalla ja siihen kuulu...
Kysy hintaa! -
Tallenna569 m²Toimistot
Toimistotilaa loistavalla sijainnilla Kampissa, Autotalossa. Tämä 569,4 m² toimistotila sijaitsee B-rapun 6. kerroksessa. Toimistossa on huoneita,...
Kysy hintaa! -
Tallenna208 m²Toimistot
Toimistotilaa loistavalla sijainnilla Kampissa, Autotalossa. Tämä 207,7 m² toimistotila sijaitsee A-rapun 6. kerroksessa. Toimisto on huoneellinen...
Kysy hintaa! -
Tallenna216 m²Toimistot
Vuokrattavana toimistotilaa Turun Science Parkissa. Tämä 216,5m2 toimisto sijaitsee kiinteistön 4. kerroksessa. Toimistossa on avotilaa, muutama h...
Kysy hintaa! -
Tallenna248 m²Liiketilat
Ravintolatilaa Espoonlahden Lippulaivasta. Tämä 248 m² liiketila sijaitsee kiinteistön 1. kerroksessa. Tila soveltuu ravintolatoimintaan. Uusi m...
Kysy hintaa! -
Tallenna172 m²Toimistot
Toimistotilaa hyvällä sijainnilla Oulun keskustassa. Kyseinen 172 m² toimisto sijaitsee kiinteistön 2. kerroksessa. Tila on avonainen, ja siihen ku...
Kysy hintaa! -
Tallenna203 m²Toimistot
Toimistotilaa Lahden keskustan tuntumassa. Tämä siisti 203m2 toimistotila sijaitsee kiinteistön 2. kerroksessa. Vuorikatu 35 on toimistokiinte...
Kysy hintaa! -
Tallenna179 m²Toimistot
Toimisto/liiketilaa Helsingin keskustassa. Tämä 179 m² tila sijaitsee kiinteistön sisäpihalla katutasossa. Tila on pääosin avotilaa ja siihen kuulu...
Kysy hintaa! -
Tallenna179 m²Liiketilat
Toimisto/liiketilaa Helsingin keskustassa. Tämä 179m2 tila sijaitsee kiinteistön sisäpihalla katutasossa. Tila on pääosin avotilaa ja siihen kuuluu...
Kysy hintaa! -
Tallenna650 m²Toimistot
Toimistotilaa loistavalla sijainnilla Kampissa, Autotalossa. Tämä 650m2 toimistotila sijaitsee B-rapun 2. kerroksessa. Tila koostuu avotilasta sek...
Kysy hintaa! -
Tallenna101 m²Varastot
Varastotilaa Helsingin Kaartinkaupungissa. Tämä 101m2 kokoinen varastotila sijaitsee kiinteistön -3. kerroksessa. Tilaan on käynti Unioninkatu 13:n...
Kysy hintaa! -
Tallenna100 m²Liiketilat
Liike-/toimistotilaa hyvällä sijainnilla keskustan läheisyydessä. Tämä 100,5m2 toimitila sijaitsee kiinteistön katutasossa. Tila soveltuu sekä liik...
Kysy hintaa! -
Tallenna100 m²Toimistot
Liike-/toimistotilaa hyvällä sijainnilla keskustan läheisyydessä. Tämä 100,5m2 toimitila sijaitsee kiinteistön katutasossa. Tila soveltuu sekä liik...
Kysy hintaa! -
Tallenna18 m²Toimistot
Pientoimistotilaa Helsingin Herttoniemessä. Kiinteistön 2. kerroksessa on pientoimistoalue, josta on vuokrattavana 10-53,5m2 kokoisia toimistotiloj...
Kysy hintaa! -
Tallenna1 874 m²Toimistot
Varasto- ja toimistotilaa Helsingin Konalassa. Tämä 1873,5m2 toimitila sijaitsee kiinteistön 2. kerroksessa. Tila koostuu 859,5m2 kokoisesta varas...
Kysy hintaa! -
Tallenna737 m²Toimistot
Varasto- ja toimistotilaa Helsingin Konalassa. Tämä 2514,5m2 toimitila koostuu 1. kerroksen 1778m2 varastotilasta sekä toisen kerroksen 736,5m2 to...
Kysy hintaa! -
Tallenna1 778 m²Varastot
Varasto- ja toimistotilaa Helsingin Konalassa. Tämä 2514,5m2 toimitila koostuu 1. kerroksen 1778m2 varastotilasta sekä toisen kerroksen 736,5m2 to...
Kysy hintaa! -
Tallenna83 m²Toimistot
Toimisto- ja varastotilaa Espoon Kiviruukissa. Tämä 83m² siisti ja hyväkuntoinen tila sijaitsee kiinteistön 2. kerroksessa. Tilassa on tilavia toim...
Kysy hintaa! -
Tallenna82 m²Varastot
Varastotilaa Helsingin Suutarilassa. Tämä siisti 82m2 varastotila sijaitsee kiinteistön 2. kerroksessa. Tila koostuu kahdesta huoneesta ja se sovel...
Kysy hintaa! -
Tallenna475 m²Toimistot
Toimistotilaa Tampereen Dynamo Business Parkista. Tämä 475 m² tila sijaitsee kiinteistön 2. kerroksessa. Toimisto on mahdollista remontoida vuokra...
Kysy hintaa! -
Tallenna412 m²Varastot
Monitoimitilaa Espoon Juvanmalmilla. Tämä 412m2 tila sijaitsee kiinteistön katutasossa. Tila soveltuu moneen eri käyttötarkoitukseen. Sitä on mahdo...
Kysy hintaa!










































































































































































































