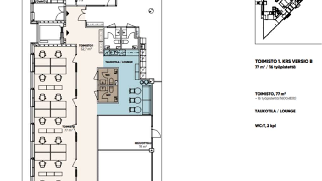
Vuokrattavana toimistotilaa Ruoholahdessa. Tämä 268m² toimisto sijaitsee kiinteistön 3. kerroksessa. Tehokas huone- tai avokonttoritoimisto. Po...
Uudet käyttö- ja sopimusehdot
Päivitämme käyttö- ja sopimusehtojamme. Uudet ehdot ovat voimassa 1.5.2025 alkaen. Tutustu ehtoihin
Bureau Real Estate Finland Oy
Bureau Toimitilat on suomalainen toimitilavälitysyritys. Olemme tehneet tuloksellista välitystyötä jo vuodesta 2010. Toimintamme lähtökohtana ovat asiakaskeskeisyys ja ratkaisulähtöisyys. Haluamme olla nyt ja tulevaisuudessa yritysten luotettavin kumppani toimitilojen hankintaprosessissa. Olemme tilanhakijan apuna koko toimitilojen hankintaprosessin ajan aina tilatarpeen kartoituksesta sopimuksen allekirjoittamiseen asti. Palvelumme on tilanhakijalle ilmainen. Meiltä saat kaikki tarpeisiinne soveltuvat toimitilavaihtoehdot yhdellä yhteydenotolla.
-
Tallenna268 m²ToimistotKysy hintaa!
-
Tallenna20 m²Toimistot
Uutta vastaavaa ja tyylikästä pientoimistotilaa Hakaniemestä. Kiinteistössä on tyylikäs POOL-pientoimistoalue, joka tarjoaa muuttovalmiita pientoi...
Kysy hintaa! -
Tallenna162 m²Toimistot
Toimistotilaa Tampereella, keskustan kupeessa. Vuokrattavana 162m2 toimistotila kiinteistön 1. kerroksessa. Toimistossa on omat keittiö- ja wc-tila...
Kysy hintaa! -
Tallenna328 m²Toimistot
Toimistotilaa Tampereella, keskustan kupeessa. Vuokrattavana 327,5m2 toimistotila kiinteistön 1. kerroksessa. Toimistossa on huoneita, avotilaa sek...
Kysy hintaa! -
Tallenna840 m²Toimistot
Siistiä ja edustavaa toimistotilaa Helsingin Pitäjänmäellä. Tämä 840,5m2 toimistotila sijaitsee kiinteistön 2. kerroksessa. Toimistossa on huoneit...
Kysy hintaa! -
Tallenna8 528 m²Varastot
Varasto-/terminaalitilaa Vantaan Virkamiehessä. Tämä 8528 m² tila sijaitsee kiinteistön 1. kerroksessa. Varasto-/terminaalitilaa, jonka vapaa korke...
Kysy hintaa! -
Tallenna408 m²Toimistot
Teollisuushenkistä toimistotilaa Vallilasta Helsingistä. Tämä 407,5 m² kokoinen tila sijaitsee kiinteistön 5. kerroksessa. Avara tilakorkeus, indus...
Kysy hintaa! -
Tallenna460 m²Toimistot
Teollisuushenkistä toimistotilaa Vallilasta Helsingistä. Tämä 460 m² kokoinen tila sijaitsee kiinteistön 4. kerroksessa. Avara tilakorkeus, industr...
Kysy hintaa! -
Tallenna1 000 m²Toimistot
Laadukasta toimistotilaa Helsinki-Vantaan lentokentän välittömässä läheisyydessä. Tämä noin. 1000m² kokoinen toimistokokonaisuus sijaitsee kiinteis...
Kysy hintaa! -
Tallenna385 m²Toimistot
Siistiä laadukkaasti uudistettua toimistotilaa Espoon Tapiolassa. Tämä 385m² toimistotila sijaitsee kiinteistön 3. kerroksessa. Tila on pääosin avo...
Kysy hintaa! -
Tallenna973 m²Toimistot
Siistiä toimistotilaa Espoon Tapiolassa. Tämä 588 m² toimistotila sijaitsee kiinteistön 3. kerroksessa. Tilassa on avotilaa, sekä muutamia erikokoi...
Kysy hintaa! -
Tallenna588 m²Toimistot
Siistiä toimistotilaa Espoon Tapiolassa. Tämä 588 m² toimistotila sijaitsee kiinteistön 3. kerroksessa. Tilassa on avotilaa, sekä muutamia erikokoi...
Kysy hintaa! -
Tallenna589 m²Toimistot
Siistiä toimistotilaa Espoon Tapiolassa. Tämä moderni ja valoisa 589m² toimistotila sijaitsee kiinteistön 2. kerroksessa. Tila on pääosin avotilaa....
Kysy hintaa! -
Tallenna2 168 m²Toimistot
Vuokrattavana pääkonttoritason laadukasta toimitilaa Leppävaarasta. Tämä 2168 m² tila sijaitsee kiinteistön 2. kerroksessa. Tiloissa on avotilaa, ...
Kysy hintaa! -
Tallenna1 489 m²Toimistot
Vuokrattavana pääkonttoritason laadukasta toimitilaa Leppävaarasta. Tämä 1498 m² tila sijaitsee kiinteistön 2. kerroksessa. Muuntojoustava tila on...
Kysy hintaa! -
Tallenna639 m²Toimistot
Vuokrattavana pääkonttoritason laadukasta toimitilaa Leppävaarasta. Tämä 2. kerroksen 639 m² muuntojoustava tila on mahdollista vuokrata 133m² kes...
Kysy hintaa! -
Tallenna377 m²Toimistot
Toimistotilaa Turun Muhkurissa. Vuokrattavana 377m2 toimistotilaa. Tila on aiemmin ollut suunnittelutoimiston käytössä. Postikatu 3 sijaitsee li...
Kysy hintaa! -
Tallenna486 m²Toimistot
Toimistotilaa näkyvällä paikalla Koivuhaassa. Tämä 486m2 toimistotila sijaitsee kiinteistön 2. ja 3. kerroksessa. Tila remontoidaan vuokralaisen t...
Kysy hintaa! -
Tallenna636 m²Toimistot
Hyväkuntoista toimistotilaa Helsingin Pitäjänmäellä. Tämä 2543 m² kokoinen toimistotila sijaitsee kiinteistön 2. kerroksessa. Toimistossa on sekä h...
Kysy hintaa! -
Tallenna318 m²Toimistot
Hyväkuntoista toimistotilaa Helsingin Pitäjänmäellä. Tämä 2543 m² kokoinen toimistotila sijaitsee kiinteistön 2. kerroksessa. Toimistossa on sekä h...
Kysy hintaa! -
Tallenna2 543 m²Toimistot
Hyväkuntoista toimistotilaa Helsingin Pitäjänmäellä. Tämä 2543 m² kokoinen toimistotila sijaitsee kiinteistön 2. kerroksessa. Toimistossa on sekä h...
Kysy hintaa! -
Tallenna245 m²Varastot
Vuokrattavana varastotilaa Raisiosta. Tämä 245m2 varastotila sijaitsee kiinteistön 1. kerroksessa. Varastoon on nosto-oviyhteys. Kuninkaanväylä...
Kysy hintaa! -
Tallenna645 m²Toimistot
Toimistotilaa Helsingin Kaisaniemessä. Tämä 645m² toimistotila sijaitsee kiinteistön 2. kerroksessa. Tilassa on avotilaa, työ- ja neuvotteluhuonei...
Kysy hintaa! -
Tallenna344 m²Toimistot
Toimistotilaa Helsingin Konalassa, lähellä Vihdintietä. Tämä 344m2 tila sijaitsee kiinteistön 2 kerroksessa. Kiinteistön tilat ovat helposti muoka...
Kysy hintaa! -
Tallenna498 m²Toimistot
Toimistotilaa Oulun Technopolis Linnanmaassa. Tämä 498m2 toimistotila sijaitsee kiinteistön 3. kerroksessa. Toimistossa on avotilaa ja huoneita. Va...
Kysy hintaa!






























































































































































