Vuokrattavana toimistotilaa Hakaniemessä meren äärellä. Tämä 1026 m² toimistotila sijaitsee kiinteistön 8. kerroksessa. Huikeat merelliset näkymät...
Uudet käyttö- ja sopimusehdot
Päivitämme käyttö- ja sopimusehtojamme. Uudet ehdot ovat voimassa 1.5.2025 alkaen. Tutustu ehtoihin
Bureau Real Estate Finland Oy
Bureau Toimitilat on suomalainen toimitilavälitysyritys. Olemme tehneet tuloksellista välitystyötä jo vuodesta 2010. Toimintamme lähtökohtana ovat asiakaskeskeisyys ja ratkaisulähtöisyys. Haluamme olla nyt ja tulevaisuudessa yritysten luotettavin kumppani toimitilojen hankintaprosessissa. Olemme tilanhakijan apuna koko toimitilojen hankintaprosessin ajan aina tilatarpeen kartoituksesta sopimuksen allekirjoittamiseen asti. Palvelumme on tilanhakijalle ilmainen. Meiltä saat kaikki tarpeisiinne soveltuvat toimitilavaihtoehdot yhdellä yhteydenotolla.
-
Tallenna1 026 m²ToimistotKysy hintaa!
-
Tallenna142 m²Toimistot
Vuokrattavana toimistotilaa Hakaniemessä meren äärellä. Tämä 142,5 m² toimistotila sijaitsee kiinteistön 4. kerroksessa. Tila on laadukkaasti remo...
Kysy hintaa! -
Tallenna100 m²Liiketilat
Liiketilaa Helsingin Töölössä. Tämä n. 100 m² tila koostuu 68 m² katutason liiketilasta, n. 21 m² varastotilasta sekä sosiaalitiloista. Tilaan on s...
Kysy hintaa! -
Tallenna
Pursimiehenkatu 26
Helsinki, Punavuori280 m²ToimistotToimistotilaa Helsingin Punavuoressa, Mestaritalossa. Tämä siisti 280 m² toimistotila sijaitsee kiinteistön 5. kerroksessa. Toimistossa on avotilaa...
Kysy hintaa! -
Tallenna
Valuraudantie 9-13
Helsinki, Tattariharju205 m²VarastotVuokrataan varastotilaa Tattariharjun teollisuusalueelta. Tämä tila on kooltaan 205 m². Tilaan on nosto-oviyhteys. Valuraudantie 9-13 on piente...
Kysy hintaa! -
Tallenna130 m²Varastot
Vuokrattavana monikäyttöinen hallitila Helsingin Tattarisuolla. Kyseinen 130 m² hallitila on sisään ajettava, ja se soveltuu esimerkiksi korjaamoks...
10,38 €/m2/kk -
Tallenna248 m²Toimistot
Modernia toimistotilaa Rantatie Business Parkista, Helsingin Kalasatamasta. Tämä 248 m² toimistotila sijaitsee kiinteistön 6. kerroksessa. Toimist...
Kysy hintaa! -
Tallenna444 m²Toimistot
Modernia ja valoisaa toimistotilaa hyvällä sijainnilla Espoon Leppävaarassa Sellon kauppakeskuksen läheisyydestä. Tämä 444 m² tila sijaitsee kiinte...
Kysy hintaa! -
Tallenna3 000 m²Varastot
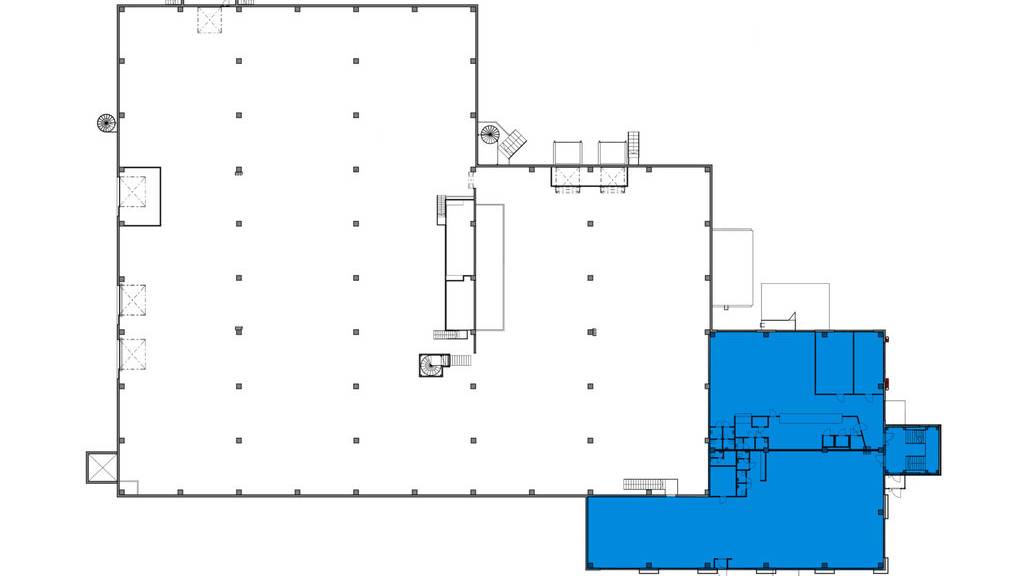
Varasto-/tuotanto ja toimistotilaa Espoon Koskelossa. Vuokrattavana 9039 m² tilakokonaisuus, joka koostuu 7100 m² tuotanto-/varastotilasta, 790 m² ...
Kysy hintaa! -
Tallenna3 000 m²Tuotantotilat
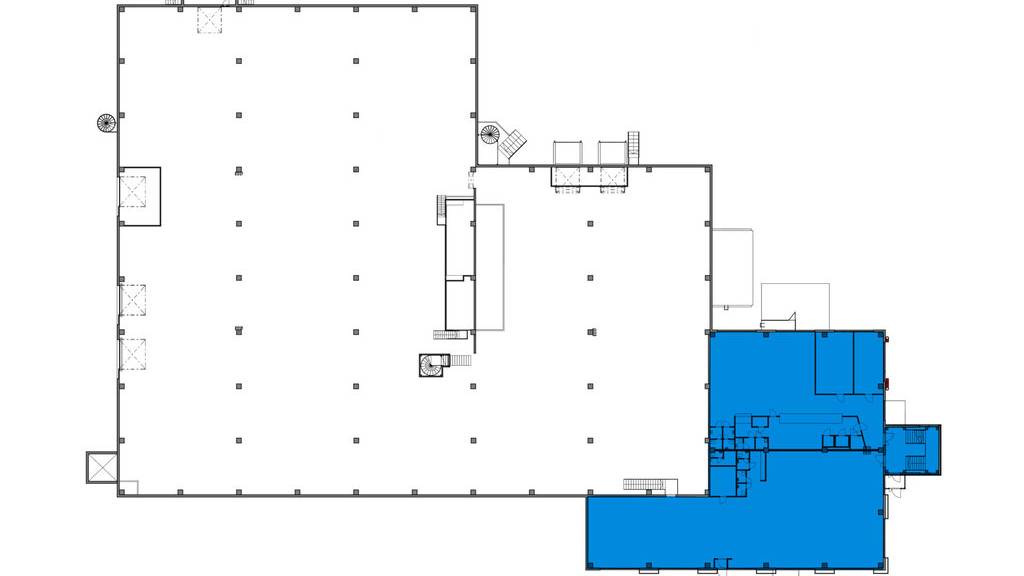
Varasto-/tuotanto ja toimistotilaa Espoon Koskelossa. Vuokrattavana 9039 m² tilakokonaisuus, joka koostuu 7100 m² tuotanto-/varastotilasta, 790 m² ...
Kysy hintaa! -
Tallenna9 039 m²Tuotantotilat
Varasto-/tuotanto ja toimistotilaa Espoon Koskelossa. Vuokrattavana 9039 m² tilakokonaisuus, joka koostuu 7100 m² tuotanto-/varastotilasta, 790 m² ...
Kysy hintaa! -
Tallenna
Tallberginkatu 2
Helsinki, Ruoholahti28 m²ToimistotToimistotilaa loistavalla sijainnilla Helsingin Ruoholahdessa. Tämä 28 m² toimistotila sijaitsee kiinteistön POOL Work -alueella. Tila koostuu yhd...
Kysy hintaa! -
Tallenna262 m²Toimistot
Vuokrattavana toimistotilaa Hakaniemen Paasitalossa. Kiinteistön 7. kerroksessa on vapaana upea 261,5 m² Aina Valmis -tila. Toimisto on täysin remo...
Kysy hintaa! -
Tallenna72 m²Toimistot
Tulevaisuuden toimistotilaa Kalasatamassa. Tämä 72 m² tila sijaitsee kiinteistön 2. kerroksessa, POOL Work -alueella. Wc-tilat, neuvotteluhuone ja ...
Kysy hintaa! -
Tallenna362 m²Toimistot
Vuokrattavana toimistotilaa Helsingin Punavuoresta. Kyseinen industrial-henkinen 362 m² toimisto sijaitsee kiinteistön 3. kerroksessa. Toimistossa...
Kysy hintaa! -
Tallenna80 m²Toimistot
Tyylikästä pientoimistotilaa Merikorttelista. Tämä 79,5 m² toimistotila sijaitsee kiinteistön POOL Work -alueella. Wc-tilat, neuvotteluhuone ja vi...
Kysy hintaa! -
Tallenna386 m²Toimistot
Vuokrattavana toimistotilaa Helsingin Punavuoresta. Kyseinen 386 m² toimisto sijaitsee kiinteistön 4. kerroksessa. Tila on tyylikäs, industrial-he...
Kysy hintaa! -
Tallenna
Rykmentin puistotie 34
Tuusula, Puustellinmetsä150 m²LiiketilatUutta modernia liiketilaa Tuusulan Puustellinmetsässä. Tämä 150 m² liiketila sijaitsee kiinteistön katutasossa. Tila on avara ja valoisa, ja siihen...
Kysy hintaa! -
Tallenna
Rykmentin puistotie 34
Tuusula, Puustellinmetsä82 m²LiiketilatUutta modernia liiketilaa Tuusulan Puustellinmetsässä. Tämä valoisa 82,5 m² liiketila sijaitsee kiinteistön katutasossa. Tila on avara ja siihen ku...
Kysy hintaa! -
Tallenna
Rykmentin puistotie 34
Tuusula, Puustellinmetsä68 m²LiiketilatUutta modernia liiketilaa Tuusulan Puustellinmetsässä. Tämä valoisa 67,5 m² liiketila sijaitsee kiinteistön katutasossa. Tila on avara ja siihen ku...
Kysy hintaa! -
Tallenna58 m²Toimistot
Siistiä toimistotilaa Jyväskylän ydinkeskustassa, Lutakon alueella. Tämä 58 m² toimistotila sijaitsee kiinteistön 3. kerroksessa. Tila soveltuu hyv...
Kysy hintaa! -
Tallenna131 m²Toimistot
Siistiä toimistotilaa Jyväskylän ydinkeskustassa, Lutakon alueella. Tämä 131 m² toimistotila sijaitsee kiinteistön 3. kerroksessa. Toimistossa on s...
Kysy hintaa! -
Tallenna220 m²Toimistot
Siistiä toimistotilaa Jyväskylän Ylistönmäellä. Tämä 220 m² toimisto sijaitsee kiinteistön 2. kerroksessa. Toimistossa on huoneita ja oma keittiö. ...
Kysy hintaa! -
Tallenna136 m²Toimistot
Toimistotilaa hyvällä paikalla Helsingin keskustassa. Tämä 136 m² toimistotila sijaitsee kiinteistön 6. kerroksessa. Toimisto on huoneellinen, ja s...
Kysy hintaa! -
Tallenna800 m²Toimistot
Modernia toimisto- ja liiketilaa uudistuvassa Tapiolan keskustornissa. Tapiolan keskustorni on Espoon kaupunkielämän keskuksessa sijaitseva ikonine...
Kysy hintaa!


























































































































































































































































































