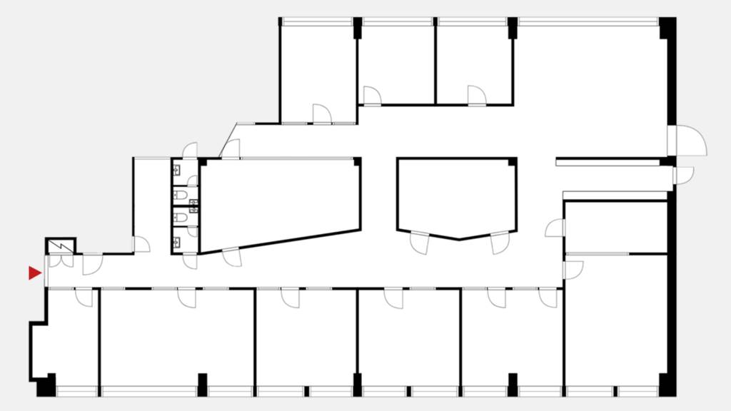
Vuokrattavana modernia toimistotilaa Tampereen Tammelasta. Kyseinen 650 m² toimistotila sijaitsee B-osan 8. kerroksessa. Toimistossa on huoneita, ...
Uudet käyttö- ja sopimusehdot
Päivitämme käyttö- ja sopimusehtojamme. Uudet ehdot ovat voimassa 1.5.2025 alkaen. Tutustu ehtoihin
Bureau Real Estate Finland Oy
Bureau Toimitilat on suomalainen toimitilavälitysyritys. Olemme tehneet tuloksellista välitystyötä jo vuodesta 2010. Toimintamme lähtökohtana ovat asiakaskeskeisyys ja ratkaisulähtöisyys. Haluamme olla nyt ja tulevaisuudessa yritysten luotettavin kumppani toimitilojen hankintaprosessissa. Olemme tilanhakijan apuna koko toimitilojen hankintaprosessin ajan aina tilatarpeen kartoituksesta sopimuksen allekirjoittamiseen asti. Palvelumme on tilanhakijalle ilmainen. Meiltä saat kaikki tarpeisiinne soveltuvat toimitilavaihtoehdot yhdellä yhteydenotolla.
-
Tallenna650 m²ToimistotKysy hintaa!
-
Tallenna131 m²Toimistot
Modernia ja edustavaa toimistotilaa Tampereen keskustan tuntumassa Technopolis Yliopistonrinteessä. Tämä 131 m² toimisto sijaitsee kiinteistön 4. k...
Kysy hintaa! -
Tallenna44 m²Toimistot
Toimistotilaa Technopolis Otaniemessä Innopoli 2:ssa aivan Kehä 1:n vieressä. Tämä 44m² pientoimistotila sijaitsee kiinteistön 3. kerroksessa. Wc-...
Kysy hintaa! -
Tallenna40 m²Toimistot
Toimistotilaa Technopolis Otaniemessä Innopoli 2:ssa aivan Kehä 1:n vieressä. Tämä 40 m² pientoimistotila sijaitsee kiinteistön 1. kerroksessa. Wc...
Kysy hintaa! -
Tallenna32 m²Toimistot
Pientoimistotilaa Technopolis Otaniemessä, Kehä I:n vieressä. Tämä 32 m² toimisto sijaitsee kiinteistön 5. kerroksessa. Tila koostuu kahdesta huon...
Kysy hintaa! -
Tallenna585 m²Toimistot
Modernia toimistotilaa Otaniemen teknologiakeskittymästä, Innopoli 3:sta. Kyseinen 370 m² toimistotila sijaitsee C-talon 6. kerroksessa. Toimistos...
Kysy hintaa! -
Tallenna215 m²Toimistot
Modernia toimistotilaa Otaniemen teknologiakeskittymästä, Innopoli 3:sta. Kyseinen 215 m² toimistotila sijaitsee C-talon 6. kerroksessa. Toimistos...
Kysy hintaa! -
Tallenna370 m²Toimistot
Modernia toimistotilaa Otaniemen teknologiakeskittymästä, Innopoli 3:sta. Kyseinen 370 m² toimistotila sijaitsee C-talon 6. kerroksessa. Toimistos...
Kysy hintaa! -
Tallenna1 380 m²Toimistot
Modernia toimistotilaa Otaniemen teknologiakeskittymästä, Innopoli 3:sta. Tämä 1380 m² toimistotila jakautuu kiinteistön 1. ja 2. kerrokseen. Toim...
Kysy hintaa! -
Tallenna835 m²Toimistot
Edustavaa toimistotilaa Technopolis Aviapoliksessa, aivan lentokentän läheisyydessä. Kyseinen 835 m² toimistotila sijaitsee uusimman H-talon 6. ker...
Kysy hintaa! -
Tallenna73 m²Toimistot
Edustavaa toimistotilaa Technopolis Aviapoliksessa, aivan lentokentän läheisyydessä. Kyseinen 73 m² toimistotila sijaitsee uusimman H-talon 3. kerr...
Kysy hintaa! -
Tallenna113 m²Toimistot
Edustavaa toimistotilaa Technopolis Aviapoliksessa, aivan lentokentän läheisyydessä. Kyseinen 113 m² toimistotila sijaitsee uusimman H-talon 1. ker...
Kysy hintaa! -
Tallenna75 m²Toimistot
Edustavaa toimistotilaa Technopolis Aviapoliksessa, aivan lentokentän läheisyydessä. Kyseinen 75 m² toimistotila sijaitsee uusimman H-talon 1. kerr...
Kysy hintaa! -
Tallenna170 m²Toimistot
Modernia toimitilaa merellisellä Technopolis Ruoholahden kampuksella Tämä 170 m² toimistotila sijaitsee kiinteistön 4. kerroksessa. Toimistossa on ...
Kysy hintaa! -
Tallenna135 m²Toimistot
Modernia toimitilaa merellisellä Technopolis Ruoholahden kampuksella Tämä 135 m² toimistotila sijaitsee kiinteistön 4. kerroksessa. Toimistossa on ...
Kysy hintaa! -
Tallenna120 m²Toimistot
Modernia toimitilaa merellisellä Technopolis Ruoholahden kampuksella Tämä 120 m² toimistotila sijaitsee kiinteistön 4. kerroksessa. Toimistossa on ...
Kysy hintaa! -
Tallenna226 m²Toimistot
Siistiä toimistotilaa Helsingissä, Pitäjänmäellä. Tämä tila on kooltaan 226 m², ja se sijaitsee kiinteistön ullakkokerroksessa. Toimistossa on huo...
Kysy hintaa! -
Tallenna316 m²Toimistot
Siistiä toimistotilaa Helsingissä, Pitäjänmäellä. Tämä tila on kooltaan 316 m², ja se sijaitsee kiinteistön 2. kerroksessa. Toimistossa on huoneit...
Kysy hintaa! -
Tallenna398 m²Varastot
Varasto-/toimisto-/näyttelytilaa Helsingin Suutarilassa. Tämä 398 m² monitoimitila sijaitsee kiinteistön katutasossa. Toimistotilassa on erillisiä ...
Kysy hintaa! -
Tallenna110 m²Varastot
Varastotilaa Helsingin Lauttasaaressa. Tämä 110 m² varastotila sijaitsee kiinteistön katutasossa. Ison avotilan lisäksi kaksi erillistä pientä var...
Kysy hintaa! -
Tallenna95 m²Toimistot
Toimistotilaa Helsingin Lauttasaaressa. Tämä 95 m² toimistotila sijaitsee kiinteistön 2. kerroksessa. Toimistossa on kolme tilavaa huonetta, pieni...
Kysy hintaa! -
Tallenna4 255 m²Varastot
Varasto-/tuotantotilaa Hyrylän teollisuusalueella. Vapautumassa 4255 m² teollisuus-/tuotantotilakokonaisuus Tuusulan Hyrylässä. Tehdasrakennuksen ...
Kysy hintaa! -
Tallenna404 m²Toimistot
Siistiä ja valoisaa toimistotilaa Kilon Timantissa. Tämä 404 m² toimisto sijaitsee kiinteistön 4. kerroksessa. Tila koostuu erikokoisista huoneist...
Kysy hintaa! -
Tallenna623 m²Toimistot
Nykyaikaista toimistotilaa Espoon Matinkylässä. Tämä 623 m² toimistokokonaisuus sijaitsee kiinteistön 6. kerroksessa. Tilassa on huoneita, avotilaa...
Kysy hintaa! -
Tallenna33 m²Toimistot
Nykyaikaista toimistotilaa Opus Business Parkissa Herttoniemessä. Tämä 33 m² toimistotila sijaitsee Opus2-talon 3. kerroksessa. Tila koostuu kahde...
Kysy hintaa!






















































































































































































































































