Toimistotilaa hyvällä sijainnilla Pitäjänmäellä. Kyseinen avara ja valoisa 365 m² toimistotila sijaitsee kiinteistön 3. kerroksessa. Tässä teollisu...
Uudet käyttö- ja sopimusehdot
Päivitämme käyttö- ja sopimusehtojamme. Uudet ehdot ovat voimassa 1.5.2025 alkaen. Tutustu ehtoihin
Bureau Real Estate Finland Oy
Bureau Toimitilat on suomalainen toimitilavälitysyritys. Olemme tehneet tuloksellista välitystyötä jo vuodesta 2010. Toimintamme lähtökohtana ovat asiakaskeskeisyys ja ratkaisulähtöisyys. Haluamme olla nyt ja tulevaisuudessa yritysten luotettavin kumppani toimitilojen hankintaprosessissa. Olemme tilanhakijan apuna koko toimitilojen hankintaprosessin ajan aina tilatarpeen kartoituksesta sopimuksen allekirjoittamiseen asti. Palvelumme on tilanhakijalle ilmainen. Meiltä saat kaikki tarpeisiinne soveltuvat toimitilavaihtoehdot yhdellä yhteydenotolla.
-
Tallenna365 m²ToimistotKysy hintaa!
-
Tallenna386 m²Varastot
Varastotilaa hyvällä sijainnilla Pitäjänmäellä. Kyseinen avonainen 386 m² varasto sijaitsee kiinteistön katutasossa. Tilassa on omat sosiaali- ja w...
Kysy hintaa! -
Tallenna228 m²Toimistot
Toimistotilaa Helsingin Kaisaniemessä. Tämä 228 m² toimistotila sijaitsee kiinteistön 3. kerroksessa. Tila remontoidaan tulevan vuokralaisen tarpe...
Kysy hintaa! -
Tallenna221 m²Toimistot
Toimistotilaa Helsingin Kaisaniemessä. Tämä 221 m² toimistotila sijaitsee kiinteistön 3. kerroksessa. Tila remontoidaan tulevan vuokralaisen tarpe...
Kysy hintaa! -
Tallenna152 m²Liiketilat
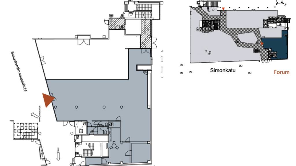
Vuokrattavana liiketilaa Helsingin ydinkeskustassa. Tämä 152 m² liiketila sijaitsee Simonkentän vilkkaalla kauppakujalla. Kampin ja Forumin kauppa...
Kysy hintaa! -
Tallenna266 m²Liiketilat
Vuokrattavana liiketilaa Helsingin ydinkeskustassa. Tämä 266 m² liiketila sijaitsee Simonkentän vilkkaalla kauppakujalla. Kampin ja Forumin kauppa...
Kysy hintaa! -
Tallenna323 m²Toimistot
Suosittu kohde erinomaisella sijainnilla Helsingin Kampissa. Tämä 323 m² toimistotila sijaitsee kiinteistön 3. kerroksessa. Tila on siistissä kunno...
Kysy hintaa! -
Tallenna400 m²Toimistot
Siistiä toimistotilaa erinomaisella paikalla Helsingin ydinkeskustassa. Tämä 400 m² toimistotila sijaitsee kiinteistön 3. kerroksessa. Aleksant...
Kysy hintaa! -
Tallenna
Kuninkaankatu 21
Tampere, Keskusta Tampere383 m²ToimistotVuokrattavissa toimistotilaa Tampereen keskustan arvokiinteistöstä. Tämä 383 m² toimisto sijaitsee kiinteistön 3. kerroksessa. Kauppakatu 6 si...
Kysy hintaa! -
Tallenna
Sörnäisten Rantatie 31
Helsinki, Sörnäinen500 m²LiiketilatVuokrattavana monitoimitilaa Helsingin Sörnäisissä. Tämä 500 m² toimisto-/liiketila sijaitsee kiinteistön 2. kerroksessa. Sörnäisten Rantatie ...
Kysy hintaa! -
Tallenna
Sörnäisten Rantatie 31
Helsinki, Sörnäinen500 m²ToimistotVuokrattavana monitoimitilaa Helsingin Sörnäisissä. Tämä 500 m² toimisto-/liiketila sijaitsee kiinteistön 2. kerroksessa. Sörnäisten Rantatie ...
Kysy hintaa! -
Tallenna
Sörnäisten Rantatie 31
Helsinki, Sörnäinen995 m²ToimistotVuokrattavana monitoimitilaa Helsingin Sörnäisissä. Tämä 995 m² toimisto sijaitsee kiinteistön 2. kerroksessa. Sörnäisten Rantatie 31 on toimi...
Kysy hintaa! -
Tallenna328 m²Toimistot
Korkeatasoista ja avaraa toimistotilaa Quartetto Business Parkissa, Leppävaarassa. Tämä 328 m² toimistotila sijaitsee kiinteistön 5. kerroksessa. T...
Kysy hintaa! -
Tallenna102 m²Toimistot
Korkeatasoista ja avaraa toimistotilaa Quartetto Business Parkissa, Leppävaarassa. Tämä 101,5 m² toimistotila sijaitsee kiinteistön 5. kerroksessa....
Kysy hintaa! -
Tallenna526 m²Toimistot
Toimistotilaa Meilahdessa Helsingissä. Tämä 526,5 m² toimistotila sijaitsee kiinteistön 4. kerroksessa. Toimisto on huoneellista, ja siinä on omat ...
Kysy hintaa! -
Tallenna350 m²Toimistot
Toimistotilaa Meilahdessa Helsingissä. Tämä 349,5 m² toimistotila sijaitsee kiinteistön 2. kerroksessa. Toimisto on huoneellista, ja siinä on omat ...
Kysy hintaa! -
Tallenna44 m²Toimistot
Siistiä ja nykyaikaista toimistotilaa Munkkivuoren Huudista. Tämä 44 m² toimistotila sijaitsee kiinteistön 3. kerroksessa. Vapautuminen 31.12.2025....
Kysy hintaa! -
Tallenna325 m²Toimistot
Korkeatasoista ja avaraa toimistotilaa Quartetto Business Parkissa, Leppävaarassa. Tämä 325 m² toimistotila sijaitsee 2. kerroksessa. Toimistossa o...
Kysy hintaa! -
Tallenna93 m²Toimistot
Siistiä ja nykyaikaista toimistotilaa Munkkivuoren Huudista. Tämä 93 m² toimistotila sijaitsee kiinteistön 3. kerroksessa. Kuvat ovat yleiskuvia ki...
Kysy hintaa! -
Tallenna915 m²Toimistot
Toimistotilaa Tampereella, keskustan kupeessa. Tämä 915 m² toimistotila sijaitsee kiinteistön 2. kerroksessa. Vapautuminen 1.1.2026. Kuvat ovat kii...
Kysy hintaa! -
Tallenna62 m²Toimistot
Siistiä toimistotilaa Helsingin Ruoholahdessa. Tämä 62 m² toimisto sijaitsee kiinteistön 3. kerroksessa. Vapautuminen 1.1.2026. Itämerenkatu 1 ...
Kysy hintaa! -
Tallenna
Valimotie 17-19
Helsinki, Pitäjänmäki215 m²ToimistotSiistiä toimistotilaa Pitäjänmäellä, Vihdintien varrella. Tämä 215 m² toimistotila sijaitsee kiinteistön 6. kerroksessa. Vapautuminen 1.12.2026. K...
Kysy hintaa! -
Tallenna148 m²Toimistot
Toimistotilaa Helsingin Kampissa erinomaisten liikenneyhteyksien varrella. Tämä 148 m² toimisto sijaitsee kiinteistön 5. kerroksessa. Ruoholah...
Kysy hintaa! -
Tallenna394 m²Toimistot
Toimistotilaa Tampereella, keskustan kupeessa. Tämä 394 m² toimistotila sijaitsee kiinteistön 1. kerroksessa. Toimistossa on avotilaa, yksi toimist...
Kysy hintaa! -
Tallenna310 m²Toimistot
Toimistotilaa arvokiinteistössä, Helsingin ydinkeskustassa. Tämä 310 m² toimisto sijaitsee kiinteistön 5. kerroksessa. Vapautuminen 1.1.2026. Po...
Kysy hintaa!






































































































































