Vuokrataan valoisa 4. krs toimistotila 857 m2. Vuokrattava kohde sijaitsee Turun ydinkeskustassa, osoitteessa Humalistonkatu 1, kahden korttelin pääs...
Uudet käyttö- ja sopimusehdot
Päivitämme käyttö- ja sopimusehtojamme. Uudet ehdot ovat voimassa 1.5.2025 alkaen. Tutustu ehtoihin
-
Tallenna857 m²ToimistotKysy hintaa!
-
Tallenna135 m²Toimistot
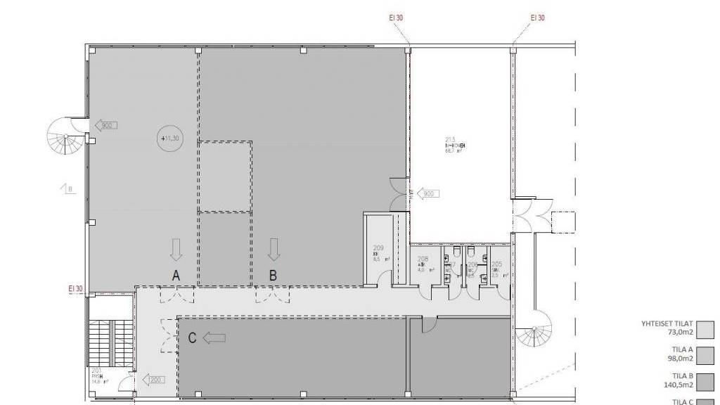
Vuokrattavana 3.krs n. 135m2 toimistotilat osoitteessa Huolintakatu 5, Turku. Tilakokonaisuus, jossa aulatilan lisäksi kaksi isohkoa ryhmähuonetta se...
Kysy hintaa! -
Tallenna308 m²Tuotantotilat
Vuokrattavana Länsikeskuksesta 308m2 varasto / varastomyymälä osoitteessa Viilarinkatu 4, 21280 Turku. Kellarikerroksessa oleva tilakokonaisuus jok...
5,91 €/m2/kk -
Tallenna133 m²Liiketilat
Vuokrattavana Purocenterin kiinteistössä katutason n.132m2 toimitilat osoitteessa Purokatu 2, Raisio. Tiloissa toiminut aikaisemmin Toolmax niminen l...
11,57 €/m2/kk -
Tallenna3 000 m²Toimistot
Mankkaalla hyvällä sijainnilla lähellä Turun moottoritietä siistiä monikäyttöistä tilaa. Rekennus on valmistunut 1987 ja peruskorjattu 2008 ja sen ...
Kysy hintaa! -
Tallenna472 m²Tuotantotilat
Huippupaikalla Lahden moottoritien ja Hanko-Porvoo-tien risteyksessä monikäyttöistä liike-, näyttely-, tuotanto-, varasto, aitohallitilaa. Yli 5.5 ...
Kysy hintaa! -
Tallenna236 m²Tuotantotilat
Huippupaikalla Lahden moottoritien ja Hanko-Porvoo-tien risteyksessä monikäyttöistä liike-, näyttely-, tuotanto-, varasto, aitohallitilaa. Yli 5 m ...
Kysy hintaa! -
Tallenna130 m²Toimistot
Vanhan tupakkatehtaan tiloissa upea 3. kerroksen toimistotila hyvällä sijainnilla lähellä Tuusulantietä. Kaksi sisäänkäyntiä ja kaksi wc:tä sekä keitt...
Kysy hintaa! -
Tallenna250 m²Toimistot
Vanhan tupakkatehtaan tiloissa toimistotilaa hyvällä sijainnilla lähellä Tuusulantietä. 20-250m2 Edullisesti, kysy vuokraa. Lisätiedot ja näytö...
Kysy hintaa! -
Tallenna60 m²Toimistot
Vanhan tupakkatehtaan toimisto hyvällä sijainnilla lähellä Tuusulantietä. Edullisesti, kysy vuokraa. Lisätiedot ja näytöt mika.tilli@rhg.fi / 04...
Kysy hintaa! -
Tallenna198 m²Toimistot
Vanhan tupakkatehtaan tiloissa upea 3. kerroksen toimistotila hyvällä sijainnilla lähellä Tuusulantietä. Kaksi sisäänkäyntiä ja kaksi wc:tä sekä keitt...
Kysy hintaa! -
Tallenna64 m²Varastot
Huonetila Erätalon kiinteistössä lähellä Riihimäe ABC:tä ja Hämeenlinnan moottoritietä. Sisältää käyttöoikeuden yhteiseen wc tiloihin ja neuvotteluhuo...
Kysy hintaa! -
Tallenna9 m²Toimistot
Business Park Riihimäki on yhteisöllinen työtila yrityksille. Tarjolla on uutta, modernia, jäähdytettyä toimistotilaa edullisesti. Täältä saa käyttöö...
Kysy hintaa! -
Tallenna300 m²Liiketilat
Mankkaalla hyvällä sijainnilla lähellä Turun moottoritietä siistiä monikäyttöistä tilaa. Katutasossa omalla sisäänkäynnillä varustettu korkeatasoin...
Kysy hintaa! -
Tallenna1 483 m²Toimistot
Vuokrattavana 3.kerroksen avo-/huonetoimisto ( 1483 m2). Tila remontoidaan vuokralaisen tarpeiden mukaan. Kauppakeskus Ruoholahti sijaitsee kiinteist...
Kysy hintaa! -
Tallenna750 m²Toimistot
Vuokrattavana muuttovalmis ja valoisa 4.kerroksen toimisto ( 750 m2). Kauppakeskus Ruoholahti sijaitsee kiinteistön vieressä, ja Porkkalankadulle pääs...
Kysy hintaa! -
Tallenna53 m²Liiketilat
Vuokrattavana katutason liiketila ( 53 m2) näkyvältä paikalta. Isot näyteikkunat vilkkaalle Itämerenkadulle. Tilaan rakennetaan taukotila/keittiö. T...
Kysy hintaa! -
Tallenna120 m²Toimistot
Suositulla Roihupellon yritys-/teollisuusalueella uudehko monitoimikiinteistö. Hyvä sijainti lähellä Itäväylää. 2.kerroksessa vapaana monikäyttöist...
Kysy hintaa! -
Tallenna172 m²Toimistot
Suositulla Roihupellon yritys-/teollisuusalueella uudehko monitoimikiinteistö. Hyvä sijainti lähellä Itäväylää. 2.kerroksessa vapaana monikäyttöist...
Kysy hintaa! -
Tallenna106 m²Toimistot
Roihupellon suositulla yritys-/teollisuusalueella uuden veroinen monitoimikiinteistö. Hyvä sijainti lähellä Itäväylää. 2.kerroksessa on vielä vapaa...
Kysy hintaa! -
Tallenna191 m²Toimistot
Syksyllä 2025 vapautumassa neljännen kerroksen siistiä toimistotilaa. Pirkkalan monipuolinen kauppakeskittymä on vain 2 kilometrin päässä. Tampere...
Kysy hintaa! -
Tallenna200 m²Toimistot
Toisen kerroksen toimistotilaa Sammon Valtatien varrelta. Toimisto on siistissä kunnossa, tilajako on toteutettu omilla huoneillaan (ei avotilaa), hy...
9,00 €/m2/kk -
Tallenna255 m²Tuotantotilat
Tampereen Messukylästä vuokrattavissa entinen hiekkapuhaltamo lastausovella. Tilan läheisyydessä toimisto- ja sosiaalitilat. Alueella on vuokrattav...
Kysy hintaa! -
Tallenna150 m²Varastot
Tampereen Messukylästä vuokrattavissa toisen kerroksen toimistotila omalla sisäänkäynnillä ja wc:llä. Alueella on vuokrattavissa monenlaista ja eri...
Kysy hintaa! -
Tallenna1 964 m²Toimistot
Tampereen kehätien välittömässä läheisyydessä Messukylän teollisuusalueella tarjolla toimistotilaa, varasto- ja tuotantotilaa. Kiinteistölle pääsee hy...
Kysy hintaa!






































































