Toimistohuone Tuureporinkadulta, joka soveltuu esimerkiksi terapiakäyttöön. Huoneessa on äänieristysovet. Sisäänkäynnin yhteydessä on odotustila. Tila...
Uudet käyttö- ja sopimusehdot
Päivitämme käyttö- ja sopimusehtojamme. Uudet ehdot ovat voimassa 1.5.2025 alkaen. Tutustu ehtoihin
-
Tallenna16 m²Toimistot27,50 €/m2/kk
-
Tallenna617 m²Toimistot
Korkeatasoinen toimistotila 617 m2, 3. krs. Vuokralaisen käytössä kuntosali ja lounasravintola aloittaa 2024 alussa. Runsaasti pysäköintipaikkoja. ...
Kysy hintaa! -
Tallenna11 000 m²Varastot
Vuokrataan 11 000m2 logistiikka- ja varastotilaa Vantaan Hakkilassa, valmistuu kesällä 2024. Logicor Park Hakkila on moderni ja joustava logistiikka- ...
Kysy hintaa! -
Tallenna22 000 m²Varastot
Vuokrataan 22000m2 jakelukeskus Tervahaudankatu 7 Keravalla. Voidaan jakaa 14000m2 ja 8000m2 tiloihin. Kohde sijaitsee 30 km Helsingistä pohjoiseen, j...
Kysy hintaa! -
Tallenna30 m²Varastot
Vuokrataan 30m2 varastotilat Kaarinan Liittoisten kaupunginosassa, osoitteessa Pasmakatu 1, Kaarina. Lämmin tila kiinteistön kellarikerroksessa. ...
7,67 €/m2/kk -
Tallenna24 m²Varastot
Vuokrataan 24m2 varastotilat Kaarinan Liittoisten kaupunginosassa, osoitteessa Pasmakatu 1, Kaarina. Lämmin tila kiinteistön kellarikerroksessa. ...
7,92 €/m2/kk -
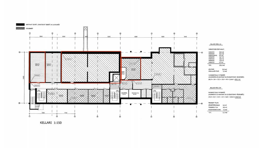
Tallenna104 m²Varastot
Vuokrataan 104m2 varastotilat Kaarinan Liittoisten kaupunginosassa, osoitteessa Pasmakatu 1, Kaarina. Lämmin väestönsuojatilat kiinteistön kellarike...
4,33 €/m2/kk -
Tallenna720 m²Liiketilat
Vuokrataan Kehä III välittömässä läheisyydessä, hyvällä näkyvyydellä erittäin hyvätasoista remontointua 720m2 hallitilaa Koskelon teollisuusalueella. ...
Kysy hintaa! -
Tallenna216 m²Toimistot
Toimistotilaa Turun Science Parkissa, josta loistavat yhteydet mm. Helsinkiin. Kiinteistösijaitsee Kupittaan juna-aseman vieressä. Samassa talossa on ...
Kysy hintaa! -
Tallenna60 m²Toimistot
Toimistotilaa lähellä Turun Kehätietä sijaitsevasta kolmikerroksisesta toimistorakennuksesta. Toimistotalosta on vuokrattavissa useita eri tilakokonai...
Kysy hintaa! -
Tallenna239 m²Toimistot
Atomitie 1 on toimitilakiinteistö loistavalla sijainnilla dynaamisella Valimon alueella. Sijainti aivan Kehä 1:n tuntumassa. Monipuoliset julkiset yht...
Kysy hintaa! -
Tallenna48 m²Toimistot
Atomitie 1 on toimitilakiinteistö loistavalla sijainnilla dynaamisella Valimon alueella. Sijainti aivan Kehä 1:n tuntumassa. Monipuoliset julkiset yht...
Kysy hintaa! -
Tallenna241 m²Toimistot
Gate8 Business Park, vuokrataan valoisaa toimitilaa suuremmankin yrityksen tarpeisiin. Tiloissa on avokonttoritilaa ja useampia erikokoisia työhuoneit...
Kysy hintaa! -
Tallenna223 m²Toimistot
Vuokrataan viidennen kerroksen 223m2 valoisa toimistotila. Tilassa on useita huoneita, tiimihuone sekä neuvottelutila. Gate8 Business Park tarjoaa mon...
Kysy hintaa! -
Tallenna179 m²Toimistot
Vuokrataan toisen kerroksen 179m2 valoisa toimistotila. Tilassa on viisi huonetta, tiimihuone sekä neuvottelutila. Gate8 Business Park tarjoaa monipuo...
Kysy hintaa! -
Tallenna316 m²Toimistot
Vuokrataan valoisaa ja avaraa yrityksen tarpeiden mukaan muokattavaa toimitilaa näkyvällä paikalla Pitäjänmäentien varrelta. Tilat sopivat viihtyisin...
Kysy hintaa! -
Tallenna693 m²Toimistot
Vuokrataan valoisa, muunneltava toimistotila viihtyisässä kiinteistössä. Vuokralaisten käytettävissä on naapurikiinteistön lounasravintola ja monipuol...
Kysy hintaa! -
Tallenna304 m²Toimistot
Vuokrattavana monikäyttöinen, siisti toimisto-varastotila kiinteistön pihatasossa. Tavarantoimitus onnistuu takapihan oven kautta. Lähialueella on mon...
Kysy hintaa! -
Tallenna177 m²Toimistot
Vuokrattavana 2.krs 177m2 toimistotilat, osoitteessa Postikatu 3, Turku. Toimisto liikenteellisesti hyvällä sijainnilla. Perus siisti toimisto jossa...
10,00 €/m2/kk -
Tallenna310 m²Liiketilat
Hyvää liiketilaa Tapiolassa huippupaikalla. Huoneistokeskuksen tila. Pääkerroksessa n. 240 m2 ja alakerroksessa n.70m2. Vuokra 5600€/kk + alv. si...
Kysy hintaa! -
Tallenna130 m²Varastot
Toimistotiloja vapaana isossa teollisuus-/liikekiinteistössä. Hyvä sijainti . Lähellä keskustaa ja palveluja .
Kysy hintaa! -
Tallenna3 000 m²Varastot
Limingantullissa edullissia erikokoisia lämpimiä varastotiloja vuokrattavana . Alkaen 350m2 - 3000 m2. Tiloja on mahdollisuus yhdistää . Tiloja on myö...
Kysy hintaa! -
Tallenna2 018 m²Varastot
Kylmiä varastotiloja Limingantullissa. Katettu, tilat ovat suljettuja ja niihin johtaa nosto-ovet. Tiloja on mahdollista yhdistää lämpimien tuotanto/v...
Kysy hintaa! -
Tallenna174 m²Toimistot
Vuokrattavana tehokas ja moderni 2.kerroksen toimisto ( 174 m2). Tilassa sekä avotilaa että huoneita. Derby Business Park tarjoaa asiakkailleen kaikki...
Kysy hintaa! -
Tallenna458 m²Tuotantotilat
Vuokrataan 458m2 monitoimitila, jossa on toimistoa sekö varasto-/tuotantotilaa. Varastoon on lastauslaituri ja nosto-ovi. Maksuttomia pysäköintip...
Kysy hintaa!













































































































