Vuokrataan siisti neljännen kerroksen 249m2 toimistotila, josta löytyy sekä toimisto- ja neuvotteluhuoneita että avotilaa. Malmille on erinomaiset kul...
Uudet käyttö- ja sopimusehdot
Päivitämme käyttö- ja sopimusehtojamme. Uudet ehdot ovat voimassa 1.5.2025 alkaen. Tutustu ehtoihin
-
Tallenna249 m²ToimistotKysy hintaa!
-
Tallenna3 500 m²Tuotantotilat
Uudet, täysin käyttäjän toiveiden mukaan räätälöitävissä olevat toimitilat loistavalta sijainnilta Kehätien varrelta. Usein markkinoilta ei löydy tar...
Kysy hintaa! -
Tallenna22 m²Toimistot
Konalassa 22 m2 rauhallisia toimistohuoneita edullisesti. 2. kerros. Näkymät Vihdintien suuntaan. Parkkitilaa on. Kysy mika.tilli@rhg.fi, 040 7...
Kysy hintaa! -
Tallenna444 m²Toimistot
Vuokrattavana 4.kerroksen toimistotila ( 444 m2) Ruoholahden ytimestä. Ruoholahden Poiju tarjoa vuokralaisille ja heidän vierailleen kaikki tarvittav...
Kysy hintaa! -
Tallenna4 921 m²Toimistot
Vallilassa Konepajankuja 6:ssa on vapautumassa ainutlaatuinen toimistotilakokonaisuus. Kiinteistö sijaitsee Vallilan Konepajan alueella ja on teo...
Kysy hintaa! -
Tallenna313 m²Toimistot
Toimistotila Turun edustavassa vuonna 1920-luvulla rakennetussa Affärcentrumissa. Tilasta on näkymät uudistuneelle kauppatorille. Tila sijatisee rake...
Kysy hintaa! -
Tallenna730 m²Liiketilat
Vuokrattavana 730m2 liiketila Turun ydinkeskustassa, Kop-Kolmion talossa, osoitteessa Aurakatu 8, Turku. Tiloissa toiminut aikaisemmin Fafa`s ravinto...
Kysy hintaa! -
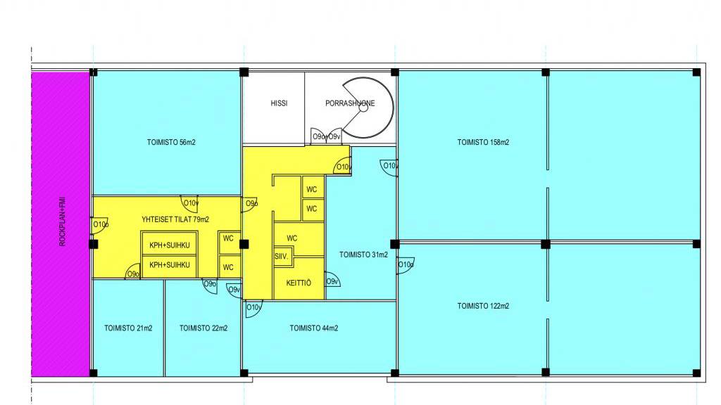
Tallenna56 m²Toimistot
Vuokrattavana 4.krs 56 m2 avotila, business hotellin tyylisestä huoneistosta, osoitteessa Pitkämäenkatu 4, Turku. Tilakoot 21-158m2. Yhteiset neuvo...
13,66 €/m2/kk -
Tallenna216 m²Varastot
Vuokrattavana maaliskuussa 2023 valmistunut monikäyttöinen halli. Kohteessa on maalämpö, A-energialuokka, öljyn erotuskaivo, aurinkopaneelit, sähkökä...
Kysy hintaa! -
Tallenna736 m²Toimistot
Vuokrattavana upea ja edustava toimisto ( 736 m2) Merikorttelista. Kahdessa kerroksessa sijaitsevat toimitilat on yhdistetty sisäportaikolla. Uniikki ...
Kysy hintaa! -
Tallenna16 m²Toimistot
Vuokrattavana kalustettu toimistohuone ( 16 m2) POOL Work- alueelta. Vuokra 1250€/kk + alv. POOLin studiovuokraan sisältyvät valmiit verkkoyhteydet, k...
Kysy hintaa! -
Tallenna145 m²Toimistot
Merikorttelista vuokrattavana tehokas toimisto ( 145 m2). Tila sijaitsee 2.kerroksessa. Avotilan lisäksi tilassa on yksi neuvottelhuone. Kohteesta l...
Kysy hintaa! -
Tallenna191 m²Toimistot
Merikorttelista vuokrattavana toimisto ( 191 m2). Tila sijaitsee 5.kerroksessa. Kohteesta löytyy vuokrattavia neuvottelutiloja, parkkihalli, lounas...
Kysy hintaa! -
Tallenna154 m²Toimistot
Merikorttelista vuokrattavana toimisto ( 154 m2). Tila sijaitsee 5.kerroksessa. Kohteesta löytyy vuokrattavia neuvottelutiloja, parkkihalli, lounas...
Kysy hintaa! -
Tallenna1 250 m²Tuotantotilat
Nykyaikaista, vuonna 2005 rakennettua raskaankaluston korjaamotilaa! Tiloihin johtaa 8 taitto-ovea, joista osa on läpiajettavia. Läpiajettavien tiloje...
Kysy hintaa! -
Tallenna47 m²Toimistot
Vuokrattavana toimistohuone ( 47 m2) Lindström talon Office Centeristä. Yhteiskäyttöiset keittiö- ja sosiaalitilat. Lindström talo tarjoa vuokralais...
Kysy hintaa! -
Tallenna38 m²Toimistot
Vuokrattavana industrial tyylinen toimistohuone ( 38 m2) Lindström talon Office Centeristä. Yhteiskäyttöiset keittiö- ja sosiaalitilat. Lindström ta...
Kysy hintaa! -
Tallenna276 m²Toimistot
Vapautumassa Avia Logistics Center, vuokrattavana siisti 2. kerroksen toimistotila. Jyvityksineen 275,5m2. Tila on laajennettavissa n. 230 m2 osu...
Kysy hintaa! -
Tallenna221 m²Liiketilat
Tammistossa mainiolla sijainnilla 221m2 liiketilaa katutasossa. Ei sovellu ravintolakäyttöön Erinomaiset pysäköintitilat ja helppo saavutettavuu...
Kysy hintaa! -
Tallenna1 074 m²Varastot
Vuokrattavana 1 074m2 logistiikka / varastotila, osoitteessa Vappulantie 475, Lohja. Sijainti liikenteellisesti loistavalla paikalla Lohjan Tynninha...
6,00 €/m2/kk -
Tallenna201 m²Toimistot
Vuokrattavana 4. kerroksessa industrialhenkinen, moderni toimistotila. Tila koostuu avotilasta ja kahdesta neukkariksi soveltuvasta huoneesta. Omat ke...
Kysy hintaa! -
Tallenna233 m²Toimistot
Puutarhakatu 1 on 6-kerroksinen toimistokiinteistö Turun ydinkeskustassa, yhden korttelin matkan etäisyydellä kauppatorista. Nykyisellään kohteen tila...
Kysy hintaa! -
Tallenna1 347 m²Toimistot
Puutarhakatu 1 on 6-kerroksinen toimistokiinteistö Turun ydinkeskustassa, yhden korttelin matkan etäisyydellä kauppatorista. Nykyisellään kohteen tila...
Kysy hintaa! -
Tallenna920 m²Toimistot
Puutarhakatu 1 on 6-kerroksinen toimistokiinteistö Turun ydinkeskustassa, yhden korttelin matkan etäisyydellä kauppatorista. Nykyisellään kohteen tila...
Kysy hintaa! -
Tallenna421 m²Toimistot
Puutarhakatu 1 on 6-kerroksinen toimistokiinteistö Turun ydinkeskustassa, yhden korttelin matkan etäisyydellä kauppatorista. Nykyisellään kohteen tila...
Kysy hintaa!


















































































