Uutta vuoden 2025 keväällä valmistunutta varasto- ja työtilaa Naantalin Luolalan yritysalueella. Vapaana vielä seitsemän 71 m² hallia. Tilaan johta...
Uudet käyttö- ja sopimusehdot
Päivitämme käyttö- ja sopimusehtojamme. Uudet ehdot ovat voimassa 1.5.2025 alkaen. Tutustu ehtoihin
-
Tallenna142 m²Tuotantotilat9,51 €/m2/kk
-
Tallenna71 m²Tuotantotilat
Uutta vuoden 2025 keväällä valmistunutta varasto- ja työtilaa Naantalin Luolalan yritysalueella. Vapaana vielä seitsemän 71 m² hallia. Tilaan johta...
9,51 €/m2/kk -
Tallenna142 m²Toimistot
Vuokrataan kompakti toimistotila Sörnäisten Hattutehtaasta! Kyseinen 142 m2 tila toimii mainiosti niin toimistona kuin vaikkapa showroomina. Tilaan on...
Kysy hintaa! -
Tallenna248 m²Toimistot
Vuokrataan 248 m2 persoonallinen toimistotila Hattutehtaan 5. kerroksessa. Poikkeuksellinen huonekorkeus ja lukuisat ikkunarivistöt saavat tilan kylpe...
Kysy hintaa! -
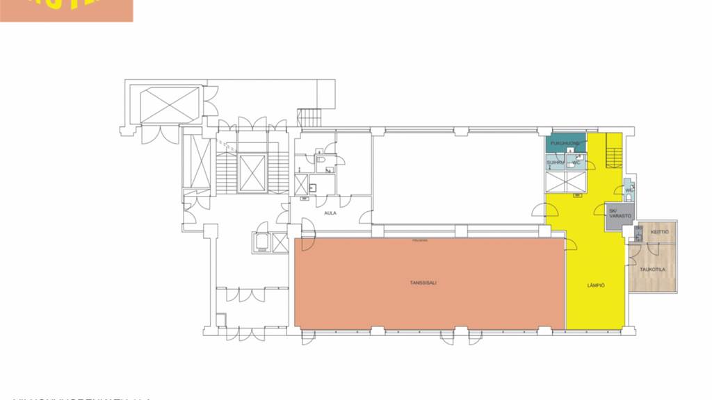
Tallenna250 m²Liiketilat
Vuokrataan 250 m2 tanssisali pukuhuoneineen Hattutehtaan 1. kerroksessa. Tila on myös yhdistettävissä suuremmaksi kokonaisuudeksi viereisen tanssisali...
Kysy hintaa! -
Tallenna158 m²Toimistot
Vuokrataan valoisa ja avara pieni 158m2 toimisto-/studiotila, jossa yhdistyy historiallisen tehdasrakennuksen rouheus ja moderni, talotekniikaltaan en...
Kysy hintaa! -
Tallenna130 m²Toimistot
Vuokrataan persoonallinen 130 m2 toimistotila Hattutehtaan 4. kerroksessa. Selkeä ja toimiva pohjaratkaisu, jossa avotilaa työpisteille sekä pari vetä...
Kysy hintaa! -
Tallenna67 m²Toimistot
Haagassa erittäin siisti toimisto 67 m2. Huone 52 m2, erillinen neuvottelutila 15 m2, pieni keittiö ja oma wc. Rauhallinen käytävä pienessä yhteisössä...
18,00 €/m2/kk -
Tallenna246 m²Toimistot
Vanhassa kivääritehtaassa joka on saneerattu ja modernisoitu nykypäivän tarpeisiin vastaavaksi on vapaana useampia erikokoisia ja muunneltavia toimist...
Kysy hintaa! -
Tallenna165 m²Toimistot
Vanhassa kivääritehtaassa joka on saneerattu ja modernisoitu nykypäivän tarpeisiin vastaavaksi on vapaana useampia erikokoisia ja muunneltavia toimist...
Kysy hintaa! -
Tallenna720 m²Toimistot
Vanhassa kivääritehtaassa joka on saneerattu ja modernisoitu nykypäivän tarpeisiin vastaavaksi on vapaana useampia erikokoisia ja muunneltavia toimist...
Kysy hintaa! -
Tallenna292 m²Toimistot
Vanhassa kivääritehtaassa joka on saneerattu ja modernisoitu nykypäivän tarpeisiin vastaavaksi on vapaana useampia erikokoisia ja muunneltavia toimist...
Kysy hintaa! -
Tallenna227 m²Toimistot
Vanhassa kivääritehtaassa joka on saneerattu ja modernisoitu nykypäivän tarpeisiin vastaavaksi on vapaana useampia erikokoisia ja muunneltavia toimist...
Kysy hintaa! -
Tallenna43 m²Toimistot
Toimistohotelli Suorakulmasta vuokrattavana avotoimisto ( 43 m2). Kohde sijatsee Askonalueella Matkakeskuksen lähellä. Uniikki ja nopeasti kehittyvä A...
Kysy hintaa! -
Tallenna234 m²Toimistot
Vuokrataan neljännen kerroksen 234m2 toimisto, jossa yhdistyvät huoneet, avotila ja loistava tunnelma – täydellinen yhdistelmä keskittymiseen ja yhtei...
Kysy hintaa! -
Tallenna627 m²Toimistot
Modernia työtilaa ja ripaus luksusta – Höyläämätie 14, Pitäjänmäki! Tervetuloa tutustumaan 627 m²:n toimistotilaan, joka sijaitsee Pitäjänmäen yrit...
Kysy hintaa! -
Tallenna59 m²Toimistot
Vuokrataan sisääntulokerroksen valoisa 59m2 toimistohuone, jossa on paljon ikkunapintaa sekä vaalea vinyylilattia. Tilassa ei ole omaa keittiötä/vesip...
Kysy hintaa! -
Tallenna360 m²Toimistot
Vuokrataan 4. kerroksen valoisa 360m2 toimistotila, joka on muunneltavissa tarpeiden mukaan. Tila koostuu useasta toimistohuoneesta, keittiöstä ja wc-...
Kysy hintaa! -
Tallenna230 m²Toimistot
Vuokrattavan uniikki toimistotila Aurajoen rannalta Herrainkulmana tunnetulta kiinteistöltä. Tonttien 1600-luvulta alkava historia on kiehtova osa Tur...
19,57 €/m2/kk -
Tallenna184 m²Toimistot
Edullinen pintaremonttia vaativa 184m2 toimitila viidennestä kerroksesta. Tila on muunneltavissa asiakkaan tarpeiden mukaan. Kiinteistö sijaitsee suos...
Kysy hintaa! -
Tallenna140 m²Toimistot
Edullinen viidennen kerroksen pintaremonttia vaativa 139,5m3 toimisto. Tila on muunneltavissa asiakkaan tarpeiden mukaan. Kiinteistö sijaitsee suositu...
Kysy hintaa! -
Tallenna116 m²Toimistot
Neljännen kerroksen edullinen pintaremonttia vaativa 115,5m2 toimisto. Tila on muunneltavissa asiakkaan tarpeiden mukaan. Kiinteistö sijaitsee suositu...
Kysy hintaa! -
Tallenna602 m²Toimistot
Edullinen tilava toisen kerroksen 602m2 huonetoimistotila jäähdytyksellä. Huoneistossa on hyvät sosiaalitilat sekä neuvottelu- ja arkistointitiloja. T...
Kysy hintaa! -
Tallenna385 m²Toimistot
Espoon Sinimäessä Turunväylän lähistölla on vuokrattavissa edullista 385m2 huonetoimistotilaa. Huoneistossa on oma neuvottelutila, sosiaali- ja taukot...
Kysy hintaa! -
Tallenna216 m²Toimistot
Espoon Sinimäessä on vuokrattavissa edullista siistiä 216m2 huonetoimistotilaa. Huoneistossa on oma neuvottelutila ja minikeittiö. Tila on muokattavi...
Kysy hintaa!


































































































































































