Uudet käyttö- ja sopimusehdot
Päivitämme käyttö- ja sopimusehtojamme. Uudet ehdot ovat voimassa 1.5.2025 alkaen. Tutustu ehtoihin
Äyritie 22 Veromies, Vantaa
01510Tyyppi
Toimisto
Koko
104 m²
Kerros
4
Vuokra
Kysy hintaa!
Saatavilla
Heti vapaa
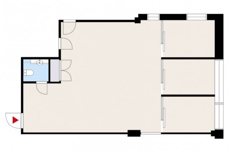
Vuokrattavana tyylikäs ja moderni 4. kerroksen toimisto Plaza Business Parkin Tuike-talosta. Tila koostuu avotilasta, kolmesta työhuoneesta, omasta keittiöstä ja wc:stä. Plaza Business Park sijaitsee erinomaisten liikenneyhteyksien varrella Kehä III:sen tuntumassa, kauppakeskus Jumboa vastapäätä ja lähellä Helsinki-Vantaan lentoasemaa.
Pysäköintioikeuksia on vuokrattavissa Plaza Business Parkin pysäköintitalosta sekä talojen kellaritiloista, ja yrityspuiston vieraille on varattu pysäköintialue Plazan edustalla.
Ota yhteyttä ja tule tutustumaan!
www.blanctoimitilat.fi
Joonas Nuutinen, toimitila-asiantuntija
+358 40 754 5408
joonas.nuutinen@blanckiinteisto.com
HUOM! Tilan hakijalle palvelumme on maksuton!
Perustiedot
Tyyppi:
Toimisto
Sopimustyyppi:
Vuokrataan
Osoite:
Äyritie 22, 01510 Vantaa
Kaupunginosa:
Veromies
Lisätiedot
Saatavilla:
Heti vapaa
Kerros:
4
Kartta
Tietoa ilmoittajasta
Blanc Toimitilat
Näytä kaikki saman ilmoittajan kohteetHenry Fordin katu 5
00150
Helsinki




















