Uudet käyttö- ja sopimusehdot
Päivitämme käyttö- ja sopimusehtojamme. Uudet ehdot ovat voimassa 1.5.2025 alkaen. Tutustu ehtoihin
Koskelontie 13 Koskelo, Espoo
02920Tyyppi
Varastotila
Koko
4 501 m²
Kerros
2
Vuokra
Kysy hintaa!
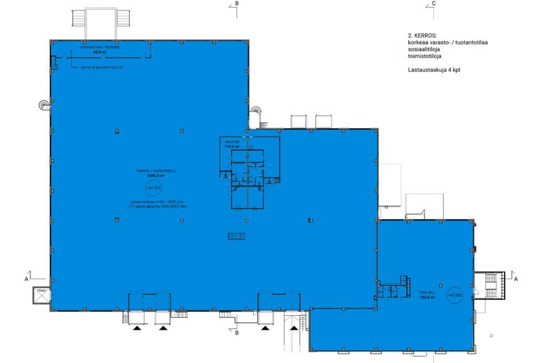
Vuokrataan varastotilaa, jossa lastausramppi nosto-ovella, lastaustasku/nosto-ovia 3, lattiakantavuus 2 000 kg/m2. Varasto 3 747,5m2 ja toimisto 753,5m2 sekä sosiaalitilat. Ohessa havainnollistavia kuvia.
Koskelo Trade Park on noin 26 000 m2 toimitilakokonaisuus, jonka tilat on suunniteltu joustamaan asiakkaan tarpeiden mukaan. Kaava mahdollistaa erilaisten toimintojen sijoittumisen ja yhdistämisen tontilla. Kokonaisuus käsittää varasto-, toimisto-, myymälä-ja näyttelytilaa. Toimitiloja pihatasossa nosto-ovin tai lastauslaituritasolla. Varaston korkeus on noin 8 metriä.
Lisätietoja 020 7290 710 ja lisää kohteita premises.fi
Kohteella ei ole lain edellyttämää energiatodistusta tai energialuokka ei tiedossa.
Perustiedot
Tyyppi:
Varastotila
Sopimustyyppi:
Vuokrataan
Osoite:
Koskelontie 13, 02920 Espoo
Kaupunginosa:
Koskelo
Tilan koko
Kokonaispinta-ala:
4501 m²
Lisätiedot
Kerros:
2
Ympäristö
Liikenneyhteydet:
Sijainti Espoossa Kehä III:n varrella, Turun moottoritien ja Tampereen moottoritien välissä. Erinomaiset liittymät Itä-ja länsipuolella Koskeloa.
Kartta
Tietoa ilmoittajasta

CRE PREMISES
Näytä kaikki saman ilmoittajan kohteetVantaankoskentie 14
01670
VANTAA
























