Uudet käyttö- ja sopimusehdot
Päivitämme käyttö- ja sopimusehtojamme. Uudet ehdot ovat voimassa 1.5.2025 alkaen. Tutustu ehtoihin
Bulevardi 32 Kamppi, Helsinki
00120Tyyppi
Varastotila
Koko
115 m²
Kerros
1
Vuokra
Kysy hintaa!
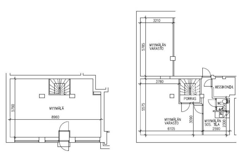
Bulevardi 32 - Liiketila 50 m² + varasto 64,5 m²
Edustava liiketila Albertinkadun varrella, jossa suuret ikkunat tuovat runsaasti luonnonvaloa ja näkyvyyttä kadulle. Kokonaispinta-ala on 114,5 m², josta katutasossa on noin 50 m² avaraa liiketilaa ja kellarikerroksessa noin 64,5 m² varasto- ja työtilaa sekä sosiaalitilat.
Sisäänkäynti sijaitsee Albertinkadun puolella, ja erinomaiset kulkuyhteydet takaavat helpon saavutettavuuden.
Tila ei sovellu ravintola-, kahvila- tai parturi-kampaamotoimintaan, mutta tarjoaa loistavat mahdollisuudet monenlaiseen liiketoimintaan.
Bulevardi 32 - Historiallista arvokkuutta parhaalla sijainnilla
Sijainti
Bulevardi 32 sijaitsee Helsingin kantakaupungin arvostetulla alueella, jossa yhdistyvät keskeinen sijainti ja erinomainen saavutettavuus. Vuonna 1937 rakennettu kohde huokuu historiaa, mutta tarjoaa nykyaikaiset puitteet liiketoiminnalle.
Palvelut ja ympäristö
Läheltä löytyvät monipuoliset palvelut kävelyetäisyydellä: kulttuurielämykset, laadukkaat ravintolat ja kahvilat tuovat alueelle elämää ja houkuttelevuutta. Lisäksi Hietalahden ranta ja Kaivopuisto tarjoavat upeat virkistysmahdollisuudet aivan kulman takana, mikä tekee sijainnista ainutlaatuisen.
Ota yhteyttä
Kiinnostuitko? Ota yhteyttä ja tule tutustumaan tiloihin!
Toimitilavälityspalvelumme on tilanhakijalle maksuton.
Perustiedot
Tyyppi:
Varastotila, Liiketila
Sopimustyyppi:
Vuokrataan
Osoite:
Bulevardi 32, 00120 Helsinki
Kaupunginosa:
Kamppi
Tilan koko
Kokonaispinta-ala:
115 m²
Tilan jakautuminen tilatyyppien mukaan
| Tilatyypit | Min m² | Max m² | €/m²/kk |
|---|---|---|---|
| Varastotila | 65 | ||
| Liiketila | 50 |
Lisätiedot
Kerros:
1
Kartta
Tietoa ilmoittajasta
LogisTila Oy LKV
Näytä kaikki saman ilmoittajan kohteetKauppakatu 14
33210
Tampere
















