Uudet käyttö- ja sopimusehdot
Päivitämme käyttö- ja sopimusehtojamme. Uudet ehdot ovat voimassa 1.5.2025 alkaen. Tutustu ehtoihin
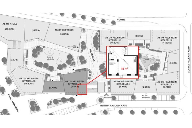
Bertha Pauligin Katu 5 Vuosaari, Helsinki
00990Tyyppi
Liiketila
Koko
81 m²
Vuokra
Kysy hintaa!
Vuokrataan Helsingin Vuosaaresta katutason 81 m² liiketila, LH 2.
Kohde on juuri valmistunut! Sitadelli 6 on 6. kerroksinen asuinkerrostalo 16. kerroksisen tornitalon viereltä alueella, mikä kehittyy ja kasvaa koko ajan. Tule varaamaan toimitilasi kasvun keskeltä.
Kysy rohkeasti lisätietoja ja sovitaan käynti kohteella jo tänään!
Perustiedot
Tyyppi:
Liiketila
Sopimustyyppi:
Vuokrataan
Osoite:
Bertha Pauligin Katu 5, 00990 Helsinki
Kaupunginosa:
Vuosaari
Tilan koko
Kokonaispinta-ala:
81 m²
Rakennustiedot
Kiinteistön nimi:
As Oy Helsingin Sitadelli 6
Rakennusvuosi:
2025
Kartta
Tietoa ilmoittajasta
Hausala Oy
Näytä kaikki saman ilmoittajan kohteetErkkilänkatu 11
33100
TAMPERE


















