Uudet käyttö- ja sopimusehdot
Päivitämme käyttö- ja sopimusehtojamme. Uudet ehdot ovat voimassa 1.5.2025 alkaen. Tutustu ehtoihin
Eerikinkatu 4 Keskusta, Helsinki
00100Tyyppi
Toimisto
Koko
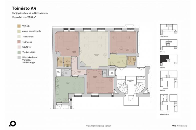
118 m²
Kerros
3 / 5
Vuokra
Kysy hintaa!
Historiallista arvokkuutta ja modernia mukavuutta – täysin uudistettu 118 m² toimistotila Höijerin suunnittelemassa arvokiinteistössä Kampissa
Vuonna 1896 valmistunut arkkitehti Theodor Höijerin suunnittelema asuin- ja liikerakennus on saanut uuden elämän – rakennus on peruskorjattu vuonna 2025 vanhaa kunnioittaen ja arvokas tunnelma säilyttäen.
Vuokrattavana on täysin uudistettu toimistotila, jossa historia ja nykyaikainen työympäristö kohtaavat täydellisessä harmoniassa.
Tilassa on avotilaa, 3 reilun kokoista työhuonetta, taukotila keittiöineen sekä kaksi wc:tä. Kaikki pinnat, tekniikka ja varustelu on uusittu – kuitenkin rakennuksen alkuperäistä henkeä vaalien.
Pihapiiriä täydentää vuonna 1875 valmistunut ja vuonna 1883 laajennettu viehättävä puinen asuinrakennus, joka luo ainutlaatuisen historiallisen miljöön keskelle kaupunkia.
Tämä tila sopii yritykselle, joka arvostaa laadukasta, persoonallista ja tarinallista työympäristöä.
Ilmoituksen sisäkuvat ovat kuvia kiinteistön eri tiloista.
Perustiedot
Tyyppi:
Toimisto
Sopimustyyppi:
Vuokrataan
Osoite:
Eerikinkatu 4, 00100 Helsinki
Kaupunginosa:
Keskusta
Tilan koko
Kokonaispinta-ala:
118 m²
Rakennustiedot
Rakennusvuosi:
1896
Energialuokka:
Ei lain edellyttämää energiatodistusta
Lisätiedot
Kerros:
3 / 5
Kartta
Tietoa ilmoittajasta
ScanReal Oy LKV
Näytä kaikki saman ilmoittajan kohteetOpus Business Park, Hitsaajankatu 24
00810
Helsinki


















































