Uudet käyttö- ja sopimusehdot
Päivitämme käyttö- ja sopimusehtojamme. Uudet ehdot ovat voimassa 1.5.2025 alkaen. Tutustu ehtoihin
Strömbergintie 1 Pitäjänmäki, Helsinki
00380Tyyppi
Toimisto
Koko
115 m²
Kerros
7
Vuokra
Kysy hintaa!
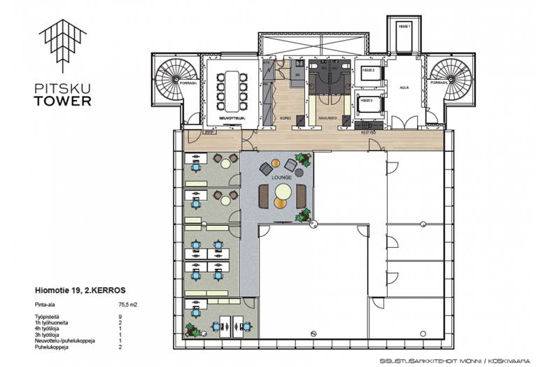
Vuokrattavana modernia ja näyttävää toimistotilaa Pitäjänmäki Towerista. Ohessa havainnollistavia kuvia kiinteistöstä.
Kiinteistössä on aulapalvelu ja vuokralaisilla on mahdollisuus vuokrata neuvottelutiloja sekä 17. krs. sauna-, kokous ja edustustiloja. Lisäksi vuokrattavana autopaikkoja autohallissa ja pihalla.
Lisätietoja numerosta 020 7290 710. Lisää kohteita osoitteessa www.premises.fi.
Energialuokka E
Perustiedot
Tyyppi:
Toimisto
Sopimustyyppi:
Vuokrataan
Osoite:
Strömbergintie 1, 00380 Helsinki
Kaupunginosa:
Pitäjänmäki
Tilan koko
Kokonaispinta-ala:
115 m²
Lisätiedot
Kerros:
7
Ympäristö
Liikenneyhteydet:
Kävelymatkan päässä Pitäjämäen juna-asemasta sekä bussipysäkeistä.
Kartta
Tietoa ilmoittajasta

CRE PREMISES
Näytä kaikki saman ilmoittajan kohteetVantaankoskentie 14
01670
VANTAA
























