Uudet käyttö- ja sopimusehdot
Päivitämme käyttö- ja sopimusehtojamme. Uudet ehdot ovat voimassa 1.5.2025 alkaen. Tutustu ehtoihin
Katsastusmiehenkuja 1 Tiiriö, Pullerinmäki, Hämeenlinna
13130Tyyppi
Liiketila
Koko
508 m²
Vuokra
Kysy hintaa!
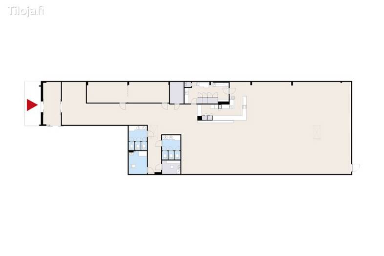
Tiiriön alueelta vuokrataan 508 m² liiketila, joka tarjoaa monipuoliset mahdollisuudet eri toimialoille. Tila on mahdollista yhdistää viereisiin liiketiloihin (165 m² + 261 m²), jolloin kokonaisuus kasvaa jopa 935 m²:iin – joustava ratkaisu isommankin yrityksen tarpeisiin.
Naapurustosta löytyvät tunnetut toimijat, kuten Kinex sekä syksyllä ovensa avaava GOGO Express -kuntosali, mikä takaa alueelle hyvän asiakasvirran. Tilat soveltuvat erinomaisesti liiketilaksi sekä varasto- tai pienteollisuuskäyttöön.
Loistava sijainti ja muunneltavat tilat tekevät tästä houkuttelevan vaihtoehdon yritykselle, joka arvostaa näkyvyyttä ja saavutettavuutta.
Vuokraan lisätään alv + kulut.
Ota yhteyttä ja kysy lisää!
www.blanctoimitilat.fi
Masa Hakala
masa.hakala@blanckiinteisto.com
+358 40 964 2482
Perustiedot
Tyyppi:
Liiketila
Sopimustyyppi:
Vuokrataan
Osoite:
Katsastusmiehenkuja 1, 13130 Hämeenlinna
Kaupunginosa:
Tiiriö, Pullerinmäki
Kartta
Tietoa ilmoittajasta
Blanc Toimitilat
Näytä kaikki saman ilmoittajan kohteetHenry Fordin katu 5
00150
Helsinki
















