Uudet käyttö- ja sopimusehdot
Päivitämme käyttö- ja sopimusehtojamme. Uudet ehdot ovat voimassa 1.5.2025 alkaen. Tutustu ehtoihin
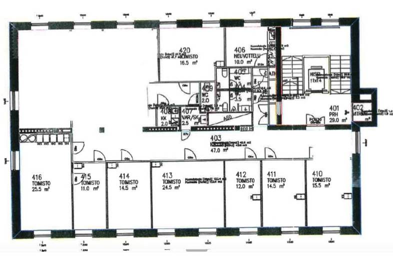
Satakunnankatu 13 B Keskusta, Tampere
33100Tyyppi
Toimisto
Koko
293 m²
Vuokra
22 €/m²/kk
Saatavilla
Heti
Perustiedot
Rakennustiedot
Lisätiedot
Dokumentit
Kartta
Tietoa ilmoittajasta

OP Koti Pirkanmaa Oy LKV
Näytä kaikki saman ilmoittajan kohteetHämeenkatu 6 A
33100
Tampere
Hyvä asiakas. OP Koti Pirkanmaa Oy LKV:n toimitilavälityksen erinomainen paikallistuntemus sekä ammattitaitoinen ja luotettava toimintatapa tunnetaan Pirkanmaan toimialueellamme. Olet sitten myymässä, ostamassa tai vuokraamassa, ota yhteyttä niin kerromme lisää palveluistamme. Väinö Kähkönen 050 3896811, vaino.kahkonen@op.fi ja Isto Matalamäki, 0503896804, isto.matalamaki@op.fi




















































































































































