Uudet käyttö- ja sopimusehdot
Päivitämme käyttö- ja sopimusehtojamme. Uudet ehdot ovat voimassa 1.5.2025 alkaen. Tutustu ehtoihin
Otavankatu 23 Mikkeli
50130Tyyppi
Liiketila
Koko
3 850 m²
Myyntihinta
Kysy hintaa!
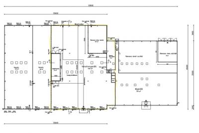
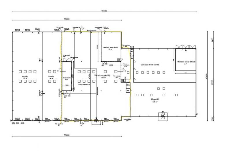
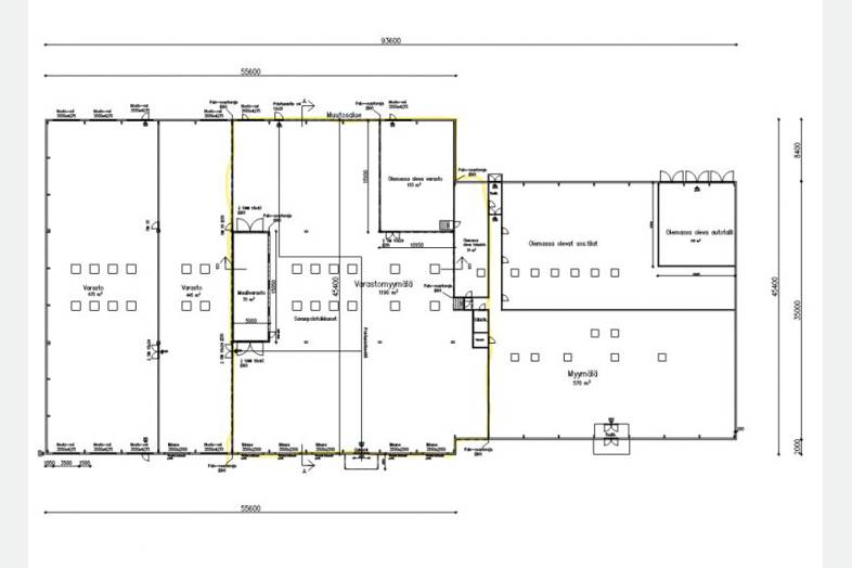
Myynnissä liiketila omalla tontilla, joka tarjoaa monipuoliset mahdollisuudet yritystoimintaan.
Kiinteistön kokonaispinta-ala on 3850 m². Tila soveltuu erinomaisesti kaupalliseen käyttöön tai varastointiin.
+ Laaja ja helposti muokattava tila
+ Sopii liiketilaksi, varastointiin tai muuhun kaupalliseen toimintaan
+ Omalla tontilla, joka mahdollistaa joustavat käyttömahdollisuudet
+ Hyvät pysäköintimahdollisuudet
Lisätietoja kysymällä lisää!
Perustiedot
Tyyppi:
Liiketila
Sopimustyyppi:
Myydään
Osoite:
Otavankatu 23, 50130 Mikkeli
Tilan koko
Kokonaispinta-ala:
3850 m²
Dokumentit
Kartta
Ota yhteyttä
JK
Joakim Kukkonen
Osakas, Toimitilavälittäjä
Näytä puhelinnumero
SP
Seppo Pakarinen
Osakas, Kiinteistönvälittäjä. LKV, YKV, AKA
Näytä puhelinnumero
Tietoa ilmoittajasta
Arvo Premises Oy
Näytä kaikki saman ilmoittajan kohteetItälahdenkatu 2 a 20
00210
Helsinki














