Uudet käyttö- ja sopimusehdot
Päivitämme käyttö- ja sopimusehtojamme. Uudet ehdot ovat voimassa 1.5.2025 alkaen. Tutustu ehtoihin
Aleksinkatu 2 Forssa
30100Tyyppi
Liiketila
Koko
1 486 m²
Myyntihinta
Kysy hintaa!
Myynnissä liikekiinteistö sijoittajalle tai käyttäjälle
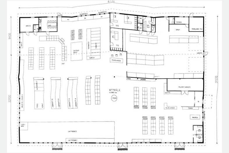
Rakennus on valmistunut vuonna 1986, ja sen kerrosala on 1 486 kem². Tontilla on lisäksi 1 205 kem² vapaata rakennusoikeutta, joka mahdollistaa laajennukset tai lisärakentamisen tulevaisuudessa. Tämä kohde tarjoaa joustavat mahdollisuudet niin liiketoiminnan kehittämiseen kuin kiinteistösijoittamiseen.
Keskeiset tiedot:
+ Tilava ja muokattava kokonaisuus
+ Vapaata rakennusoikeutta laajennuksiin tai lisärakentamiseen
+ Hyvä saavutettavuus ja pysäköintimahdollisuudet
+ Soveltuu liiketilaksi, varastointiin tai muuhun kaupalliseen käyttöön
+ Lämmitys: Kaukolämpö ja kulutus n. 100 000kwh / vuodessa
Ota yhteyttä
Perustiedot
Tyyppi:
Liiketila
Sopimustyyppi:
Myydään
Osoite:
Aleksinkatu 2, 30100 Forssa
Tilan koko
Kokonaispinta-ala:
1486 m²
Kartta
Ota yhteyttä
JK
Joakim Kukkonen
Osakas, Toimitilavälittäjä
Näytä puhelinnumero
SP
Seppo Pakarinen
Osakas, Kiinteistönvälittäjä. LKV, YKV, AKA
Näytä puhelinnumero
Tietoa ilmoittajasta
Arvo Premises Oy
Näytä kaikki saman ilmoittajan kohteetItälahdenkatu 2 a 20
00210
Helsinki


























