Uudet käyttö- ja sopimusehdot
Päivitämme käyttö- ja sopimusehtojamme. Uudet ehdot ovat voimassa 1.5.2025 alkaen. Tutustu ehtoihin
Itälahdenkatu 23 Lauttasaari, Helsinki
00210Tyyppi
Varastotila
Koko
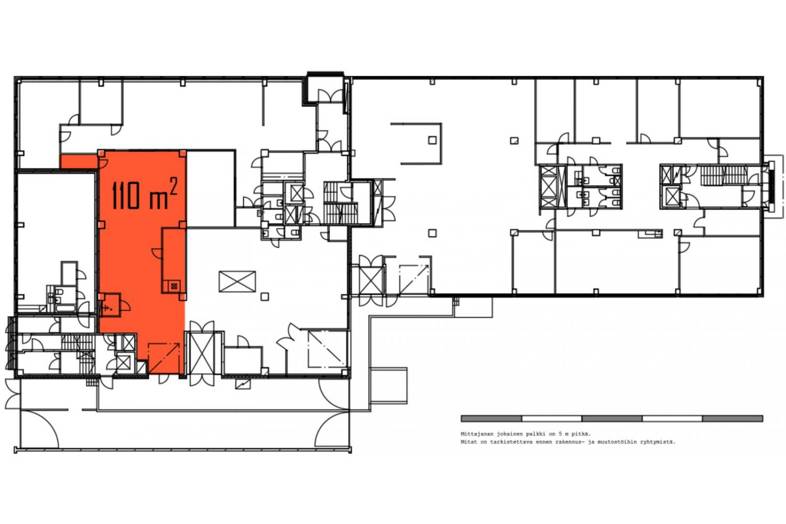
110 m²
Vuokra
Kysy hintaa!
Vuokrataan Helsingin Lauttasaaresta ensimmäisen kerroksen 110 m² Varastotila.
Ison tilan lisäksi kaksi erillistä pientä varastohuonetta. Suihkuhuone. Oma sisäänkäynti lastauslaiturilta (nosto-ovi n. 2,6 m * 2,3 m). Sisään voi kulkea myös A-rapun kautta Itälahdenkadun puolelta.
Lähistöllä on useita lounasravintoloita. Kohteessa on omia parkkipaikkoja.
Kysy rohkeasti lisätietoja ja sovitaan käynti kohteella jo tänään!
Perustiedot
Tyyppi:
Varastotila
Sopimustyyppi:
Vuokrataan
Osoite:
Itälahdenkatu 23, 00210 Helsinki
Kaupunginosa:
Lauttasaari
Tilan koko
Kokonaispinta-ala:
110 m²
Rakennustiedot
Kiinteistön nimi:
Itälahdenkatu 23
Kartta
Tietoa ilmoittajasta
Hausala Oy
Näytä kaikki saman ilmoittajan kohteetErkkilänkatu 11
33100
TAMPERE










