Uudet käyttö- ja sopimusehdot
Päivitämme käyttö- ja sopimusehtojamme. Uudet ehdot ovat voimassa 1.5.2025 alkaen. Tutustu ehtoihin
Itälahdenkatu 23 Lauttasaari, Helsinki
00210Tyyppi
Toimisto
Koko
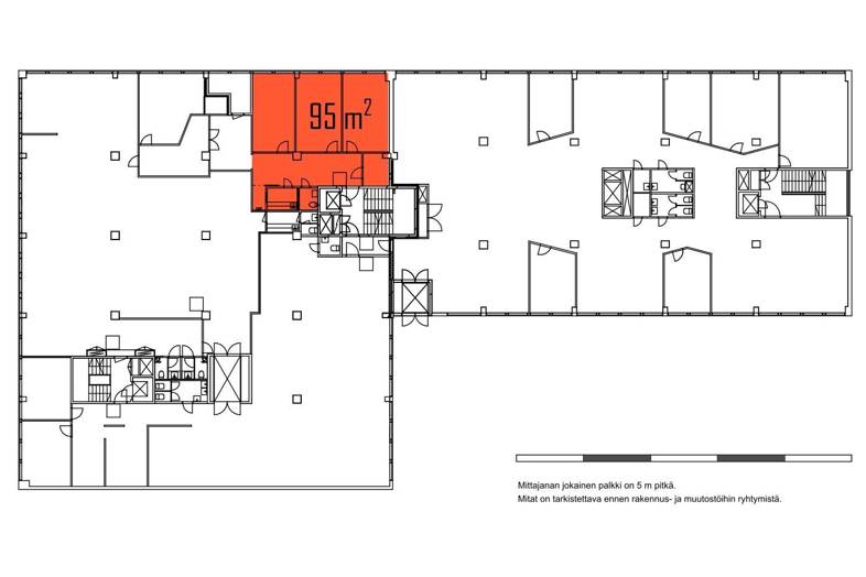
95 m²
Vuokra
Kysy hintaa!
Vuokrataan Helsingin Lauttasaaresta toisen kerroksen 95 m² toimistotila. Tila käsittää kolme tilavaa työ-/neuvotteluhuonetta ja varastohuoneen. Keittokomero ja wc-tilat ovat yhteiskäyttöiset viereisen vuokralaisen kanssa.
Itälahdenkatu 23 tarjoaa yrityksellesi siistit tilat, jotka soveltuvat erinomaisesti monenlaisiin tarpeisiin. Kiinteistö sijaitsee keskeisellä paikalla hyvien kulkuyhteyksien varrella, mikä tekee siitä helposti saavutettavan niin julkisilla kulkuvälineillä kuin omalla autolla.
Läheltä löytyvät myös monipuoliset palvelut ja lounasvaihtoehdot, jotka tukevat työpäivän sujuvuutta.
Jos etsit toimitilaa, joka tukee yrityksesi kasvua ja tarjoaa viihtyisän ympäristön, tämä kohde on erinomainen valinta. Kysy rohkeasti lisätietoja ja sovitaan käynti kohteella jo tänään!
Perustiedot
Tyyppi:
Toimisto
Sopimustyyppi:
Vuokrataan
Osoite:
Itälahdenkatu 23, 00210 Helsinki
Kaupunginosa:
Lauttasaari
Tilan koko
Kokonaispinta-ala:
95 m²
Rakennustiedot
Kiinteistön nimi:
Itälahdenkatu 23
Kartta
Tietoa ilmoittajasta
Hausala Oy
Näytä kaikki saman ilmoittajan kohteetErkkilänkatu 11
33100
TAMPERE
















