Uudet käyttö- ja sopimusehdot
Päivitämme käyttö- ja sopimusehtojamme. Uudet ehdot ovat voimassa 1.5.2025 alkaen. Tutustu ehtoihin
Metsolantie 2 B Kaleva, Kerava
04200Tyyppi
Liiketila
Koko
57 m²
Vuokra
Kysy hintaa!
Saatavilla
Heti
Kahvila - ja lounasravintola yrittäjälle hyvä paikka Keravan Terveyskeskuksen kahvila - kanttiini tila.
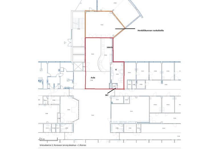
Vuokrattava tila sisäänkäynti B yhteydessä, jossa laboratorion odotustila.
Aulatila palvelee myös kahvilalle osoitettuja asiakaspaikkoja + erillinen henkilökunnan ruokailutila.
Kahvilan aukioloaika terveyskeskuksen aukioloaikana arkisin klo 7 - 18:30, sekä viikonloppuisin.
Jakelu- palvelukeittiössä olevat koneet ja kalusteet kuuluvat varustukseen:
2x huuva, uuni, jääkaappi, kylmiö, pakastin, liesi ja vesipiste.
Rikkinäiset korjataan tai viedään pois.
Jakelu tila sisältäen: vitriini, jakelutiski, lämpökaapit ja muut laitteet ja koneet, jotka siinä on.
Vuokralainen voi myös tuoda omat koneet ja kalusteet.
Keittiössä rasvakanava.
IV ja rasvakanava nuohottu vuokranantajan toimesta.
Lisätietoja ja esittelyt:
Mika Nyman
0400347758
mika.nyman@op.fi
Perustiedot
Tyyppi:
Liiketila
Sopimustyyppi:
Vuokrataan
Osoite:
Metsolantie 2 B, 04200 Kerava
Kaupunginosa:
Kaleva
Rakennustiedot
Energialuokka:
C2018, Energiatodistuksen voimassaolo 10.11.2033 asti.
Lisätiedot
Saatavilla:
Heti
Muita tietoja:
Vuokranantaja laskuttaa sähkön, veden ja jätehuolto kustannuksen / sovittava erikseen vuokranantajan kanssa.
Vuokralainen vastaa tarvittavista tietoliikenneyhteyksiestä sekä toiminnan edellyttävistä vakuutuksista.
Vakuus 3 kk vuokraa vastaava summa. Vuokrattavana Keravan terveyskeskuksen kahvila tila sisäänkäynti B yhteydessä, jossa laboratorion odotustila.
Aulatila palvelee myös kahvilalle osoitettuja asiakaspaikkoja + erillinen henkilökunnan ruokailutila.
Kahvilan aukioloaika terveyskeskuksen aukioloaikana arkisin klo 7 - 18:30, sekä viikonloppuisin.
Tavarantoimitukset tapahtuvat kellarikerroksen kautta, jossa myös osoitetut pukuhuonetilat.
Vuokralaiselle toimitetaan erillinen kulkuoikeus terveyskeskuksen yhteisiin tiloihin.
Kahvilan henkilökunnalle on varattu kahvilan läheisyydessä oleva wc tila.
Vuokran suuruus on 10 % Keravan terveysaseman varsinaisen kahvilatoiminnan myyntituotoista. Vuokran määrityksessä myyntituottoista voidaan arvonlisäveron lisäksi vähentää ainoastaan luottotappiot.
(Esimerkki: Jos kahvila-ravintola-toiminnan myyntituotot ovat 10 000 euroa (ei sisällä arvonlisäveroa), niin vuokran määrä on 1000 euroa/kk + arvonlisävero
(0,10 x 10 000 euroa/kk = 1 000 euroa/kk)
Vuokralainen on velvollinen toimittamaan Vuokranantajalle kuukausittain raportit Keravan terveysaseman kahvilatoiminnan tuotoista sekä yhteenvetoraportit että raportit, joista ilmenee tuotot tuoteryhmiin jaettuna.
Vuokraan lisätään arvonlisävero voimassa olevan verokannan mukaisesti. Sopimuksen allekirjoitushetkellä arvonlisävero on 25,5 prosenttia.
Vuokranmaksu alkaa 1.2.2026 ja jatkuu vuokra-ajan loppuun.
Vuokra maksetaan kuukausittain jälkilaskelman perusteella vuokrajaksoa seuraavan kuukauden 15. päivään mennessä vuokranantajan osoittamalle tilille vuokranantajan erikseen lähettämään laskua vastaan.
Vuokralainen on velvollinen ilmoittamaan vuokranantajalle, mikäli hänen yhteystietonsa muuttuvat.
Vuokra tarkastetaan elinkustannusindeksin mukaan vuosittain vuokrasuhteen alkamis ajankohdasta.
Vakuus 3 kk arvioitua (1.000€ /kk) vuokraa + alv vastaava summa 3.765 €.
Dokumentit
Kartta
Ota yhteyttä
Mika Nyman
Näytä puhelinnumero
Lähetä yhteydenottopyyntö
Tietoa ilmoittajasta
OP Koti Uusimaa Oy LKV, Toimitilat
Näytä kaikki saman ilmoittajan kohteetArkadiankatu 23
00100
Helsinki




























