Uudet käyttö- ja sopimusehdot
Päivitämme käyttö- ja sopimusehtojamme. Uudet ehdot ovat voimassa 1.5.2025 alkaen. Tutustu ehtoihin
Käenkuja 3 Sörnäinen, Helsinki
00500Tyyppi
Toimisto
Koko
150 m²
Kerros
5
Vuokra
Kysy hintaa!
Tyylikästä ja modernia toimistotilaa saneeratussa kiinteistössä Helsingin Sörnäisissä.
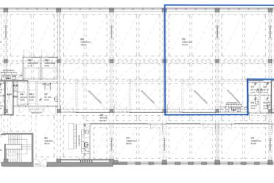
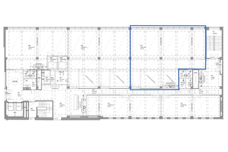
Kiinteistön 5. kerroksessa on POOL-pientoimistoalue, joka tarjoaa muuttovalmiita pientoimistoja. Tiloja vuokrataan joustavin sopimusehdoin. Tämä tila on kooltaan 150 m². Sisäkuvat ovat 5. kerroksen pientoimistoalueelta.
Käenkuja 3 on toimistokiinteistö, joka sijaitsee helposti saavutettavissa olevalla paikalla Hämeentien varrella. Kiinteistön tilat on modernisoitu industrial-tyylisiksi ja tekniikka on uusittu nykypäivän vaatimusten mukaiseksi. Kiinteistö on edustava ja hinnaltaan sekä sijainniltaan kilpailukykyinen. Kiinteistössä myös hyvät palvelut yrityksen liiketoiminnan tueksi.
Parkkipaikkoja on vuokrattavissa läheisestä pysäköintilaitoksesta. Talon omassa hallissa on muutamia paikkoja vapaana.
Perustiedot
Tyyppi:
Toimisto
Sopimustyyppi:
Vuokrataan
Osoite:
Käenkuja 3, 00500 Helsinki
Kaupunginosa:
Sörnäinen
Tilan koko
Kokonaispinta-ala:
150 m²
Rakennustiedot
Energialuokka:
Ei lain edellyttämää energiatodistusta
Lisätiedot
Kerros:
5
Tietoa ilmoittajasta
ScanReal Oy LKV
Näytä kaikki saman ilmoittajan kohteetOpus Business Park, Hitsaajankatu 24
00810
Helsinki


























