Uudet käyttö- ja sopimusehdot
Päivitämme käyttö- ja sopimusehtojamme. Uudet ehdot ovat voimassa 1.5.2025 alkaen. Tutustu ehtoihin
Harjuntausta 4 Lielahti, Tampere
33400Tyyppi
Liiketila
Koko
535 m²
Vuokra
Kysy hintaa!
Harvoin tarjolla hyvänkokoista myymälätilaa Tampereen Lielahdessa keskeisellä sijainnilla.
Lielahti on Yksi Tampereen merkittävimmistä kaupallisista keskittymistä ja sen ympärillä on paljon asutusalueita.
Lielahteen pääsee niin ratikalla kuin useilla paikallisbusseilla ja suurilla pysäköintialueilla pysäköinti on ilmaista.
Tampereen keskustaan matkaa on n. 6 kilometriä.
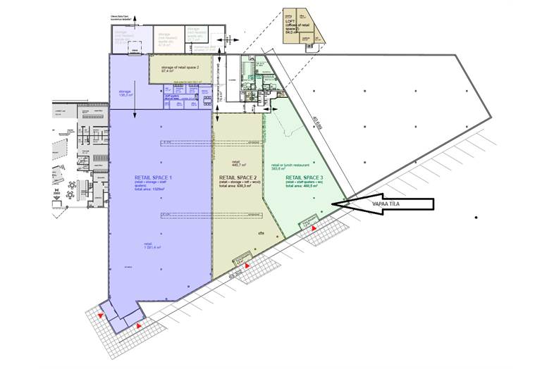
Ihan Lielahden ytimessä, K-Citymarkettia vastapäätä vapautuu liiketilaa alkuvuodesta 2026.
Kiinteistöön tulee kolme uutta myymälätilaa, joista kahteen on tulossa nimekkäiden ketjujen myymälät. Toinen julkistettu toimija on Clas Ohlson.
Vielä vapaana on n. 535 m2 kokoinen kokonaisuus (tila no 3). Tässä on myymälätilan lisäksi sosiaalitilat, toimistoa ja n. 35m2 kokoinen lämmin varasto. Lastaus tapahtuu toisen liiketilan kanssa yhteisen käytävän ja lastausalueen kautta.
Asiakaspysäköinti on ilmaista liiketilan edessä olevalla isolla pysäköintialueella.
Kiinteistön julkisivua ehostetaan ja ilmoituksen kuvissa on havainnekuvia tästä.
Lielahdessa on harvoin tarjolla keskeisellä paikalla hyvää myymälätilaa.
Ole yhteydessä!
annina.niemi@catella.fi, p. 0404812220
Perustiedot
Tyyppi:
Liiketila
Sopimustyyppi:
Vuokrataan
Osoite:
Harjuntausta 4, 33400 Tampere
Kaupunginosa:
Lielahti
Tilan koko
Kokonaispinta-ala:
535 m²
Kartta
Tietoa ilmoittajasta

Catella Property Oy, Tampere
Näytä kaikki saman ilmoittajan kohteetHämeenkatu 13 b
33100
TAMPERE




















