Uudet käyttö- ja sopimusehdot
Päivitämme käyttö- ja sopimusehtojamme. Uudet ehdot ovat voimassa 1.5.2025 alkaen. Tutustu ehtoihin
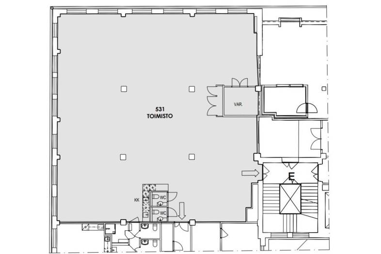
Pursimiehenkatu 29-31 Punavuori, Helsinki
00150Tyyppi
Toimisto
Koko
341 m²
Kerros
5
Vuokra
Kysy hintaa!
Erinomainen sijainti Punavuoressa, suositussa dynaamisessa ja yhteisöllisessä Merikorttelissa! Alueella paljon laadukkaita ravintoloita ja kahviloita. Pysäköintitilaa tarjolla korttelin omassa parkkihallissa sekä läheisissä pysäköintilaitoksissa. Läheltä kulkee myös raitiovaunu ja linja-autot.
Lisätietoja soita 020 730 4530 tai info@repoint.fi. Palvelumme on tilanhakijalle ilmainen.
Perustiedot
Tilan koko
Lisätiedot
Kartta
Tietoa ilmoittajasta
REpoint Toimitilat Oy
Näytä kaikki saman ilmoittajan kohteetItälahdenkatu 22b
00210
HELSINKI
Repoint on pääkaupunkiseudun toimitilavuokraukseen keskittynyt välitysliike. Toimintamme perustuu laadukkaaseen ja luotettavaan palveluun, sekä tilaa hakevan yrityksen toiminnan ja tarpeiden ymmärtämiseen. Soita meille 020 730 4530. Palvelumme on tilanhakijalle ilmainen.



















































































































