Uudet käyttö- ja sopimusehdot
Päivitämme käyttö- ja sopimusehtojamme. Uudet ehdot ovat voimassa 1.5.2025 alkaen. Tutustu ehtoihin
Kalevantie 8 Kupittaa, Turku
20520Tyyppi
Liiketila
Koko
162 m²
Vuokra
Kysy hintaa!
Saatavilla
Heti vapaa
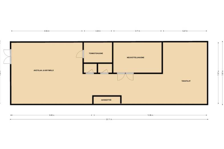
Vuokrataan n. 162m2 toimitila Turun Kupittaan liike- ja toimistokeskittymästä Kalevantien varrelta. Hyvällä sijainnilla oleva toimitilakokonaisuus käsittää suuret näyteikkunat kadulle, toimistotilaa, asiakaspaikkoja liikkeen edestä, sosiaalitilat sekä varasto- ja myymälätilaa.
Monikäyttöinen kokonaisuus koostuu n. 68m2 myymälä/liiketilasta. Lisäksi tilan keskellä on taukotilaksi muuntautuva alue. Takaosassa puolestaan on n. 40m2 aiemmin hyvinvointitilana ja toimistokäytössä ollut lohko. Kokonaisuuden takaosassa on lisäksi n. 40m2 käsittävä työtila.
Lattian pintamateriaalit ovat pääasiallisesti laminaattia. Lisäksi myymälätilasta löytyy viilennys ja useampi vesipiste. Kohde on myös hyvin saavutettavissa mm. julkisilla ja omalla autolla. Kohteen välittömässä läheisyydessä sijaitsee Tyksin T-sairaala, Kupittaan toimistokeskittymä ja Kupittaan Rautatieasema.
Vuokraan lisätään voimassa oleva alv. Lämmitys sisältyy vuokraan.
Lisätiedot ja yhteydenotto:
www.blanctoimitilat.fi
Harri Laisto, Yrittäjä, LKV, Kaupanvahvistaja
+358 40 536 5590
harri.laisto@blanckiinteisto.com
Perustiedot
Tyyppi:
Liiketila
Sopimustyyppi:
Vuokrataan
Osoite:
Kalevantie 8, 20520 Turku
Kaupunginosa:
Kupittaa
Lisätiedot
Saatavilla:
Heti vapaa
Kartta
Ota yhteyttä
Harri Laisto
Toimitila-asiantuntija, CEO, Kaupanvahvistaja, LKV
Näytä puhelinnumero
Lähetä yhteydenottopyyntö
Tietoa ilmoittajasta
Blanc Toimitilat
Näytä kaikki saman ilmoittajan kohteetHenry Fordin katu 5
00150
Helsinki






















