Uudet käyttö- ja sopimusehdot
Päivitämme käyttö- ja sopimusehtojamme. Uudet ehdot ovat voimassa 1.5.2025 alkaen. Tutustu ehtoihin
Meritullinkatu 1 C Kruununhaka, Helsinki
00170Tyyppi
Toimisto
Koko
138 m²
Kerros
2
Vuokra
Kysy hintaa!
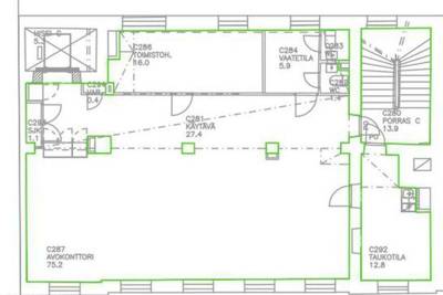
Hyväkuntoinen 138 m² avotoimisto Kruununhaassa.
Persoonallista toimistotilaa upealla paikalla Kruununhaassa.
Hyväkuntoinen 138 m² avotoimisto jossa myös muutama huone ja keittiö.
Huonekorkeus 3,3 m
Perustiedot
Tyyppi:
Toimisto
Sopimustyyppi:
Vuokrataan
Osoite:
Meritullinkatu 1 C, 00170 Helsinki
Kaupunginosa:
Kruununhaka
Tilan koko
Kokonaispinta-ala:
138 m²
Rakennustiedot
Energialuokka:
Ei lain edellyttämää energiatodistusta
Lisätiedot
Kerros:
2
Ympäristö
Lähipalvelut:
Viihtyisällä Kruununhaan alueella on paljon hyviä ravintoloita ja kivijalkaputiikkeja.
Liikenneyhteydet:
Raitiovaunu- ja bussipysäkit sijaitsevat lyhyen kävelymatkan päässä.
Kartta
Tietoa ilmoittajasta
ScanReal Oy LKV
Näytä kaikki saman ilmoittajan kohteetOpus Business Park, Hitsaajankatu 24
00810
Helsinki






















