Uudet käyttö- ja sopimusehdot
Päivitämme käyttö- ja sopimusehtojamme. Uudet ehdot ovat voimassa 1.5.2025 alkaen. Tutustu ehtoihin
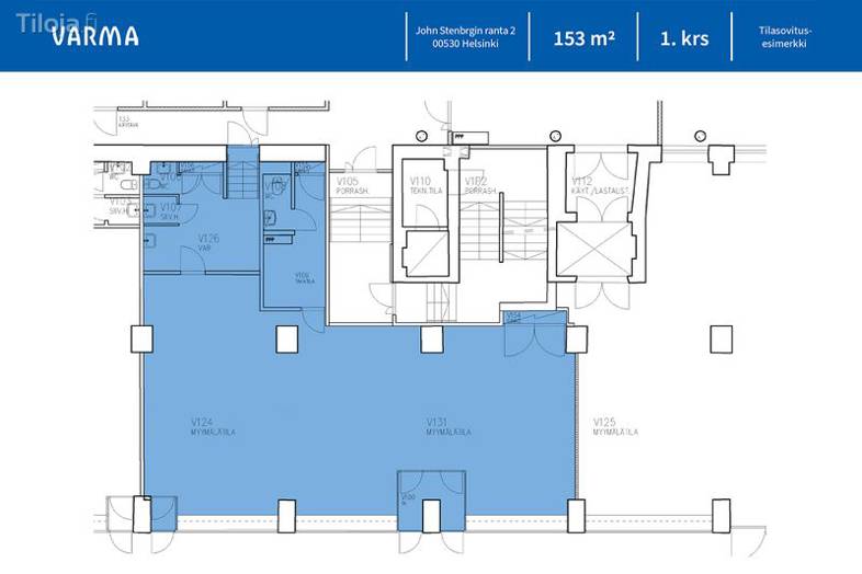
John Stenbergin ranta 2 Siltasaari, Helsinki
00530Tyyppi
Liiketila
Koko
150 m²
Vuokra
Kysy hintaa!
Vuokrattavana liiketilaa Siltasaaressa kauniista John S -toimistotalosta.
Tyylikäs katutason liiketila kauniissa John S -toimistotalossa. Tila ei sovellu ravintolatoimintaan, mutta tarjoaa erinomaiset puitteet monenlaiselle liiketoiminnalle. Kiinteistö sijaitsee keskeisellä paikalla Siltasaaressa, hyvien kulkuyhteyksien varrella.
Toimitilan tiedot
+ Tilatyyppi: Liiketila
+ Pinta-ala: n. 150 m² (jaettavissa 86 m² / 67 m²)
+ Kerros: Katutaso
+ Ei sovellu ravintolatoimintaan!
Tervetuloa tutustumaan tiloihin
Perustiedot
Tyyppi:
Liiketila
Sopimustyyppi:
Vuokrataan
Osoite:
John Stenbergin ranta 2, 00530 Helsinki
Kaupunginosa:
Siltasaari
Tilan koko
Kokonaispinta-ala:
150 m²
Kartta
Ota yhteyttä
JK
Joakim Kukkonen
Osakas, Toimitilavälittäjä
Näytä puhelinnumero
SP
Seppo Pakarinen
Osakas, Kiinteistönvälittäjä. LKV, YKV, AKA
Näytä puhelinnumero
Tietoa ilmoittajasta
Arvo Premises Oy
Näytä kaikki saman ilmoittajan kohteetItälahdenkatu 2 a 20
00210
Helsinki








