Uudet käyttö- ja sopimusehdot
Päivitämme käyttö- ja sopimusehtojamme. Uudet ehdot ovat voimassa 1.5.2025 alkaen. Tutustu ehtoihin
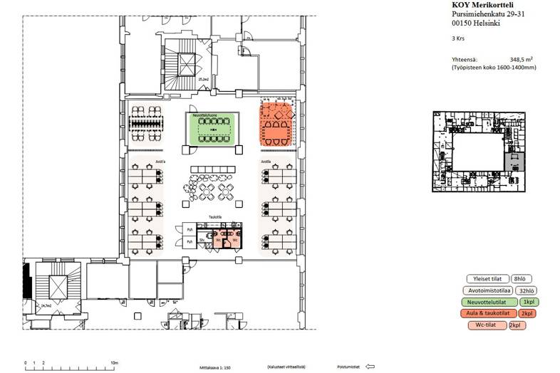
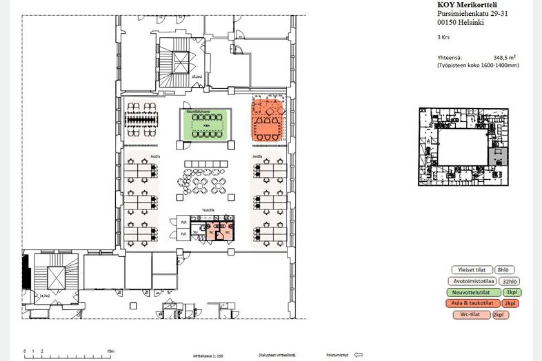
Pursimiehenkatu 29-31 Punavuori, Helsinki
00150Tyyppi
Toimisto
Koko
360 m²
Vuokra
Kysy hintaa!
Vapaana toimistotila Merikorttelissa Punavuoressa 360 m²
Merikorttelin historiallisessa miljöössä Punavuoressa vuokrattavana on 362 m² kokoinen industrial-henkinen toimisto. Tila on muuttovalmis ja siinä on korkea huonekorkeus, joka tuo avaruutta ja valoisuutta työympäristöön.
Tilojen tiedot:
362 m² toimistotilaa, 3. kerros
Muuttovalmis – heti käyttöön otettavissa
Sopii 30–60 henkilölle
Industrial-tyylinen tila, korkea huonekorkeus ja valoisa ympäristö
Tämä tila tarjoaa modernin ja inspiroivan työympäristön yritykselle, joka arvostaa tunnelmaa ja toimivuutta yhdistettynä Punavuoren legendaariseen Merikortteliin.
Perustiedot
Tyyppi:
Toimisto
Sopimustyyppi:
Vuokrataan
Osoite:
Pursimiehenkatu 29-31, 00150 Helsinki
Kaupunginosa:
Punavuori
Tilan koko
Kokonaispinta-ala:
360 m²
Rakennustiedot
Energialuokka:
Ei lain edellyttämää energiatodistusta
Ympäristö
Lähipalvelut:
Tunnelmallinen Merikortteli on ainutlaatuinen kiinteistö merellisen Punavuoren sydämessä.
Talossa toimii monipuolinen joukko yrityksiä kahvipaahtimoista mainostoimistoihin, jotka yhdessä muodostavat ainutlaatuisen ja eloisan työyhteisön. Keväällä 2022 palvelutarjonta laajentui italialaisesta pizzakulttuurista elävän Forzan ja leipomo-ravintola Levainin myötä. Korttelissa on myös tunnelmallinen elokuvateatteri Riviera. Viime vuosina valtavasti kehittyneellä Telakkakadulla sijaitsevasta Merikorttelista löytyy jo entuudestaan muun muassa kahvipaahtimo-kahvila Kaffa Roastery ja lounasravintola-kahvila Moko Market Café.
Lounasravintola / kahvila
Neuvottelutiloja
Joustotilat
Parkkihalli
Pyöräparkki
Päivittäistavarakauppa
Sähköauton latauspiste
Wellness-palveluita
Dokumentit
Kartta
Ota yhteyttä
JK
Joakim Kukkonen
Osakas, Toimitilavälittäjä
Näytä puhelinnumero
SP
Seppo Pakarinen
Osakas, Kiinteistönvälittäjä. LKV, YKV, AKA
Näytä puhelinnumero
Tietoa ilmoittajasta
Arvo Premises Oy
Näytä kaikki saman ilmoittajan kohteetItälahdenkatu 2 a 20
00210
Helsinki






















