Uudet käyttö- ja sopimusehdot
Päivitämme käyttö- ja sopimusehtojamme. Uudet ehdot ovat voimassa 1.5.2025 alkaen. Tutustu ehtoihin
Pursimiehenkatu 29-31 Punavuori, Helsinki
00150Tyyppi
Toimisto
Koko
116 m²
Vuokra
Kysy hintaa!
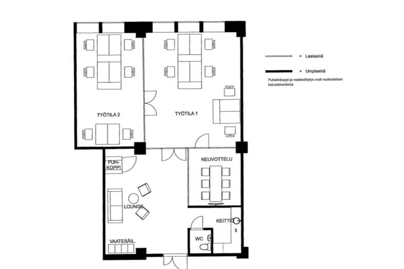
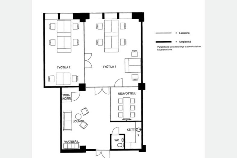
Vapaana toimistotila Merikorttelissa Punavuoressa 116 m²
Punavuoren ainutlaatuisessa miljöössä sijaitseva Merikortteli tarjoaa inspiroivan ympäristön yrityksille, jotka arvostavat historiaa ja modernia toimivuutta. Nyt vuokrattavana on 117 m² kokoinen korkea toimitila, joka soveltuu monenlaiseen käyttöön ja tarjoaa joustavat mahdollisuudet tilaratkaisuihin.
Tilojen tiedot:
116 m² toimistotilaa, 3. kerros
Muuttovalmis – heti käyttöön
Soveltuu 5–12 henkilölle
Korkea ja avara tila tunnelmallisessa Merikorttelissa
Tämä toimitila on erinomainen valinta yritykselle, joka etsii kompaktia, mutta inspiroivaa työympäristöä Punavuoren sydämessä.
Perustiedot
Tyyppi:
Toimisto
Sopimustyyppi:
Vuokrataan
Osoite:
Pursimiehenkatu 29-31, 00150 Helsinki
Kaupunginosa:
Punavuori
Tilan koko
Kokonaispinta-ala:
116 m²
Rakennustiedot
Energialuokka:
Ei lain edellyttämää energiatodistusta
Ympäristö
Lähipalvelut:
Tunnelmallinen Merikortteli on ainutlaatuinen kiinteistö merellisen Punavuoren sydämessä.
Talossa toimii monipuolinen joukko yrityksiä kahvipaahtimoista mainostoimistoihin, jotka yhdessä muodostavat ainutlaatuisen ja eloisan työyhteisön. Keväällä 2022 palvelutarjonta laajentui italialaisesta pizzakulttuurista elävän Forzan ja leipomo-ravintola Levainin myötä. Korttelissa on myös tunnelmallinen elokuvateatteri Riviera. Viime vuosina valtavasti kehittyneellä Telakkakadulla sijaitsevasta Merikorttelista löytyy jo entuudestaan muun muassa kahvipaahtimo-kahvila Kaffa Roastery ja lounasravintola-kahvila Moko Market Café.
Lounasravintola / kahvila
Neuvottelutiloja
Joustotilat
Parkkihalli
Pyöräparkki
Päivittäistavarakauppa
Sähköauton latauspiste
Wellness-palveluita
Dokumentit
Kartta
Ota yhteyttä
JK
Joakim Kukkonen
Osakas, Toimitilavälittäjä
Näytä puhelinnumero
SP
Seppo Pakarinen
Osakas, Kiinteistönvälittäjä. LKV, YKV, AKA
Näytä puhelinnumero
Tietoa ilmoittajasta
Arvo Premises Oy
Näytä kaikki saman ilmoittajan kohteetItälahdenkatu 2 a 20
00210
Helsinki








