Uudet käyttö- ja sopimusehdot
Päivitämme käyttö- ja sopimusehtojamme. Uudet ehdot ovat voimassa 1.5.2025 alkaen. Tutustu ehtoihin
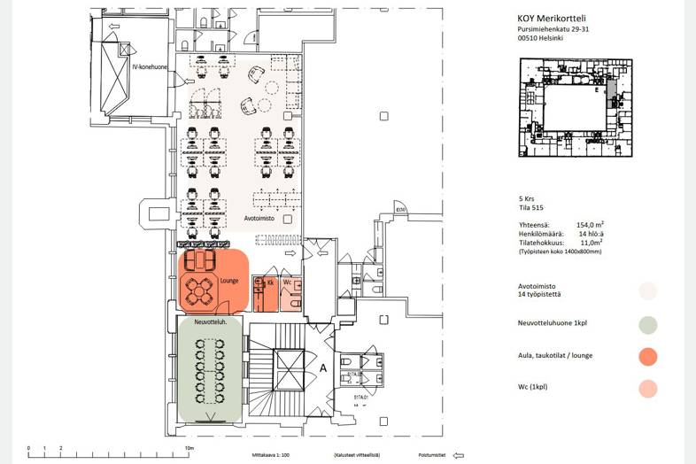
Pursimiehenkatu 29-31 Punavuori, Helsinki
00150Tyyppi
Toimisto
Koko
153 m²
Vuokra
Kysy hintaa!
Vapaana toimistotila Merikorttelissa Punavuoressa 153 m²
Merikortteli Punavuoressa on tunnettu historiallisesta ja inspiroivasta ilmapiiristään, jossa vanhan tehdasrakennuksen rouheus yhdistyy moderniin toimistoympäristöön. Nyt tarjolla on 153 m² kokoinen toimitila viidennessä kerroksessa.
Tila soveltuu erinomaisesti luoville aloille, toimistokäyttöön tai pienelle yritykselle, joka arvostaa hyvää sijaintia, tunnelmaa ja toimivaa työympäristöä. Suuret ikkunat tuovat valoa ja avaruutta, ja rakennuksen yhteiset tilat tukevat viihtyisää arkea.
Keskeiset edut:
Inspiroiva ja arvostettu sijainti Punavuoren sydämessä
Historiallinen, mutta moderniksi uudistettu kiinteistö
153 m² joustava toimitila 5. kerroksessa
Hyvät kulkuyhteydet ja palvelut lähellä
Merikortteli on alueena tunnettu luovista toimijoista, yhteisöllisyydestä ja elävästä ympäristöstä – täydellinen paikka yritykselle, joka haluaa erottua ja viihtyä.
Perustiedot
Tyyppi:
Toimisto
Sopimustyyppi:
Vuokrataan
Osoite:
Pursimiehenkatu 29-31, 00150 Helsinki
Kaupunginosa:
Punavuori
Tilan koko
Kokonaispinta-ala:
153 m²
Rakennustiedot
Energialuokka:
Ei lain edellyttämää energiatodistusta
Ympäristö
Lähipalvelut:
Tunnelmallinen Merikortteli on ainutlaatuinen kiinteistö merellisen Punavuoren sydämessä.
Talossa toimii monipuolinen joukko yrityksiä kahvipaahtimoista mainostoimistoihin, jotka yhdessä muodostavat ainutlaatuisen ja eloisan työyhteisön. Keväällä 2022 palvelutarjonta laajentui italialaisesta pizzakulttuurista elävän Forzan ja leipomo-ravintola Levainin myötä. Korttelissa on myös tunnelmallinen elokuvateatteri Riviera. Viime vuosina valtavasti kehittyneellä Telakkakadulla sijaitsevasta Merikorttelista löytyy jo entuudestaan muun muassa kahvipaahtimo-kahvila Kaffa Roastery ja lounasravintola-kahvila Moko Market Café.
Lounasravintola / kahvila
Neuvottelutiloja
Joustotilat
Parkkihalli
Pyöräparkki
Päivittäistavarakauppa
Sähköauton latauspiste
Wellness-palveluita
Dokumentit
Kartta
Ota yhteyttä
JK
Joakim Kukkonen
Osakas, Toimitilavälittäjä
Näytä puhelinnumero
SP
Seppo Pakarinen
Osakas, Kiinteistönvälittäjä. LKV, YKV, AKA
Näytä puhelinnumero
Tietoa ilmoittajasta
Arvo Premises Oy
Näytä kaikki saman ilmoittajan kohteetItälahdenkatu 2 a 20
00210
Helsinki












