Uudet käyttö- ja sopimusehdot
Päivitämme käyttö- ja sopimusehtojamme. Uudet ehdot ovat voimassa 1.5.2025 alkaen. Tutustu ehtoihin
Lentokentänkatu 9B Sarankulma, Tampere
33900Tyyppi
Varastotila
Koko
200 - 1 420 m²
Vuokra
Kysy hintaa!
Vuokrattavana monipuolista tuotanto-, varasto- ja toimistotilaa Tampereen Sarankulmasta
Monipuoliset tuotanto-, varasto- ja toimistotilat (400 - 1400m2) vuokrattavana Tampereen Rantaperkiöstä – Lentokentänkatu 9b
Etsitkö tilaa, joka yhdistää tehokkaan varastoinnin, toimivat tuotantopuitteet ja modernit toimistotilat?
Lentokentänkatu 9b:ssä, Koy Rantaperkiön yrittäjätalossa, on nyt vuokrattavana monikäyttöinen kokonaisuus, joka mukautuu erinomaisesti erilaisiin yritystarpeisiin.
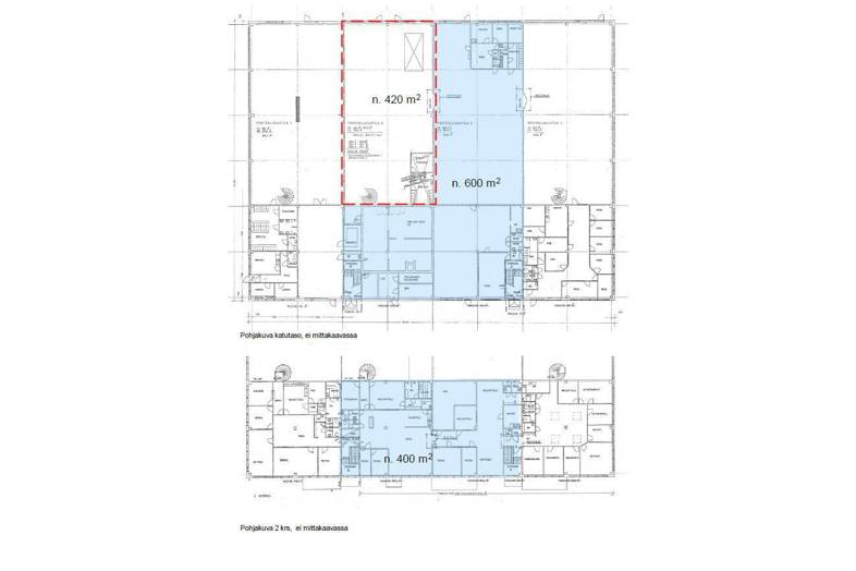
Tilakokonaisuus
Korkeaa tuotanto- ja varastotilaa n. 820 m² (sisäkorkeus jopa 7 m)
Matalampaa tuotanto-/varastotilaa n. 220 m²
Toimistotilaa n. 400 m²
Kokonaisuus vuokrataan mielellään yhtenä pakettina, mutta myös pienemmät osa-alueet ovat mahdollisia.
Sijainti tuo kilpailuetua - Rantaperkiön alue tunnetaan erinomaisista kulkuyhteyksistään ja monipuolisesta yritysverkostostaan.
Tampereen keskustaan vain n. 3 km
Tampere-Pirkkalan lentoasemalle noin 10 minuuttia autolla
Hervannan valtaväylälle ja Tampereen kehätielle sujuvat yhteydet
Bussilinjat 11, 12, 26 ja 31 kulkevat läheltä
Sijainti palvelee sekä logistiikkaa että toimistotyötä – asiakas- ja henkilökuntaliikenne on vaivatonta.
Tilojen vahvuudet
Useita nosto-ovia – helppo lastaus ja tavaraliikenne
Korkea varastohalli, joka mahdollistaa tehokkaan hyllyvarastoinnin tai tuotannon
Valoisat ja siistit toimistotilat neuvotteluhuoneineen ja työhuoneineen
Joustavat muuntelumahdollisuudet – toimisto ja halli voidaan yhdistää tai pitää erillään tarpeen mukaan
Tilat vapautuvat 1.10.2025
📍 Osoite: Lentokentänkatu 9b, 33900 Tampere
Tässä kiinteistössä yrityksesi saa toimivan kotipesän – yhdistä varasto, tuotanto ja toimisto saman katon alle, vain minuuttien päässä Tampereen keskustasta ja lentoasemasta.
Perustiedot
Tyyppi:
Varastotila, Tuotantotila, Liiketila, Toimisto
Sopimustyyppi:
Vuokrataan
Osoite:
Lentokentänkatu 9B, 33900 Tampere
Kaupunginosa:
Sarankulma
Tilan koko
Kokonaispinta-ala:
1420 m²
Tilan jakautuminen tilatyyppien mukaan
| Tilatyypit | Min m² | Max m² | €/m²/kk |
|---|---|---|---|
| Varastotila | 200 | 1 020 | |
| Tuotantotila | 200 | 1 020 | |
| Liiketila | 200 | 1 000 | |
| Toimisto | 400 |
Kartta
Tietoa ilmoittajasta
LogisTila Oy LKV
Näytä kaikki saman ilmoittajan kohteetKauppakatu 14
33210
Tampere






































