Uudet käyttö- ja sopimusehdot
Päivitämme käyttö- ja sopimusehtojamme. Uudet ehdot ovat voimassa 1.5.2025 alkaen. Tutustu ehtoihin
Koskelontie 21-25 Koskelo, Espoo
02920Tyyppi
Tuotantotila
Koko
626 m²
Vuokra
Kysy hintaa!
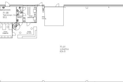
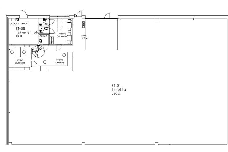
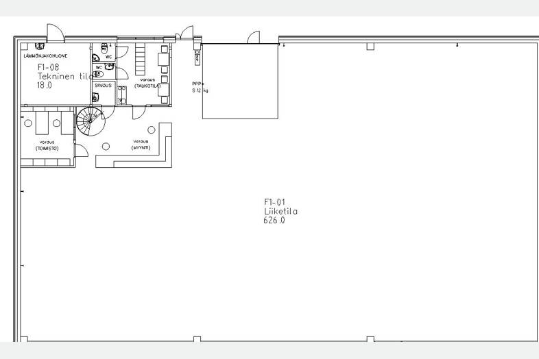
A-talossa sijaitseva, sisään ajettava, 626m2 lämmin varasto 4,5m nosto-ovella, tilan korkeus +6m, tilassa myös siistiä toimistoa. SOVI ESITTELY: Puh: 09 77 45 100.
Koskelo Trade Park on logistiikkakiinteistö loistavalla sijainnilla Espoon Koskelossa. Kiinteistöstä mahdollista saada toimisto- ja varastotilat saman katon alta.
Autoliikkeiden ja tukkukaupan alue.
Sijainti: Loistava sijainti Espoon Koskelossa Kehä III:n välittömässä läheisyydessä, josta yhteydet kaikille pääväylille sekä mm. Helsinki-Vantaan lentoasemalle ja Vuosaaren satamaan.
Perustiedot
Tyyppi:
Tuotantotila, Varastotila
Sopimustyyppi:
Vuokrataan
Osoite:
Koskelontie 21-25, 02920 Espoo
Kaupunginosa:
Koskelo
Tilan koko
Kokonaispinta-ala:
626 m²
Tilan jakautuminen tilatyyppien mukaan
| Tilatyypit | Min m² | Max m² | €/m²/kk |
|---|---|---|---|
| Tuotantotila | 626 | ||
| Varastotila | 626 |
Ympäristö
Pysäköinti:
Pihalla runsaasti pysäköintitilaa.
Liikenneyhteydet:
Kehä III
Tietoa ilmoittajasta

Senaatin Notariaatti Oy LKV
Näytä kaikki saman ilmoittajan kohteetLämmittäjänkatu 4 A
00880
HELSINKI














