Uudet käyttö- ja sopimusehdot
Päivitämme käyttö- ja sopimusehtojamme. Uudet ehdot ovat voimassa 1.5.2025 alkaen. Tutustu ehtoihin
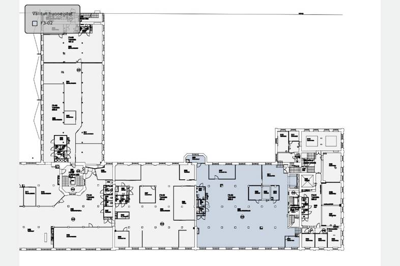
Kelloportinkatu 1 Tampella, Tampere
33100Tyyppi
Toimisto
Koko
596 m²
Kerros
3
Vuokra
Kysy hintaa!
Perustiedot
Rakennustiedot
Lisätiedot
Linkit
Kartta
Tietoa ilmoittajasta
Tuloskiinteistöt Oy, Tampere
Näytä kaikki saman ilmoittajan kohteetFinlaysoninkatu 4
33210
Tampere
Tuloskiinteistöt on Suomen vanhimpia ja perinteikkäimpiä kaupallisen kiinteistöalan asiantuntijayrityksiä. Tarjoamme kattavasti palveluita kiinteistöjen vuokrauksen, kaupankäynnin ja kiinteistöarviointien toimeksiannoissa, sekä tarjoamme kiinteistöliiketoiminnan konsultointipalveluita. Tuloskiinteistöt toimii koko maassa, ja teemme kauppoja ja vuokrauksia kaikkialla Suomessa. Meiltä löydät vapaat toimitilat yrityksenne kaikkiin tarpeisiin!



















































































