Uudet käyttö- ja sopimusehdot

Päivitämme käyttö- ja sopimusehtojamme. Uudet ehdot ovat voimassa 1.5.2025 alkaen. Tutustu ehtoihin

Toimitilat Kauppalehti
Valikko
  • Artikkelit
  • Ilmoittajalle
    Paketit ja hinnat
    Rekisteröidy ilmoittajaksi
    Vinkit ilmoitusten laadintaan
  • Tietoa palvelusta
    Etsi ilmoittajia
    Asiakastuki
    Tilan etsijän opas
    Tietoa meistä
  • Kirjaudu sisään
<< Takaisin kohdesivulle
Takaisin
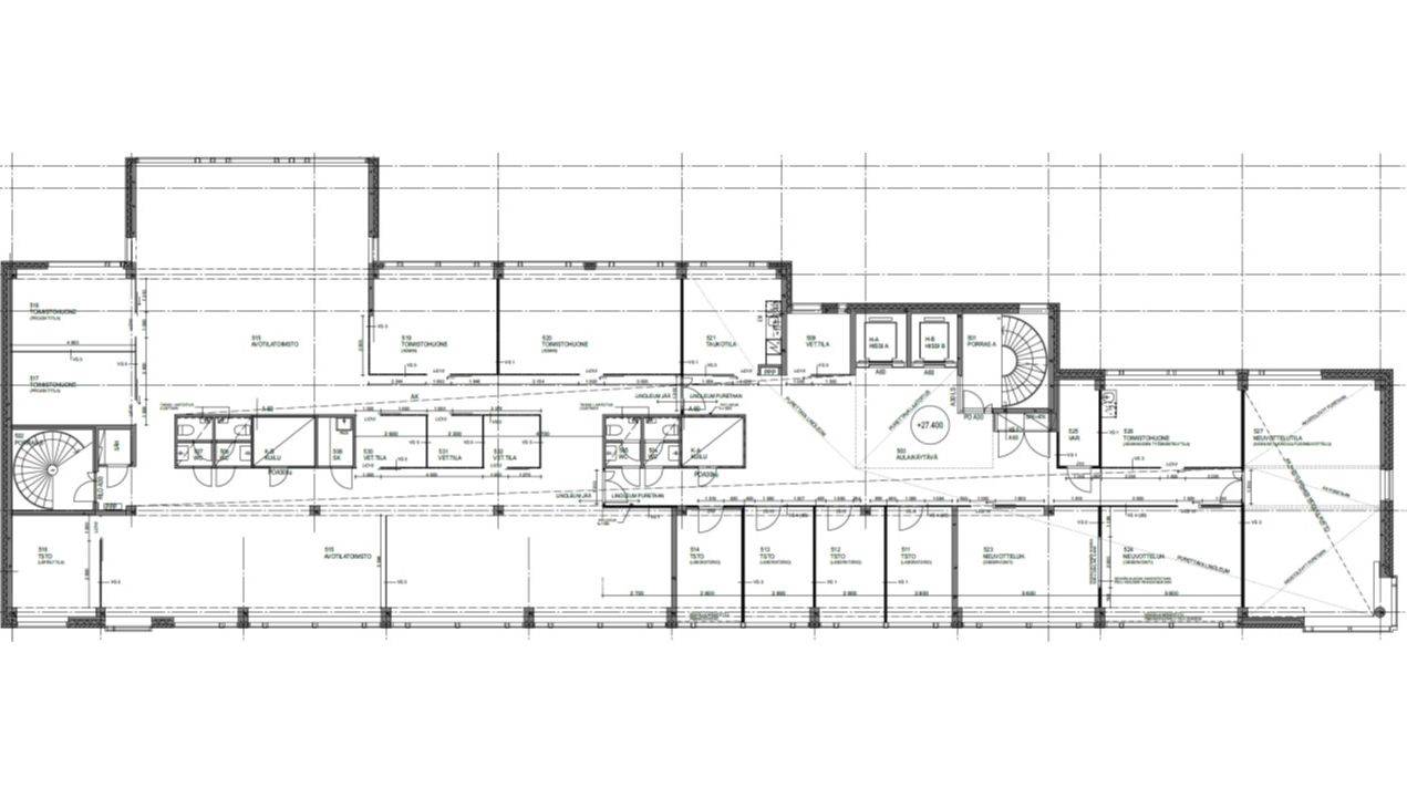
5.krs 636 m2
Kerrosesimerkki
Takaisin
<< Takaisin kohdesivulle
Toimitilat Kauppalehti

Toimitilat Kauppalehden ilmoitukset ovat mainoksia, jotka näytetään sinulle hakusi mukaisesti. Muuhun palvelun kohdennettuun mainontaan voit vaikuttaa evästeasetusten kautta.

Linkit:

Käyttö- ja sopimusehdot
Tietosuoja

Yritykset:

Tuotteemme
Bannerimainonta

Asiakaspalvelu:

Asiakastuki

Mitä mieltä olet sivustostamme? Auta meitä kehittymään ja anna palautetta:

Kirjaudu sisään

Jätä palautetta

Arvostamme kehitysehdotuksia ja palautetta sivustostamme ja sen toiminnasta:

Jos haluatte, että olemme yhteydessä palautteeseen liittyen, jättäkää tähän vielä yhteystietonne:

This site is protected by reCAPTCHA and the Google Privacy Policy and Terms of Service apply.