Uudet käyttö- ja sopimusehdot
Päivitämme käyttö- ja sopimusehtojamme. Uudet ehdot ovat voimassa 1.5.2025 alkaen. Tutustu ehtoihin
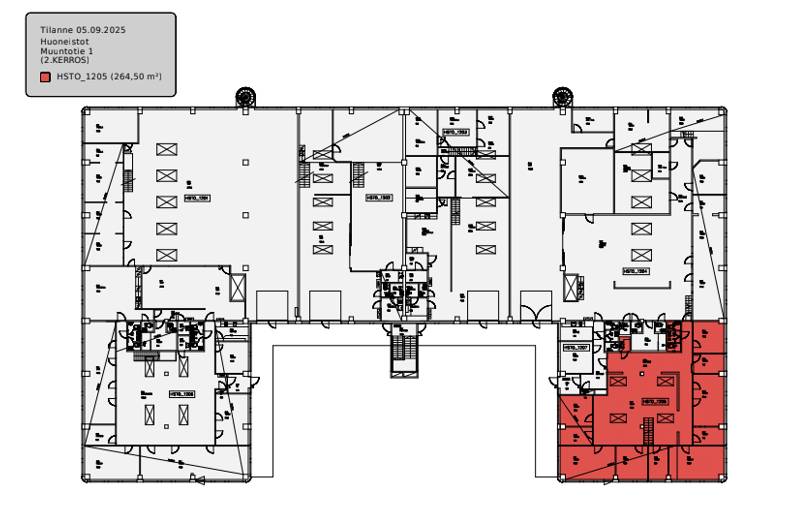
Muuntotie 1 Pakkala, Vantaa
01510Tyyppi
Toimisto
Koko
264 m²
Kerros
2
Vuokra
Kysy hintaa!
Vuokrattavana siisti toimistotila Vantaan Muuntotiellä kiinteistön ylätasanteella. Tilassa on avotoimistoa sekä useita erillisiä toimistohuoneita.
Kohde sijaitsee erinomaisten liikenneyhteyksien varrella, lähellä Tuusulanväylää sekä Kehä III:sta.
Lisätiedot numerosta: 020 7290 710. Lisää kohteita osoitteesta: www.premises.fi.
Energialuokka E
Perustiedot
Tyyppi:
Toimisto
Sopimustyyppi:
Vuokrataan
Osoite:
Muuntotie 1, 01510 Vantaa
Kaupunginosa:
Pakkala
Tilan koko
Kokonaispinta-ala:
264 m²
Lisätiedot
Kerros:
2
Kartta
Tietoa ilmoittajasta

CRE PREMISES
Näytä kaikki saman ilmoittajan kohteetVantaankoskentie 14
01670
VANTAA





