Uudet käyttö- ja sopimusehdot
Päivitämme käyttö- ja sopimusehtojamme. Uudet ehdot ovat voimassa 1.5.2025 alkaen. Tutustu ehtoihin
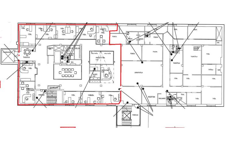
Vuokrattavana 4. kerroksen noin 428 m² toimistotilat Turun keskustan läheisyydestä, osoitteessa Ratapihankatu 53.
Tilakokonaisuus koostuu erikokoisista huoneista, kahdesta neuvottelutilasta, keittiöstä sekä useista wc-tiloista.
Kiinteistössä jäähdytetty ilmanvaihto.
Sijainti on erinomainen ja helposti saavutettavissa.
Tilassa on oma tavarahissi.
Vuokrapyyntö on 4 280 €/kk + alv. Alvittoman vuokralaisen hinta määritellään erikseen.
Vuokraan sisältyy lämmitys, vesi kulutuksen mukaan. Vuokralainen tekee oman sähkösopimuksen.
Vuokraan sisältyy autopaikkoja toimistossa työskentelevien henkilöiden lukumäärän mukaisesti (ei nimettyjä paikkoja).
Tila vapautuu 1.1.2026.
Lisää toimitiloja www.rhg.fi
Kohteella ei ole lain edellyttämää energiatodistusta ja sen vuoksi energialuokka ei ole tiedossa
Perustiedot
Tyyppi:
Toimisto
Sopimustyyppi:
Vuokrataan
Osoite:
Ratapihankatu 53 C, 20100 Turku
Vuokra:
10 €/m²/kk
Linkit
Kartta
Tietoa ilmoittajasta
Toimitilavälitys RHG Oy
Näytä kaikki saman ilmoittajan kohteetHämeenkatu 2 B20
20500
Turku

