Uudet käyttö- ja sopimusehdot
Päivitämme käyttö- ja sopimusehtojamme. Uudet ehdot ovat voimassa 1.5.2025 alkaen. Tutustu ehtoihin
Metsänpojankuja 1 Pohjois-Tapiola, Espoo
02130Tyyppi
Toimisto
Koko
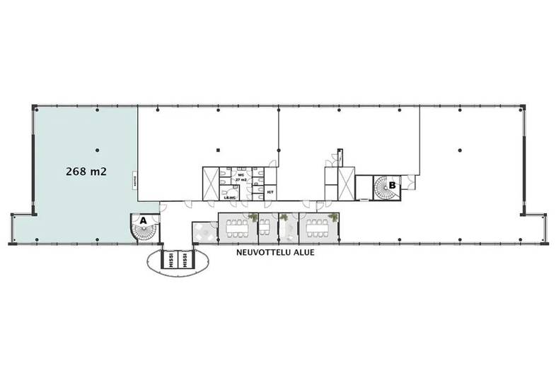
268 m²
Vuokra
Kysy hintaa!
Vuokrataan Espoon Tapiolasta 268 m² toimistotila täysin uudistetusta kohteesta. Tilankäyttöratkaisuun ja materiaalivalintoihin voi vielä vaikuttaa. Käytössä on vuokranantajan tarjoama sisustussuunnittelija.
Metsänpojankuja 1 tarjoaa yrityksellesi nykyaikaiset ja muuntojoustavat tilat, jotka soveltuvat erinomaisesti monenlaisiin tarpeisiin. Kiinteistö sijaitsee keskeisellä paikalla hyvien kulkuyhteyksien varrella, mikä tekee siitä helposti saavutettavan niin julkisilla kulkuvälineillä kuin omalla autolla.
Tilat ovat valoisia ja tehokkaasti suunniteltuja, ja kiinteistössä on kaikki tarvittavat palvelut sujuvaan arkeen. Läheltä löytyvät myös monipuoliset palvelut ja lounasvaihtoehdot, jotka tukevat työpäivän sujuvuutta.
Jos etsit toimistotilaa, joka tukee yrityksesi kasvua ja tarjoaa viihtyisän ympäristön, tämä kohde on erinomainen valinta. Kysy rohkeasti lisätietoja ja sovitaan käynti kohteella jo tänään!
Perustiedot
Tyyppi:
Toimisto
Sopimustyyppi:
Vuokrataan
Osoite:
Metsänpojankuja 1, 02130 Espoo
Kaupunginosa:
Pohjois-Tapiola
Tilan koko
Kokonaispinta-ala:
268 m²
Rakennustiedot
Kiinteistön nimi:
MaarinPortti
Kartta
Tietoa ilmoittajasta
Hausala Oy
Näytä kaikki saman ilmoittajan kohteetErkkilänkatu 11
33100
TAMPERE








