Uudet käyttö- ja sopimusehdot
Päivitämme käyttö- ja sopimusehtojamme. Uudet ehdot ovat voimassa 1.5.2025 alkaen. Tutustu ehtoihin
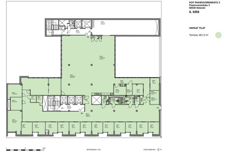
Paasivuorenkatu 3 Hakaniemi, Helsinki
00530Tyyppi
Toimisto
Koko
680 m²
Kerros
6 / 7
Vuokra
Kysy hintaa!
Valoisa ja edustava 680 m² toimistokokonaisuus Hakaniemessä
Paasivuorenkadun 680 m² kokoinen toimistotila tarjoaa yritykselle toimivan ja arvokkaan ympäristön Helsingin Hakaniemen paraatipaikalla. Tilat yhdistävät avaruutta ja tehokkuutta, ja pohjaratkaisu mahdollistaa sekä tiimityöskentelyn että erillisten työhuoneiden ja neuvottelutilojen käytön. Ikkunanäkymät avautuvat kauniisti Paasivuorenpuistikkoon, mikä tuo työympäristöön valoisuutta ja viihtyisyyttä.
Rakennus on peruskorjattu vuonna 2011 sen alkuperäistä henkeä kunnioittaen. Historiallinen pankkisali, jyhkeä pääporrashuone ja luonnonkivilaatoitus ovat säilyneet, ja ne luovat tilaan arvokkuutta ja ainutlaatuista tunnelmaa. Samalla toimitilat on varustettu nykyaikaisella teknologialla, mikä takaa toimivuuden ja käyttömukavuuden. Kohteella on BREEAM Excellent -sertifikaatti ja se käyttää kotimaista tuulisähköä, joten kyseessä on myös vastuullinen ja energiatehokas ratkaisu.
Vuokralaiset pääsevät nauttimaan kiinteistön monipuolisista palveluista. Käytössä ovat aulapalvelut, laadukas lounasravintola ja kahvila sekä edustavat saunatilat. Lisäksi sisäpihalta löytyy viihtyisä talvipuutarha, ja pysäköintihalli tarjoaa autopaikkoja sekä sähköautojen latausmahdollisuuden. Wellness-palvelut tukevat henkilöstön hyvinvointia ja tekevät arjesta sujuvaa.
Perustiedot
Tyyppi:
Toimisto
Sopimustyyppi:
Vuokrataan
Osoite:
Paasivuorenkatu 3, 00530 Helsinki
Kaupunginosa:
Hakaniemi
Tilan koko
Kokonaispinta-ala:
680 m²
Rakennustiedot
Rakennusvuosi:
1987
Energialuokka:
Ei lain edellyttämää energiatodistusta
Lisätiedot
Kerros:
6 / 7
Kartta
Tietoa ilmoittajasta
ScanReal Oy LKV
Näytä kaikki saman ilmoittajan kohteetOpus Business Park, Hitsaajankatu 24
00810
Helsinki
































