Uudet käyttö- ja sopimusehdot
Päivitämme käyttö- ja sopimusehtojamme. Uudet ehdot ovat voimassa 1.5.2025 alkaen. Tutustu ehtoihin
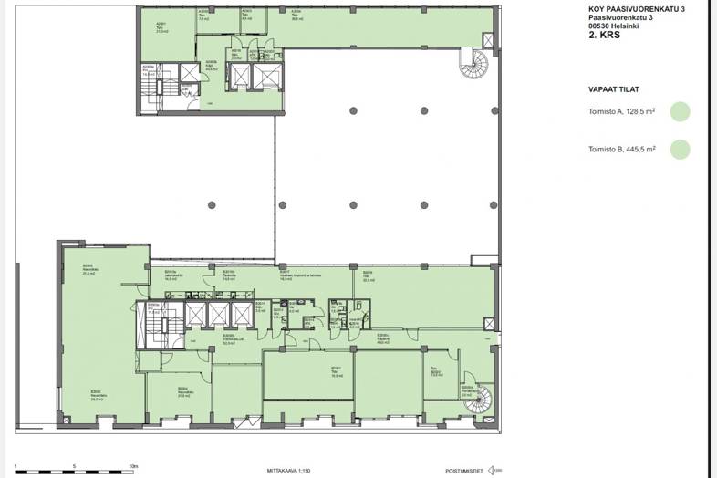
Paasivuorenkatu 3 Hakaniemi, Helsinki
00530Tyyppi
Toimisto
Koko
370 m²
Kerros
2 / 7
Vuokra
Kysy hintaa!
Tyylikäs 370 m² toimistokokonaisuus Hakaniemessä
Paasivuorenkadun toisessa kerroksessa sijaitseva 370 m² kokoinen toimitila tarjoaa toimivat ja edustavat puitteet yrityksen tarpeisiin. Pohjaratkaisu yhdistää avotilaa ja useita erikokoisia työ- ja neuvotteluhuoneita, jotka tukevat sekä tiimityötä että rauhallista työskentelyä. Tilasta löytyy myös keittiö- ja taukotila sekä useita wc-tiloja. Suuret ikkunat tuovat tiloihin runsaasti luonnonvaloa ja avautuvat kauniisti Paasivuorenpuistikkoon.
Rakennus on peruskorjattu vuonna 2011 sen alkuperäistä tunnelmaa kunnioittaen. Kiinteistön arvokas arkkitehtuuri, kuten pankkisalin ja pääporrashuoneen luonnonkivilaatoitus, on säilytetty ja yhdistetty moderniin toimitilateknologiaan. Kohteelle on myönnetty BREEAM Excellent -ympäristösertifikaatti, ja se käyttää kotimaista tuulisähköä, mikä tekee siitä vastuullisen ja energiatehokkaan toimitilaratkaisun.
Vuokralaisilla on käytössään kiinteistön monipuoliset palvelut, jotka lisäävät arjen sujuvuutta ja viihtyisyyttä. Aulapalvelut, laadukas lounasravintola ja kahvila sekä wellness-palvelut ovat helposti saatavilla. Lisäksi kiinteistössä on sisäpihan viihtyisä talvipuutarha, edustavat saunatilat sekä pysäköintihalli, jossa on sähköautojen latauspisteitä.
Perustiedot
Tyyppi:
Toimisto
Sopimustyyppi:
Vuokrataan
Osoite:
Paasivuorenkatu 3, 00530 Helsinki
Kaupunginosa:
Hakaniemi
Tilan koko
Kokonaispinta-ala:
370 m²
Rakennustiedot
Rakennusvuosi:
1987
Energialuokka:
Ei lain edellyttämää energiatodistusta
Lisätiedot
Kerros:
2 / 7
Kartta
Tietoa ilmoittajasta
ScanReal Oy LKV
Näytä kaikki saman ilmoittajan kohteetOpus Business Park, Hitsaajankatu 24
00810
Helsinki
































