Uudet käyttö- ja sopimusehdot
Päivitämme käyttö- ja sopimusehtojamme. Uudet ehdot ovat voimassa 1.5.2025 alkaen. Tutustu ehtoihin
Välttitie 2 Sanno, Uusikaupunki
23500Tyyppi
Tuotantotila
Koko
1 200 m²
Vuokra
Kysy hintaa!
Tuotantotilaa
Tasokasta tuotantotilaa
Hyvässä ryhdissä oleva ja mm. edustavalla myymälätilalla varustettu teollisuuskiinteistö vuokrattavissa Sannon yritysalueella Uudenkaupungin keskustan tuntumasta, Kantatie 43:n läheisyydestä.
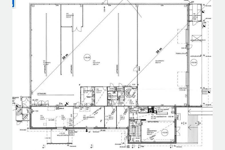
Vuonna 2014 valmistunut betonirakenteinen, puu- ja paroc -elementein julkisivuvuorattu rakennus pitää sisällään monipuoliset ja käytännölliset tilat monenlaiseen valmistukseen, tuotekehitykseen, varastointiin ja toimistotyöskentelyyn. Panimoalan käyttöön rakennettu kiinteistö sopii rakenteiden ja pintojensa ansiosta muuhunkin elintarviketeollisuuden käyttöön.
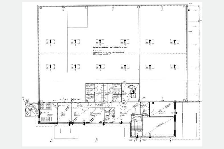
Kokonaisuus jakaantuu ensimmäisen kerroksen tuotanto, laboratorio, varasto- ja myymäläosioihin sekä toisen kerroksen toimisto- ja sosiaalitiloihin. Toimistokerroksessa on 4 työhuonetta, neuvotteluhuone, taukotila keittiöllä sekä erilliset naisten ja miesten pukuhuonetilat suihkuilla ja WC-tiloilla.
Pinnat ovat erittäin hyvässä kunnossa. Led-valaistus, koneellinen ilmanvaihto ja jäähdytys tekevät työskentely- ja toimintaympäristöstä turvallisen ja käytännöllisen. Talossa on myös hissi. Kattoikkunat tuovat mukavasti luonnonvaloa myös tuotanto- ja varastotiloihin.
Tavaralogistiikka hoituu lastauslaiturin ja kahden nosto-oven kautta. Tuotanto- ja varastotilojen vapaa korkeus on 6 metriä. Lastausalue on laaja ja isompikin kalusto mahtuu operoimaan täällä.
Piha-alue on asvaltoitu ja pysäköintitilaa on runsaasti.
Sijainti Sannon yritysalueella on optimaalinen, sillä sekä keskustan palvelut että liikenneyhteydet muualle maakuntaan ja kauemmaksikin sujuvat hyvin läheisen Kantatie 43:n kautta.
Kiinnostuitko? Ota yhteyttä ja tiedustele lisää. Näytöt joustavasti sopimuksen mukaan.
Palvelumme on maksutonta tilanhakijoille.
Perustiedot
Tyyppi:
Tuotantotila
Sopimustyyppi:
Vuokrataan
Osoite:
Välttitie 2, 23500 Uusikaupunki
Kaupunginosa:
Sanno
Tilan koko
Kokonaispinta-ala:
1200 m²
Kartta
Tietoa ilmoittajasta
LogisTila Oy LKV
Näytä kaikki saman ilmoittajan kohteetKauppakatu 14
33210
Tampere












































