<< Takaisin kohdesivulle
Julkisivu länteen
Julkisivu etelään
Julkisivu itään.
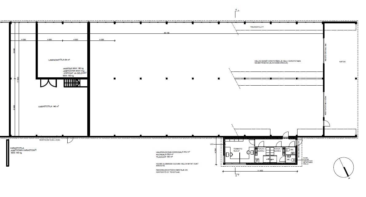
Pohjaratkaisu
<< Takaisin kohdesivulle