Uudet käyttö- ja sopimusehdot
Päivitämme käyttö- ja sopimusehtojamme. Uudet ehdot ovat voimassa 1.5.2025 alkaen. Tutustu ehtoihin
Fredrikinkatu 47 Keskusta, Helsinki
00100Tyyppi
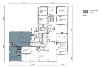
Toimisto
Koko
127 m²
Kerros
4
Vuokra
Kysy hintaa!
Huippusijainti Kampissa, 6 minuutin kävely Kampin metroasemalle. Kampin kauppakeskuksen kattavat palvelut ja lounaspaikat lähellä. Pysäköintipaikkoja vuokrattavissa Kampin ja Forumin pysäköintilaitoksista.
Lisätietoja soita 020 730 4530 tai info@repoint.fi. Palvelumme on tilanhakijalle ilmainen.
Perustiedot
Tilan koko
Lisätiedot
Kartta
Tietoa ilmoittajasta
REpoint Toimitilat Oy
Näytä kaikki saman ilmoittajan kohteetItälahdenkatu 22b
00210
HELSINKI
Repoint on pääkaupunkiseudun toimitilavuokraukseen keskittynyt välitysliike. Toimintamme perustuu laadukkaaseen ja luotettavaan palveluun, sekä tilaa hakevan yrityksen toiminnan ja tarpeiden ymmärtämiseen. Soita meille 020 730 4530. Palvelumme on tilanhakijalle ilmainen.





























































































